Fåborgvej 1
4200 Slagelse

Sagsnr. 1118937

Ejendomstype

Etageareal

Grund

630 m²

2.000 m²

Kontantpris

Købspris pr. m²

Årlig driftsudgift

Årlig driftsudgift pr. m²

3.450.000 kr.

5.476 kr.

16.072 kr.

26 kr.

Præsentabel ejendom til lager-/kontorformål med tag fra 2024

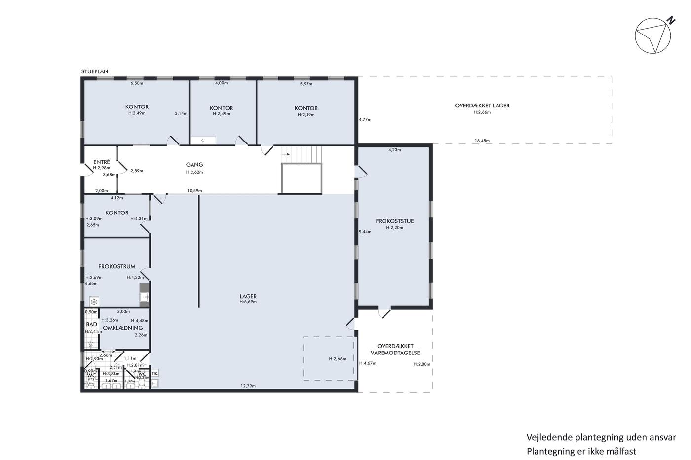
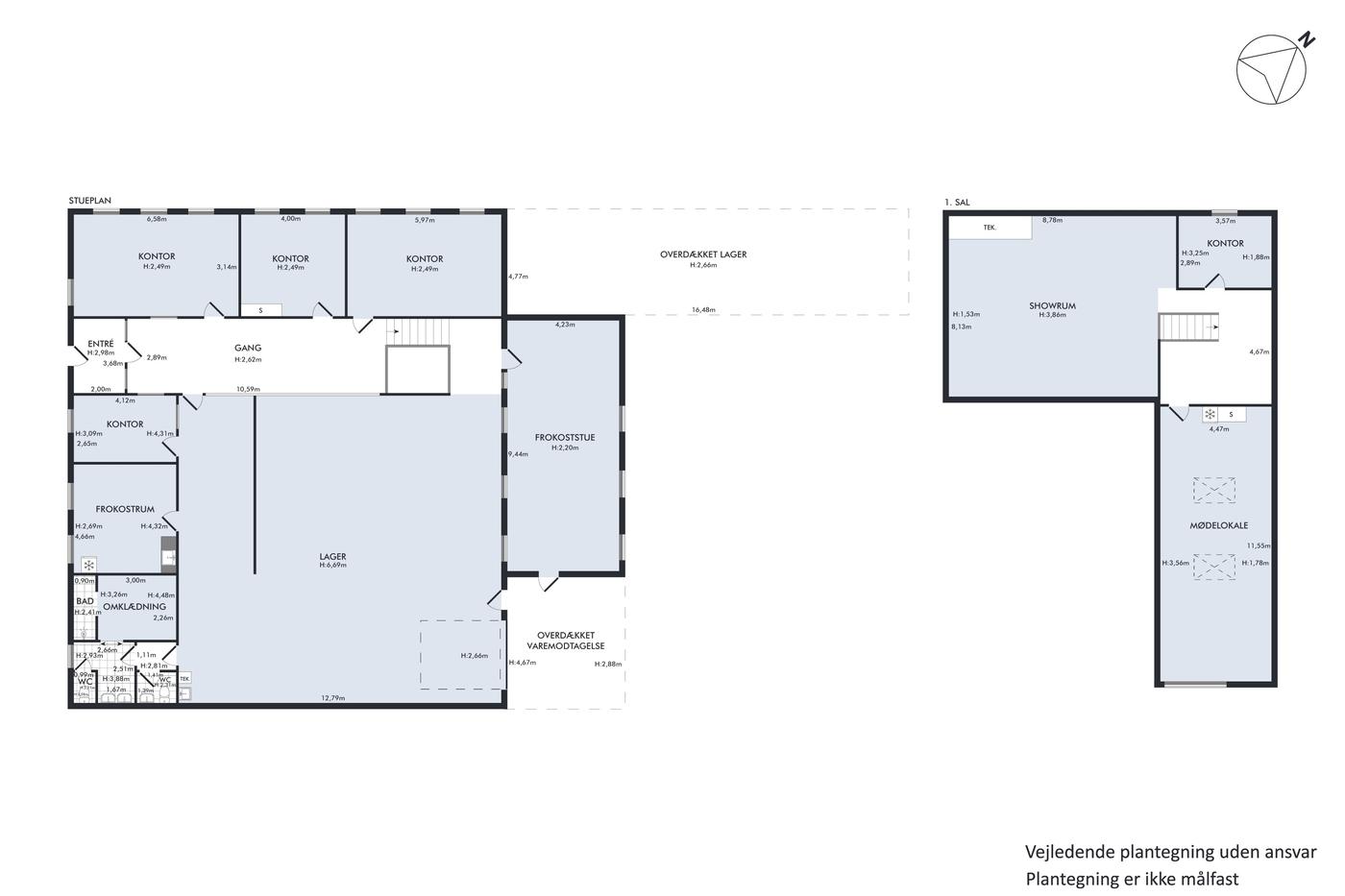
Ejendommen er beliggende i et udbygget industriområde i Slagelse, som på samme tid både er bynært og har gode vejforbindelser til resten af Regionen - såvel via landeveje som motorvej E20. Den samlede bygningsmasse andrager i alt 630 etagemeter, har et bebygget areal på 503 m² og byder på en god arealfordeling mellem funktionelt kontorafsnit samt lagerfaciliteter.

Bygningsmassen fremtræder regulær og præsentabel med facade i rå mursten og nyere tag fra 2024.

Ejendommen er velegnet til en bredere vifte af virksomheder, der har behov for kombinerede kontor- og lagerfunktioner, eks. salgsvirksomhed, håndværksvirksomhed eller lettere produktion.
Udenomsarealerne er belagt med sf-sten og bag ejendommen er indhegnet varegård.

Læs mere

Vil du vide mere?

Christian S. Christiansen

chc@nordicals.dk

+45 3035 4212

Sorøvej 9A, 4200 Slagelse

+45 5850 1212

4200@nordicals.dk

Besøg vores mæglerside

Lignende ejendomme

Til top