Frederiksgade 18
4200 Slagelse

Sagsnr. 1017929

Ejendomstype

Etageareal

Grund

Energiklasse

278 m²

309 m²

D

Kontantpris

Købspris pr. m²

Afkast

Årlig lejeindtægt

Årlig lejeindtægt pr. m²

Årlig driftsudgift

Årlig driftsudgift pr. m²

6.495.000 kr.

23.363 kr.

5,08 %

393.650 kr.

1.416 kr.

64.998 kr.

234 kr.

Investeringsejendom med én ledig bolig til dig selv eller for udlejning

Denne ejendom i hjertet af Slagelse tilbyder en helt unik kombination af både en indbydende bolig for køber og en attraktiv investeringsmulighed. Med sin eftertragtede beliggenhed midt i byens absolutte centrum, er der kun få minutters gang til stationen, campusområdet og de charmerende torve, herunder den hyggelige Schweizerplads med dens populære caféer og livlige atmosfære. Ejendommen er ideel for køberen, der ønsker at bo tæt på alle byens faciliteter, samtidig med at man opnår økonomiske fordele gennem lejeindtægter fra de øvrige lejligheder.

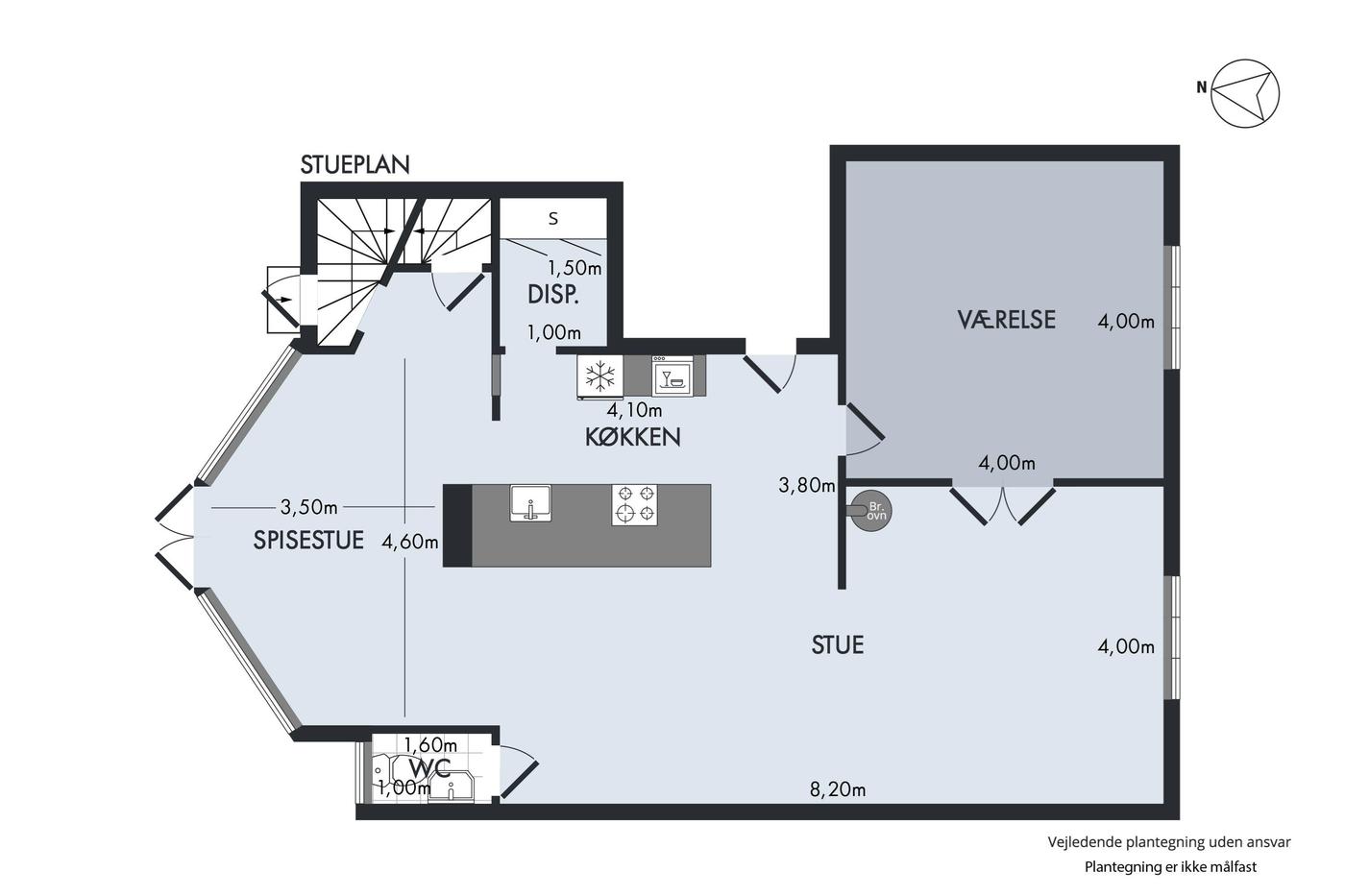
Ejendommen rummer fire velindrettede lejligheder, hvoraf særligt stueetagen skiller sig ud som en liebhaverlejlighed. Denne lejlighed har en elegant og funktionel indretning med et væld af lækre detaljer og en eksklusiv følelse, som giver et dejligt hjem for den krævende køber. Der er direkte adgang til kælderplan, hvor flere opvarmede disponible rum kan benyttes til opbevaring eller evt. hobbyrum. Desuden er der adgang til den velanlagte gårdhave, som byder på skønne terrasser og hyggekroge, hvor man kan nyde roen og privatlivet.

Lejligheden i stueplan er i øjeblikket beboet af sælger, men vil blive frigivet til købers fulde disposition ved handelens afslutning. Sælger har oprindeligt erhvervet ejendommen med det formål at skabe en attraktiv bymidtebolig med samtidig udlejning af de øvrige lejligheder. Dette giver køberen mulighed for at bo i en dejlig og spændende bolig til en økonomisk fordelagtig leje, samtidig med at man opnår indtægter fra de tre øvrige lejligheder.

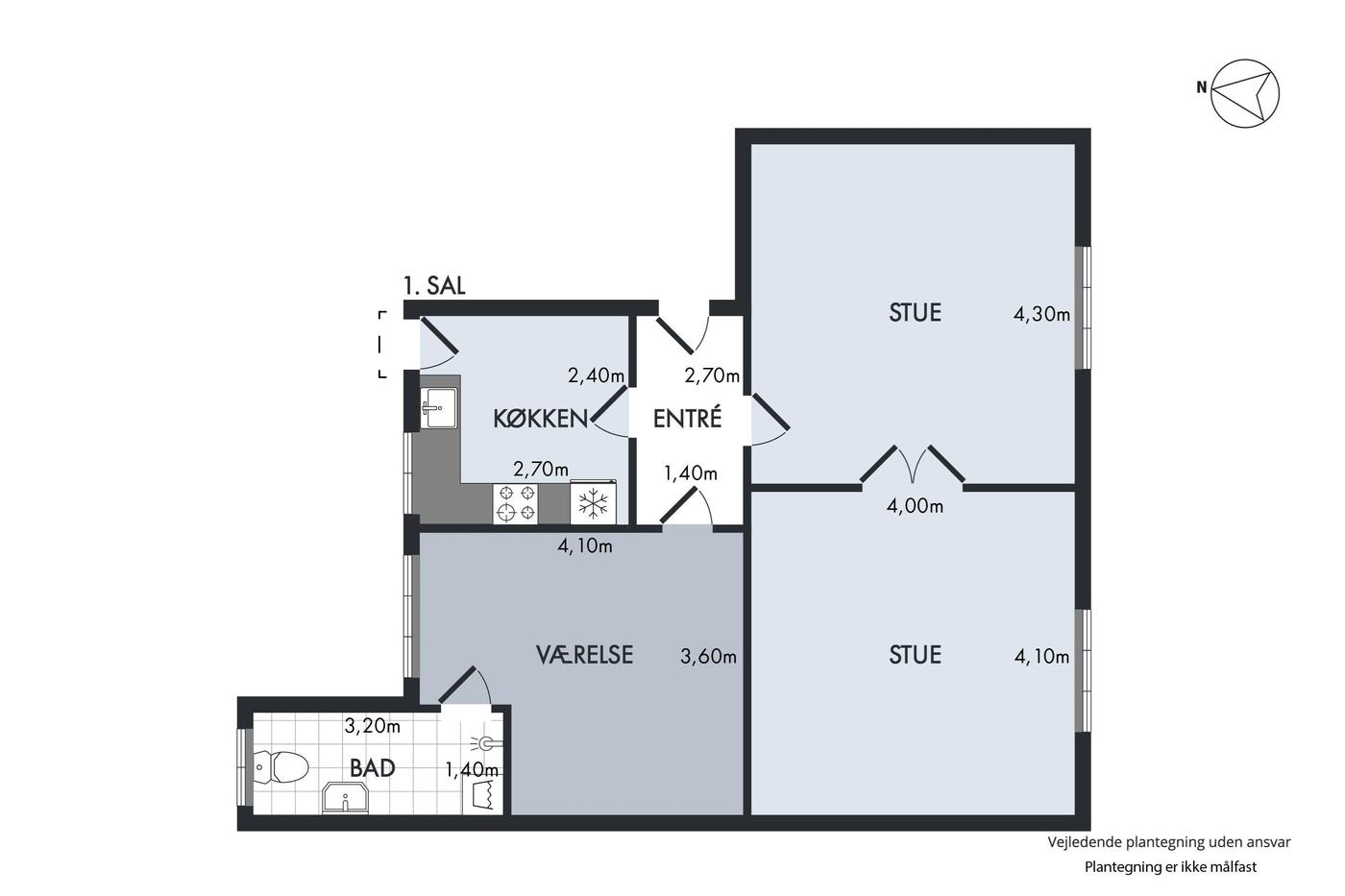
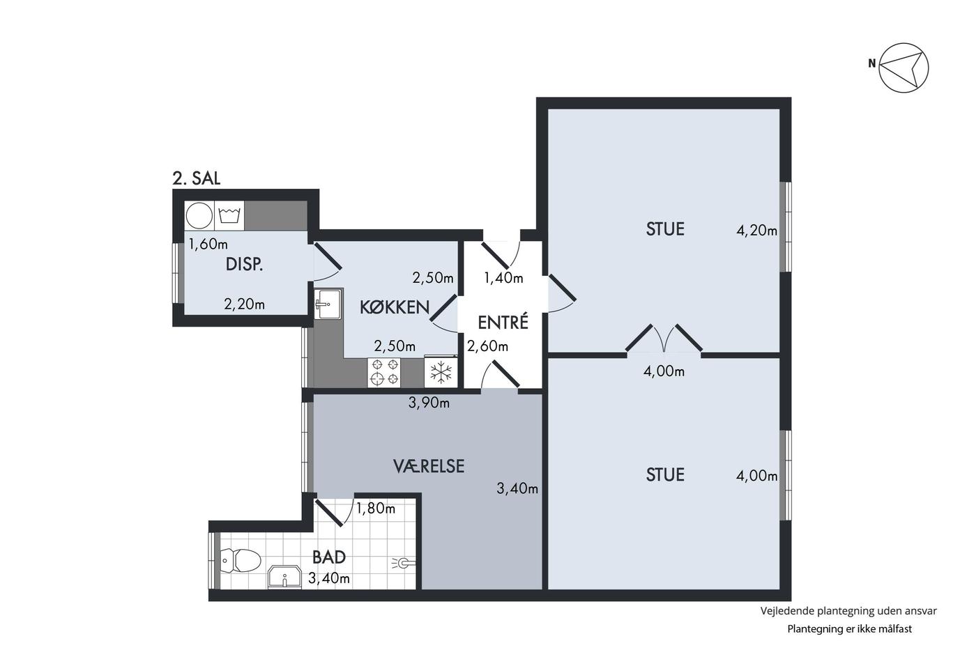
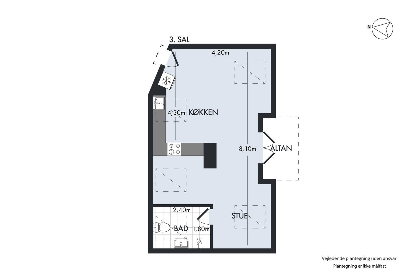
Lejlighederne på 1. og 2. sal er også rummelige og velfungerende, hvilket gør dem attraktive som lejeboliger, og de vil fremover altid kunne tiltrække en bred vifte af potentielle lejere. I tagetagen er der indrettet en meget hyggelig og lækker, lille lejlighed med en charmerende altan, som giver et dejligt udsyn over det omkringliggende bymiljø.

Ejendommens beliggenhed gør den desuden særdeles attraktiv for både boligsøgende og investorer. Dyhrs Skole ligger i samme gade, og området er præget af ro, grønne områder og pæne, velholdte bygninger, hvilket skaber en behagelig og tryg atmosfære for både beboere og lejere.

Læs mere

Vil du vide mere?

Henrik Nikolajsen

hkn@nordicals.dk

+45 4034 4292

Sorøvej 9A, 4200 Slagelse

+45 5850 1212

4200@nordicals.dk

Besøg vores mæglerside

Lignende ejendomme

Til top