Ndr.Ringgade 61
4200 Slagelse

Sagsnr. 2018549

Ejendomstype

Etageareal

Grund

Energiklasse

275 m²

1.261 m²

D

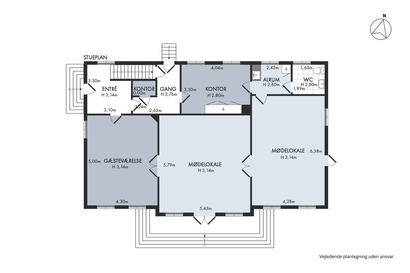
Flot domicilejendom med god beliggenhed

Denne ejendom tilbyder et elegant domicil til leje, strategisk placeret langs en travl ringvej og i umiddelbar nærhed af det nye boligområde "Kvægtorvet" i Slagelse. Med en aktuel anvendelse som klinik præsenterer lejemålet et alsidigt potentiale for forskellige branchers administrative behov.

Uanset om det er et moderne kontorlandskab, professionelle mødelokaler eller specialiserede faciliteter, er denne ejendom designet til at i møde komme behovene hos virksomheder, der søger en stærk positionering og gode faciliteter.

Ejendommen har egen P-plads.

Læs mere

Denne ejendom er udlejet

Vil du vide mere?

Frantz Larsen

fla@nordicals.dk

+45 5149 5604

Sorøvej 9A, 4200 Slagelse

+45 5850 1212

4200@nordicals.dk

Besøg vores mæglerside

Lignende ejendomme

Til top