Norgesvej 14, Slagelse
4200 Slagelse

Sagsnr. 2019140

Ejendomstype

Etageareal

Grund

Energiklasse

175 m²

2.708 m²

A2010

Årlig leje

Leje pr. m²

Depositum

Årlig driftsudgift

Årlig driftsudgift pr. m²

175.000 kr.

1.000 kr.

87.500 kr.

5.022 kr.

29 kr.

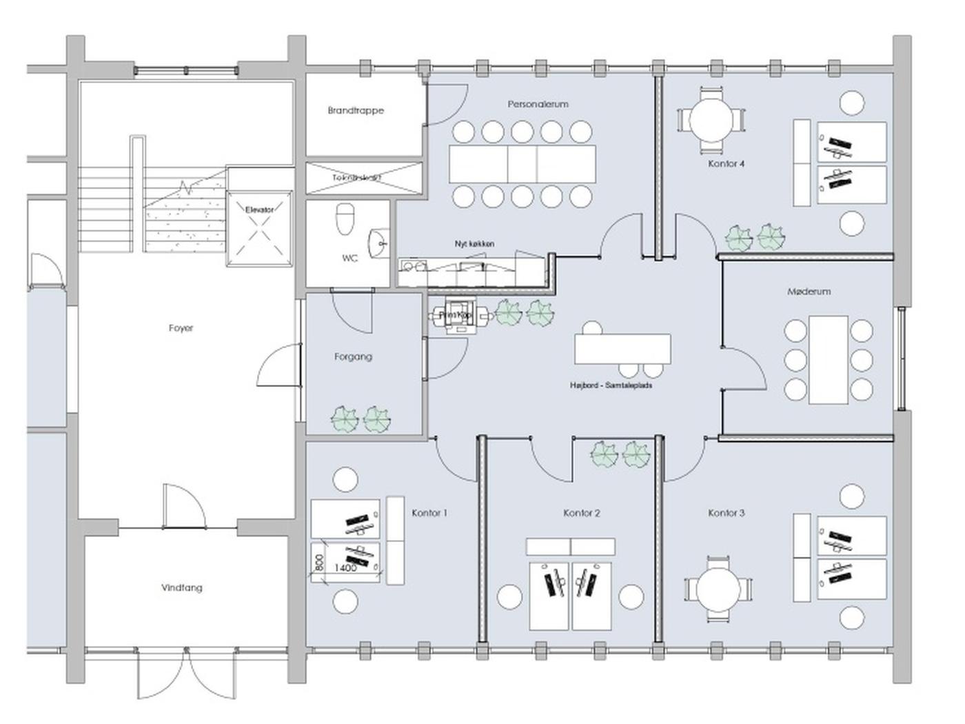
Moderne og nyistandsatte kontorlokaler

Indbydende kontorlokale direkte i stueplan

Er du på udkig efter moderne kontorlokaler med god beliggenhed og mulighed for at være med til at præge indretningen? I stueetagen på Norgesvej 14 i Slagelse er et 175 m² stort lejemål netop nu under gennemgribende istandsættelse - og du kan blive den første lejer i de opdaterede lyse rammer!

Hele ejendommen har gennemgået en generel opgradering, hvilket ses både ude og inde, hvor ejendommen fremstår ny, flot og giver et professionelt helhedsindtryk. Indenfor har lokalerne fået et lyst og tidssvarende udtryk med fokus på funktionalitet og komfort. Lokalerne henvender sig til flere typer erhverv, det kunne være det kreative kontormiljø, klinik eller rådgivningsvirksomhed.

Udearealerne er ligeså i gang med en opgradering, og vil fremstå som en præsentabel og enkle indramning af hele ejendommen. Rundt om ejendommen er der adgang til mange og lettilgængelige parkeringspladser lige ved døren. Dette gør det meget nemt for både medarbejdere og besøgende til huset at parkere. Der findes desuden ladestandere på parkeringspladsen.

Læs mere

Vil du vide mere?

Mariella Søndergaard

msd@nordicals.dk

+45 2434 2456

Sorøvej 9A, 4200 Slagelse

+45 5850 1212

4200@nordicals.dk

Besøg vores mæglerside

Lignende ejendomme

Til top