Algade 12-14 samt Jens Baggesensgade 15
4220 Korsør

Sagsnr. 1219173

Ejendomstype

Grund

4.386 m²

Kontantpris

Årlig driftsudgift

6.000.000 kr.

24.997 kr.

Nyelandsgaard – Eksklusivt boligprojekt i hjertet af Korsør

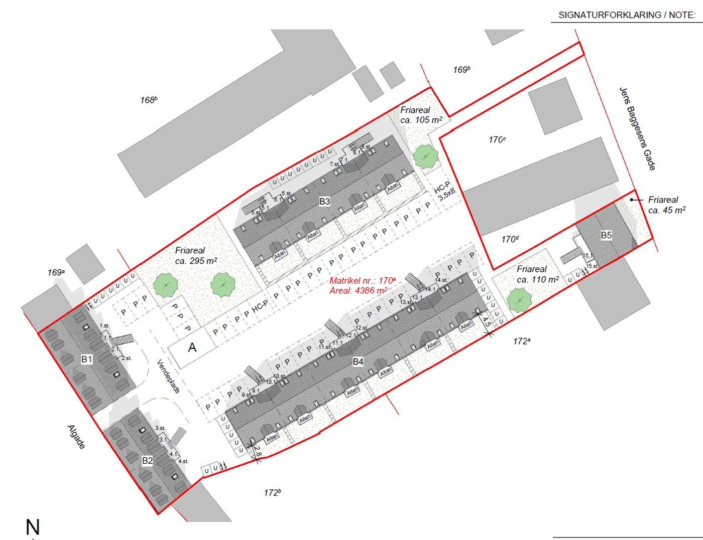
Nyelandsgaard er et unikt og gennemarbejdet boligprojekt beliggende midt i Korsør bykerne. Projektet omfatter opførelse af 30 moderne og attraktive boliger på adresserne Algade 12-14 og Jens Baggesens Gade 15.

Med byggetilladelse og godkendt lokalplan på plads kan byggeriet igangsættes straks af køber, til ialt 2.254 m².

Placeringen er ideel - kun få minutters gang til den charmerende middelalderby, det hyggelige havnebassin og byens strandområde. Her kombineres historisk atmosfære med nutidens by, i et område, der tidligere husede den bevaringsværdige købmandsgård Nyelandsgaard fra 1770.

Bebyggelsen er planlagt med to forhuse mod Algade i halvandet plan, hver med fire boliger, samt et forhus mod Jens Baggesens Gade i to etager med to boliger. I det grønne gårdrum opføres yderligere to bygninger i halvandet plan med i alt 20 boliger. Alle boliger får egen have eller sydvendt altan, og gårdrummet indrettes med friarealer, parkeringspladser, depotrum og plads til renovation.

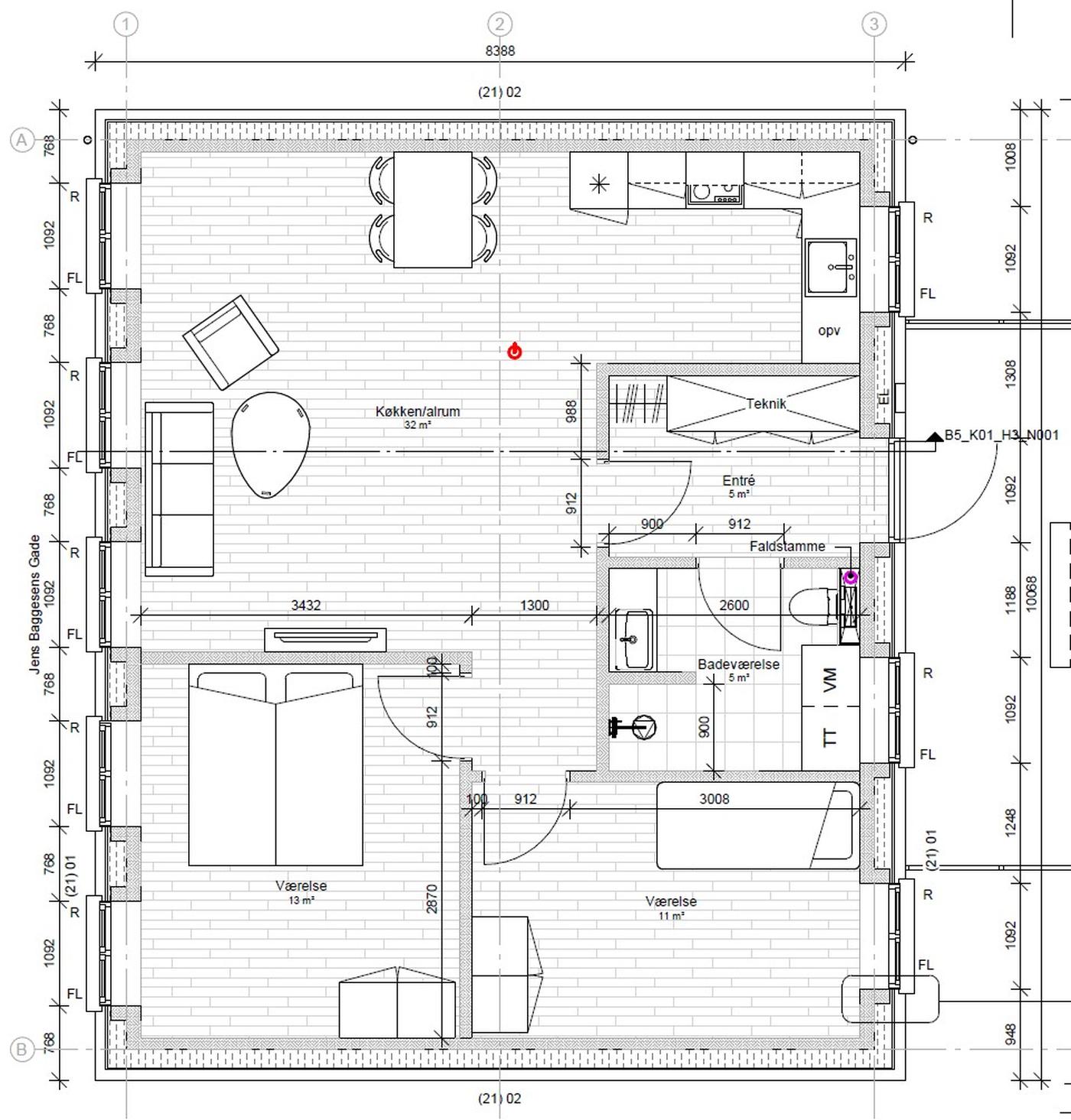
Projektet har et samlet boligareal på ca. 2.254 m² og består primært af treværelses boliger (28 stk.) samt to toværelses boliger.

Salget omfatter færdigt projektmateriale, tegninger og bilag, og der er allerede stor interesse fra kommende lejere, hvilket gør Nyelandsgaard til en særdeles attraktivt projekt med dokumenteret efterspørgsel.

Læs mere

Vil du vide mere?

Henrik Nikolajsen

hkn@nordicals.dk

+45 4034 4292

Sorøvej 9A, 4200 Slagelse

+45 5850 1212

4200@nordicals.dk

Besøg vores mæglerside

Lignende ejendomme

Til top