Storebælts Erhvervspark 3, 3007 m²
4220 Korsør

Sagsnr. 2018756

Ejendomstype

Etageareal

Energiklasse

3.207 m²

C

Årlig leje

Leje pr. m²

Depositum

Årlig driftsudgift

Årlig driftsudgift pr. m²

1.072.450 kr.

334 kr.

1.072.450 kr.

180.420 kr.

56 kr.

Administration ved TRAFIKKNUDEPUNKT

Særdeles velbeliggende erhvervslejemål - beliggende lige ved Motorvej E 20 - afkørsel ved Storebæltsbroen i erhvervsområde med god infrastruktur. Under 1000 m fra Korsør Station.

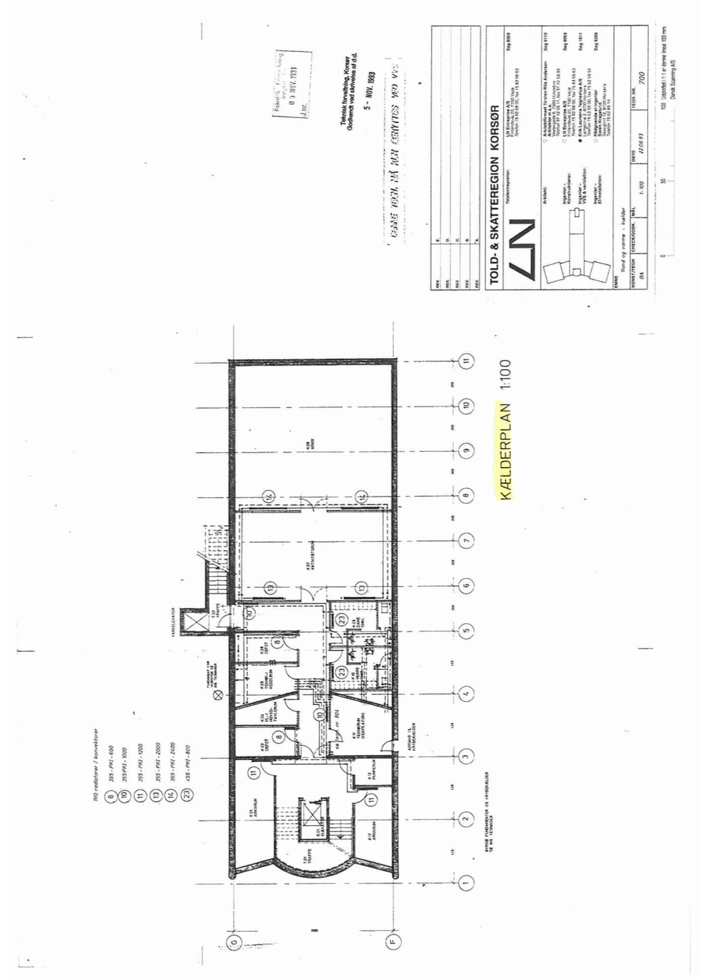
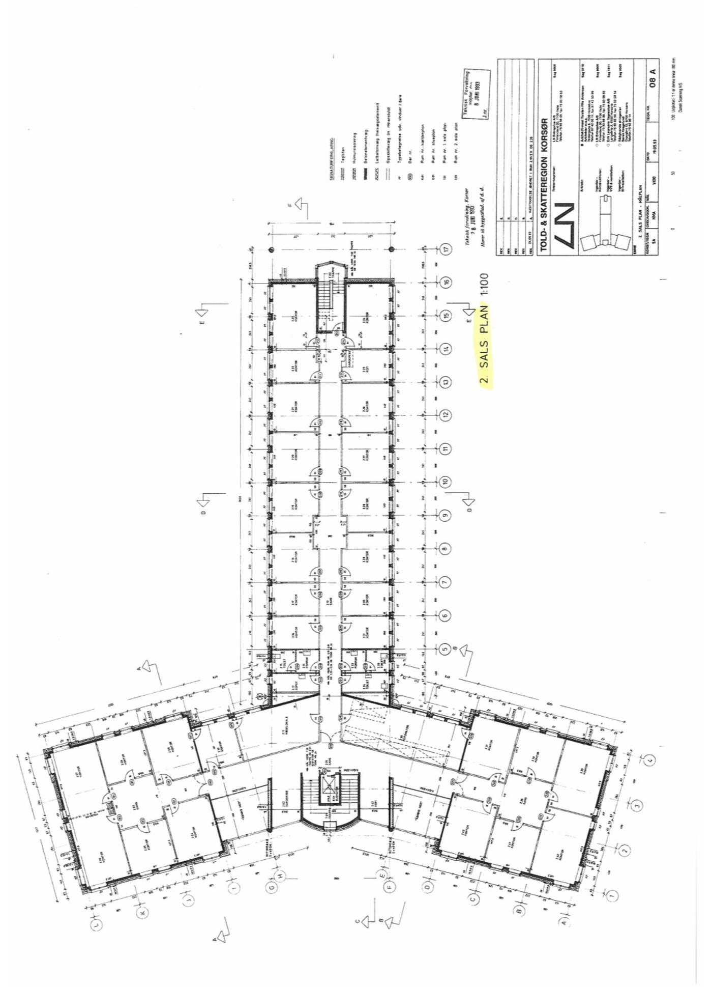
Ejendom opført i 1993, som kontordomicil i tre plan på samlet 3.007 m² samt kælder på ca. 200 m² (+ til udlejer mindre afsnit til teknik o.l.). Ejendommen er indrettet til kontorformål med elevator og handicapvenlig indgang med automatisk indgangsdør.

Kontorerne er i varierende størrelser og hele ejendommen på 3.007 m². Kan evt. leveres moderniseret og indrettet efter behov.

Med den rette lejer som kan skabe synergi med resten af ejendommen, kan der efter aftale godkendes arealer fra ca. 250 m².

Kantine i stueplan med tilhørende mødelokaler, adskilt af foldevægge som kan fjernes, så mødelokaler og kantine kan fremstå som et stort rum.

Kælderplan har udover arkivfunktion og plads til motionsrum også, bad og omklædning til herrer og damer.

Der er gode garager, som kan lejes samt velanlagte P-pladser, såvel foran som bagved ejendommen.

Det vil være en oplagt mulighed for virksomheder, der har brug for en central placering i DK med let adgang fra motorvej og tæt ved Korsør station så det er nemt for medarbejderne.

Trappeleje år 1. kr. 1.072.450.

Læs mere

Vil du vide mere?

Frantz Larsen

fla@nordicals.dk

+45 5149 5604

Sorøvej 9A, 4200 Slagelse

+45 5850 1212

4200@nordicals.dk

Besøg vores mæglerside

Lignende ejendomme

Til top