Vinkelvej 1B, Svenstrup
4220 Korsør

Sagsnr. 1717944

Ejendomstype

Grund

6.980 m²

Kontantpris

Årlig driftsudgift

1.500.000 kr.

5.000 kr.

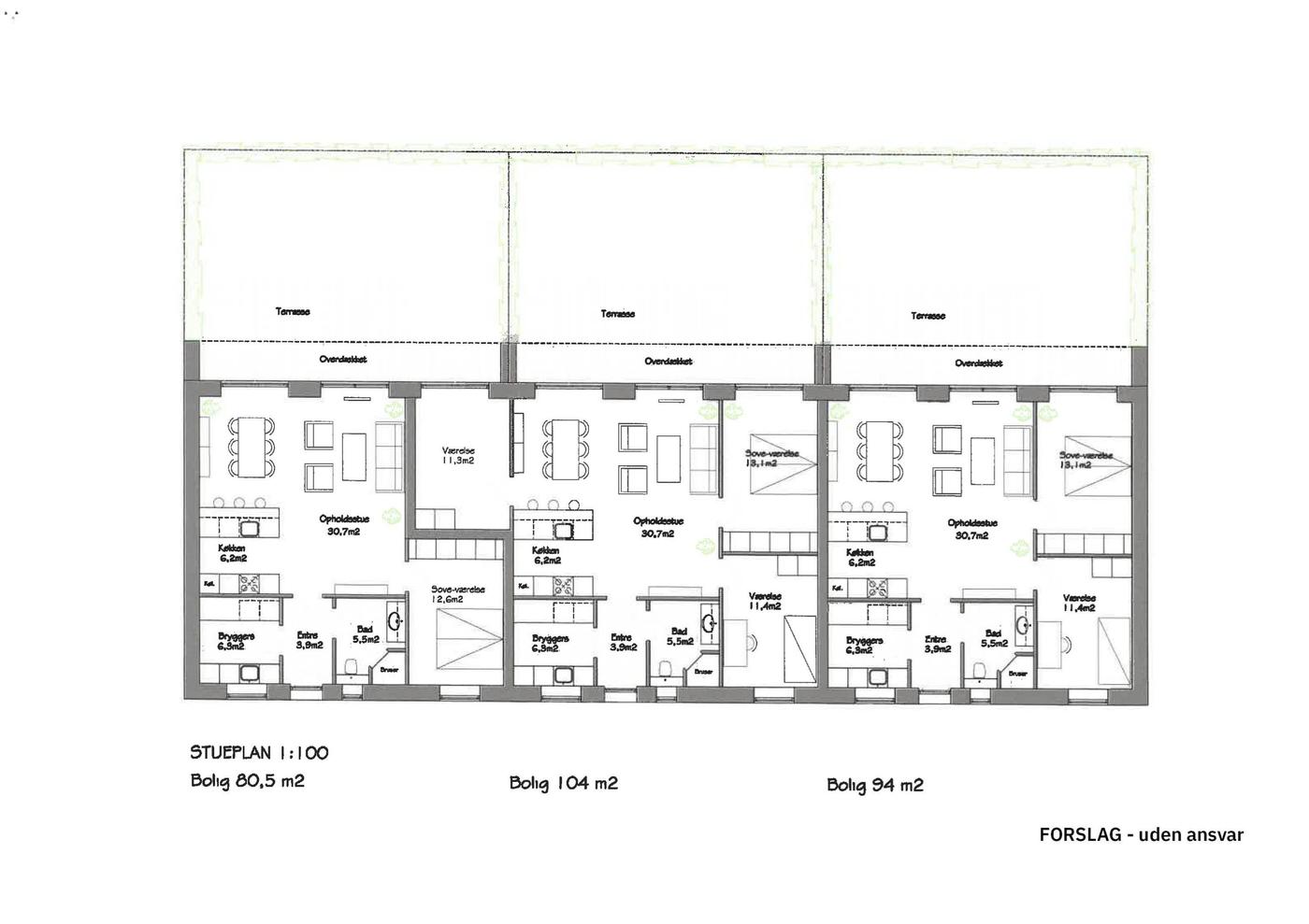
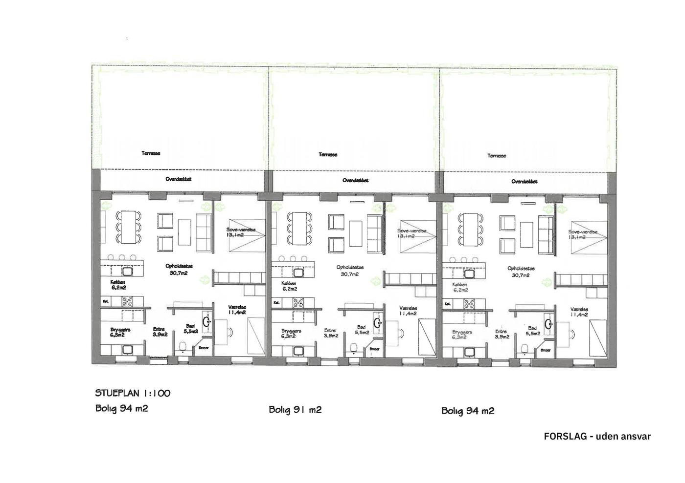
Byggegrund til boliger

Med kun 450 m. til indkøb og 2 km. til dejlig badestrand, vil nye boliger på denne grund blive efterspurgt af både børnefamilier og seniorer.

Grunden ligger hyggeligt i et ældre boligkvarter. Den er forholdsvis plan og dermed let at bebygge.

Sælger, som ejer Tegnestuen DESIGN-PLAN i Korsør, har lavet et oplæg til opførelse af 15 rækkehuse og tilbyder som et led i handlen at bistå med tegninger, byggeansøgning m.v. i forbindelse med byggeriet.

Moms:
Køber er gjort nøje opmærksom på, at ejendommen sælges som ubebygget areal, og at købesummen bliver tillagt moms.

Byggemodning:
Køber bærer samtlige omkostninger i forbindelse med byggemodning og tilslutningsafgifter af grunden, herunder til el-, vand- og varmeforsyning m.v.

Jordbundsforhold:
Køber overtager grunden som den er og forefindes. Sælger giver ingen garanti for jordbundsforholdene i relation til købers fremtidige anvendelse af grunden.

Køber kan herudover opfordres til, i henhold til et konkret projekt og for egen regning, at lade jordbunden undersøge i et med sælger aftalt omfang. Gravehuller reetableres af køber.

Læs mere

Vil du vide mere?

Henrik Nikolajsen

hkn@nordicals.dk

+45 4034 4292

Sorøvej 9A, 4200 Slagelse

+45 5850 1212

4200@nordicals.dk

Besøg vores mæglerside

Lignende ejendomme

Til top