Havnevej 49A-D-51/ Marie Kirkegårdsvej 14
4230 Skælskør

Sagsnr. 1019259

Ejendomstype

Etageareal

Grund

Energiklasse

522 m²

4.735 m²

F

Kontantpris

Købspris pr. m²

Afkast

Årlig lejeindtægt

Årlig lejeindtægt pr. m²

Årlig driftsudgift

Årlig driftsudgift pr. m²

3.800.000 kr.

7.280 kr.

4,96 %

282.000 kr.

540 kr.

94.899 kr.

182 kr.

Investeringsejendom og udviklingsgrund til tæt-lav

Ejendommen består i dag af i alt 4 boliger, hvoraf 3 boliger er udlejede og 1 bolig er solgt til anden side men det virker sandsynligt at denne bolig også kan erhverves, således at køber kan råde over hele ejendommen.

Den eksisterende bebyggelse giver en løbende driftsindtægt, som kan bidrage positivt i udviklingsperioden.

Hovedattraktionen ved denne ejendom er den tilknyttede byggegrund, som vurderes at have potentiale til opførelse af op til 12 boliger i tæt-lav bebyggelse, eksempelvis i form af rækkehuse eller dobbelthuse. Den endelige udformning og realisering af projektet forudsætter naturligvis de nødvendige myndighedsgodkendelser, men grundens størrelse og beliggenhed giver et solidt udgangspunkt for boligudvikling.

Byggegrunden er attraktivt beliggende i et allerede etableret byområde og vurderes velegnet til både opførelse af ejerboliger med henblik på salg samt til udvikling af et egentligt udlejningsprojekt. Efterspørgslen efter mindre og veldisponerede boligenheder er stigende i Skælskør, og nærheden til både natur, marina og byens handelsliv vurderes at styrke både salgs- og udlejningspotentialet markant. Denne kombination af central beliggenhed og rekreative kvaliteter gør projektet attraktivt for en bred målgruppe.

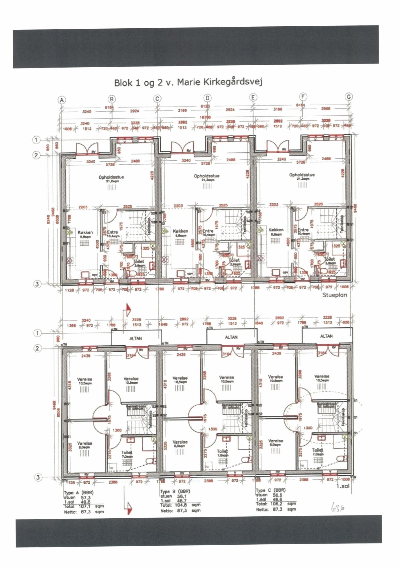
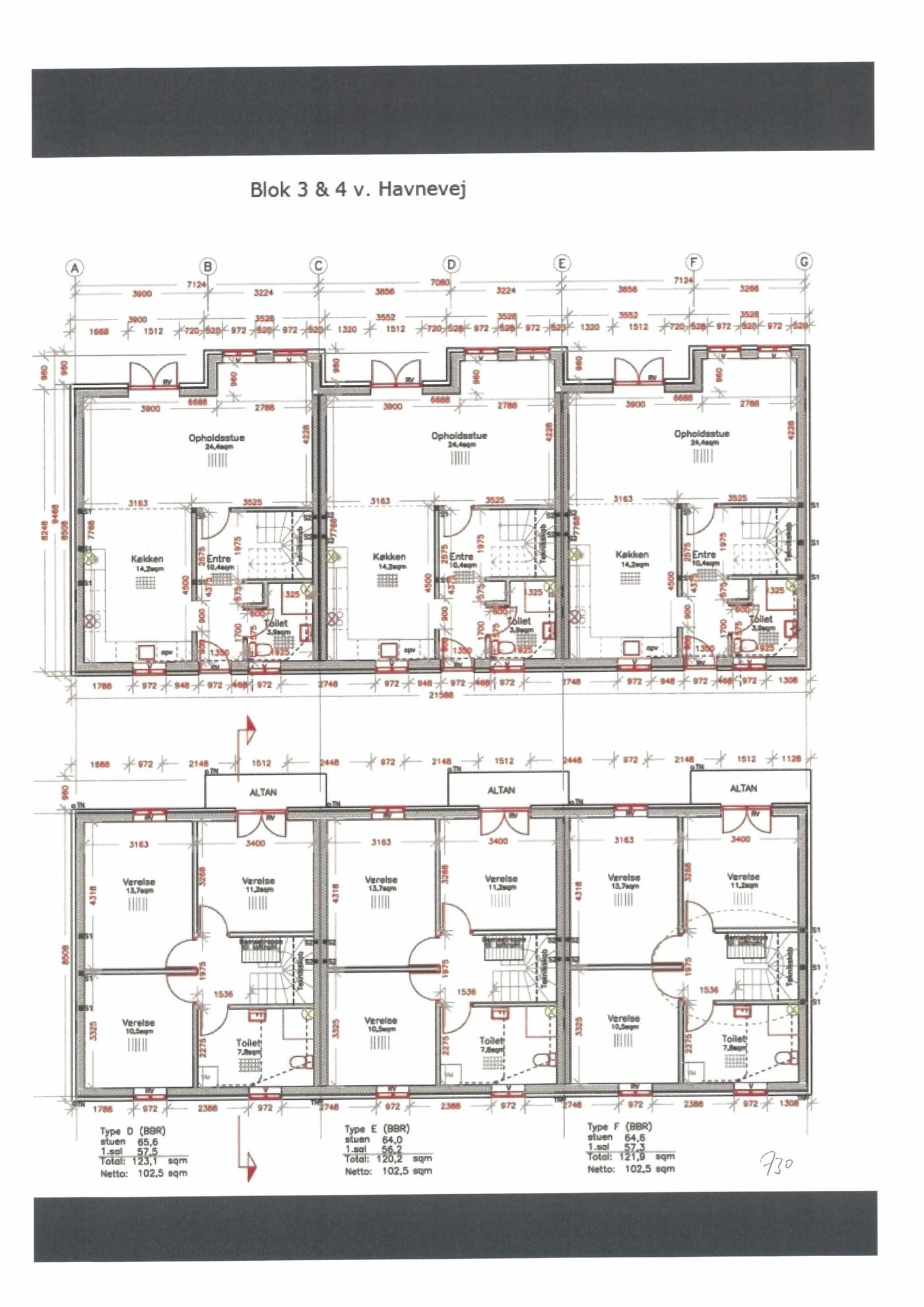
Sælger har udarbejdet et idéoplæg, der illustrerer mulighederne for udnyttelse af byggegrunden, og som kan anvendes som et inspirerende grundlag i den videre dialog med kommune, rådgivere og øvrige samarbejdspartnere i forbindelse med projektudviklingen.

Ejendommen er placeret i et særdeles eftertragtet område i Skælskør, der er kendt for sin charmerende marina med caféer og restauranter samt sit hyggelige havnemiljø. Beliggenheden byder på kort afstand til indkøb og daglige fornødenheder, hvilket gør hverdagen nem og bekvem for beboerne. Samtidig er der gode infrastrukturelle forbindelser til det øvrige Syd- og Vestsjælland, hvilket sikrer god tilgængelighed for både pendlere og besøgende. Kombinationen af byliv, kystnærhed og naturskønne omgivelser gør området attraktivt og velfungerende som boligområde.

Denne unikke beliggenhed betyder, at området appellerer bredt og er særligt attraktivt for både familier, seniorer og par, som udgør centrale målgrupper for tæt-lav bebyggelse. Efterspørgslen efter boliger i denne kategori understøttes yderligere af områdets rolige atmosfære kombineret med nærhed til byens faciliteter og rekreative muligheder.

Ejendommen udgør samtidig en interessant investerings- og udviklingscase og henvender sig til ejendomsudviklere, projektinvestorer samt langsigtede investorer med fokus på boligudlejning. Der er mulighed for at opnå en løbende indtægt fra de eksisterende udlejede boliger, samtidig med at byggegrunden kan udvikles etapevis. Dette giver fleksibilitet i projektets gennemførelse og mulighed for værdiskabelse gennem udvikling og realisering af et boligprojekt med betydeligt potentiale.

Læs mere

Vil du vide mere?

Frantz Larsen

fla@nordicals.dk

+45 5149 5604

Sorøvej 9A, 4200 Slagelse

+45 5850 1212

4200@nordicals.dk

Besøg vores mæglerside

Lignende ejendomme

Til top