Sæbyvej 29, Sæby
4270 Høng

Sagsnr. 2019060

Ejendomstype

Etageareal

Grund

Energiklasse

950 m²

5.054 m²

E

Årlig leje

Leje pr. m²

Depositum

380.000 kr.

400 kr.

190.000 kr.

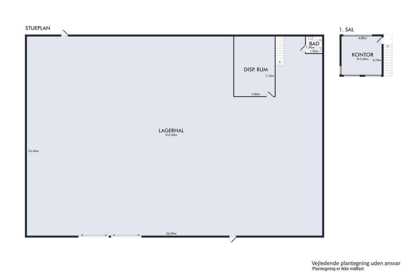
Lager/Produktion til leje i Kalundborg kommune

I Kalundborg Kommune udbydes nu et alsidigt og funktionelt erhvervslejemål, der egner sig perfekt som domicil for virksomheder inden for produktion, lager eller logistik.

Lejemålets fordele:
Fleksible lager-/produktionslokaler med god loftshøjde og mulighed for opvarmning
Separat administrationsområde med plads til kontorarbejdspladser
Velfærdsfaciliteter såsom personalerum, køkken og toilet
Ny port installeres af udlejer - med højde til lastbil, hvilket sikrer nem adgang for varelevering og logistik
Rummelig udenomsplads med gode tilkørselsforhold og mulighed for parkering eller oplag
Beliggenhed:
Ejendommen er beliggende i Kalundborg Kommune med nem adgang til hovedveje og transportkorridorer, hvilket gør det let at servicere både lokale og regionale kunder.

Læs mere

Vil du vide mere?

Frantz Larsen

fla@nordicals.dk

+45 5149 5604

Sorøvej 9A, 4200 Slagelse

+45 5850 1212

4200@nordicals.dk

Besøg vores mæglerside

Lignende ejendomme

Til top