Tjørnens Kvarter 66, Tjørnens Kvarter, område B3
4270 Høng

Sagsnr. 1718674

Ejendomstype

Grund

10.451 m²

Årlig driftsudgift

0 kr.

Projektareal for 20-30 boliger

Kontant købstilbud ønskes

For Kalundborg Kommune udbydes ejendommen til salg på vilkår i henhold til lovbekendtgørelse om offentligt udbud ved salg af kommunens henholdsvis regionens faste ejendomme nr. 396 af 03.03.2021.

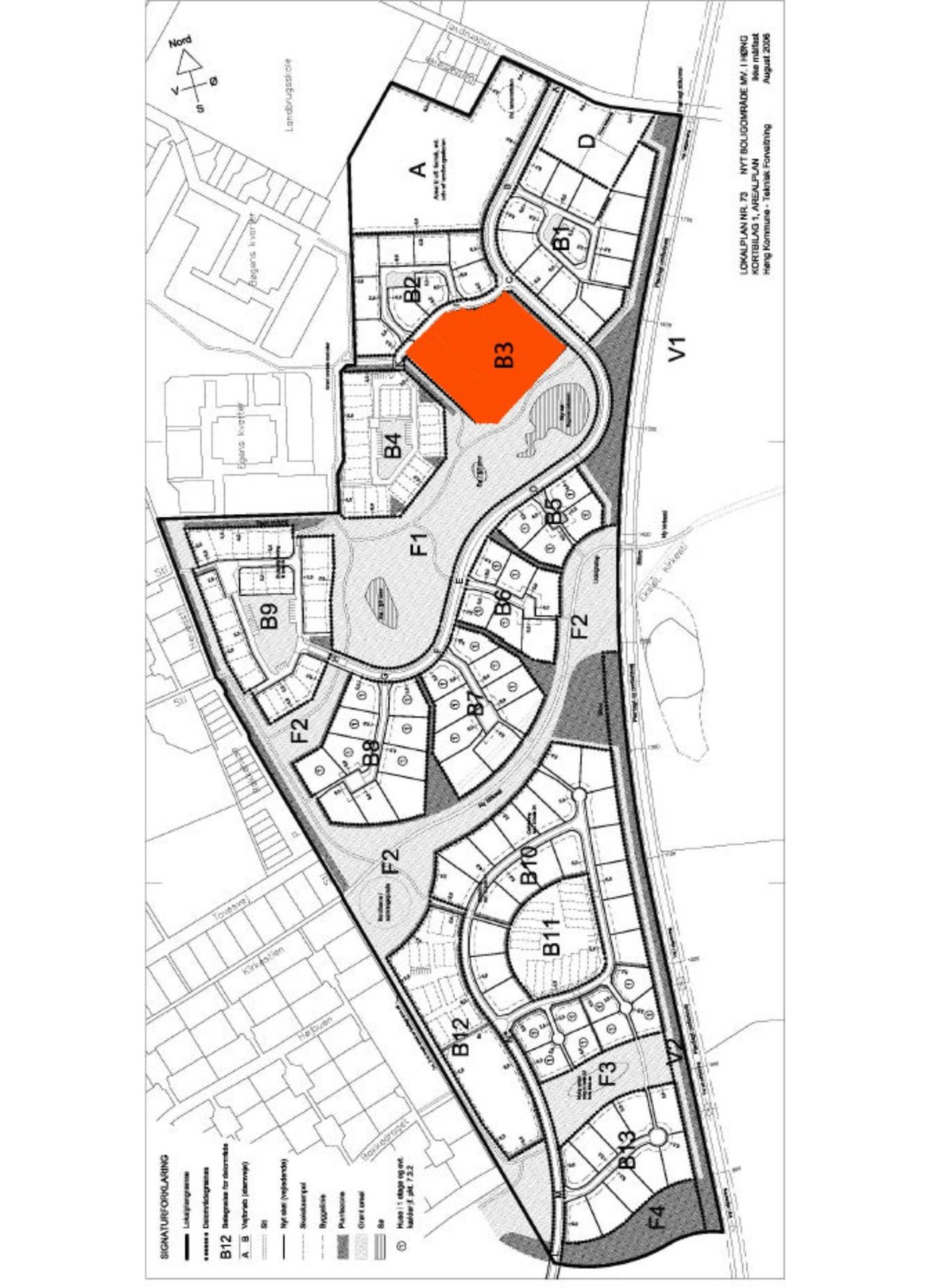
Ejendommen er et projektareal til tæt/lav boligbebyggelse. Der er tale om en storparcel på 10.451 m² med mulighed for at bygge 20-30 boliger. Anvendelse i henhold til lokalplan nr. 73.

Høng by har altid været et attraktivt sted at bo. Med sin centrale placering mellem store byer som Kalundborg og Slagelse og i kraft af de naturskønne oplevelser i nærområdet, har det været muligt at tiltrække nye indbyggere til byen. I henhold til lokalplan nr. 73 er det visionen at skabe et visionært beboelsesområde for omkring 250 boliger, der kan tilgodese spændende boligformer, ved en byudvikling mod Finderup, som strækker sig fra Finderupvej til det erhvervsområde ved Slagelsevej.

Læs mere

Vil du vide mere?

Henrik Nikolajsen

hkn@nordicals.dk

+45 4034 4292

Sorøvej 9A, 4200 Slagelse

+45 5850 1212

4200@nordicals.dk

Besøg vores mæglerside

Lignende ejendomme

Til top