Stenhusvej 70
4300 Holbæk

Sagsnr. 20825235

Ejendomstype

Etageareal

Energiklasse

889 m²

D

Årlig leje

Leje pr. m²

Depositum

Årlig driftsudgift

Årlig driftsudgift pr. m²

669.048 kr.

753 kr.

334.524 kr.

60.852 kr.

68 kr.

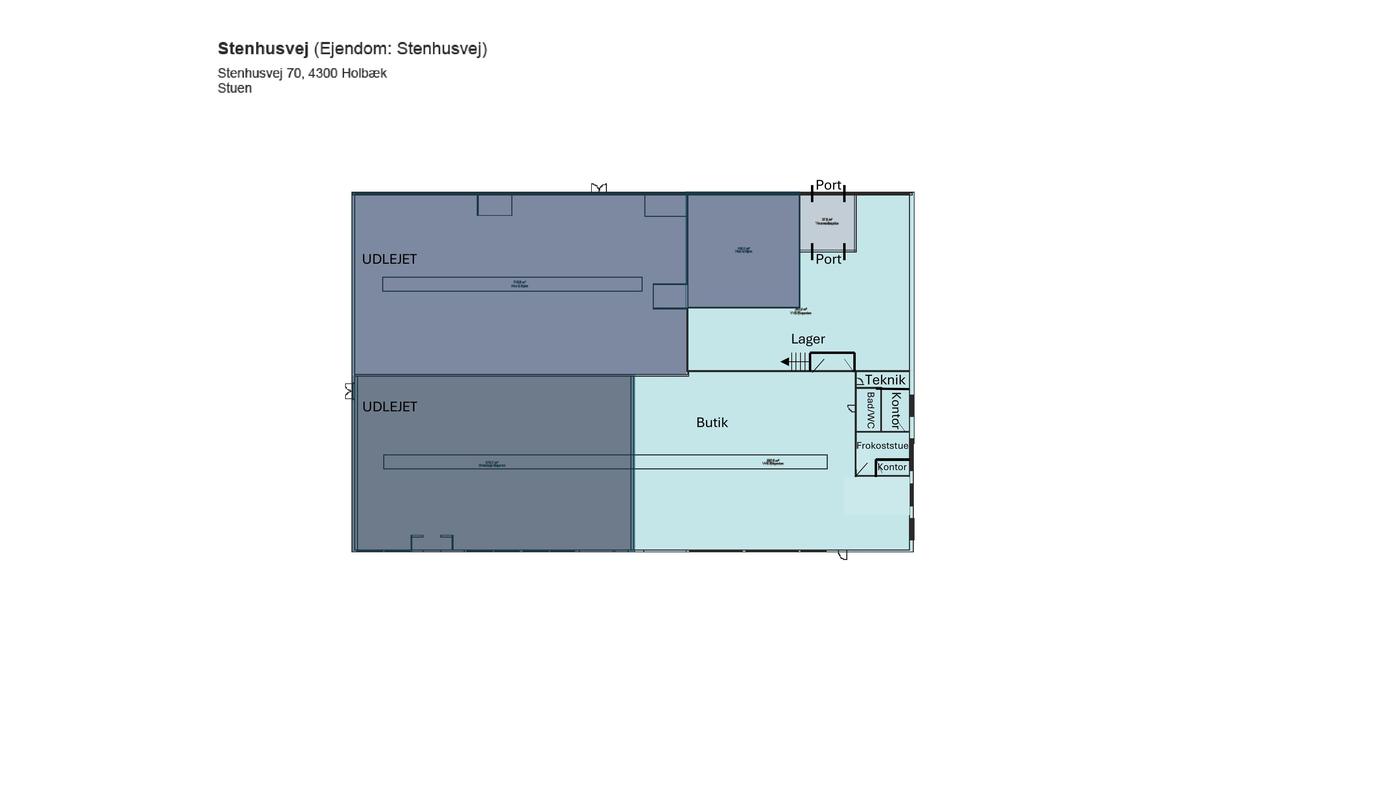
Butikslejemål med A-placering i Holbæk Megacenter

Nu har din kæde mulighed for at etablere sig i et af Holbæks mest synlige og trafikerede handelsområder - Holbæk Megacenter. Lejemålet udgør i alt 888 m², heraf cirka 588 m² butik og 300 m² lager, og har en markant facade direkte mod Omfartsvejen.

Det er perfekt til en kædebutik med behov for stor synlighed og nem adgang. Der er stærk skiltningseksponering mod Omfartsvejen, hvilket er ideelt til brandprofilering. Butikken har en fleksibel indretning med et højloftet salgslokale og et bagvedliggende lager, og logistikken er effektiv med vareindlevering direkte til lagerdelen. Lejemålet er en del af et veletableret handelsområde med kendte kædeaktører og høj kundestrøm, og der er gode parkeringsforhold lige ved døren, hvilket gør det nemt for både kunder og personale. Det er oplagt til detailkoncepter inden for eksempelvis bolig, sport, elektronik, livsstil eller discount, og området tiltrækker både lokale og regionale kunder.

For mere information og aftale om fremvisning, kontakt erhvervsmægler Søren Mosbæk fra Nordicals Erhvervsmæglere.

Læs mere

Vil du vide mere?

Søren Mosbæk

smk@nordicals.dk

+45 2033 7733

Allehelgensgade 8 , 4000 Roskilde

+45 4635 2292

4000@nordicals.dk

Besøg vores mæglerside

Lignende ejendomme

Til top