Nytorv 16-18
4400 Kalundborg

Sagsnr. 1016299

Ejendomstype

Etageareal

Energiklasse

840 m²

B

Kontantpris

Købspris pr. m²

Afkast

Årlig lejeindtægt

Årlig lejeindtægt pr. m²

Årlig driftsudgift

Årlig driftsudgift pr. m²

9.500.000 kr.

11.310 kr.

9,6 %

840.108 kr.

1.000 kr.

97.450 kr.

116 kr.

Attraktiv investeringsejerlejlighed med 10 årigt uopsigeligt lejemål

Denne butik har en eftertragtet og særdeles synlig beliggenhed lige midt i Kalundborg by. Det er en attraktiv erhvervsejerlejlighed i centret Nytorv, som består af flere kædebutikker og i de nærmeste bebyggelser, ligger flere dagligvarebutikker (Kvickly, Føtex, Fakta, Lidl, Netto m.fl.) og udvalgsvarebutikker. Så lige her kommer det store "kundeflow" i byen.

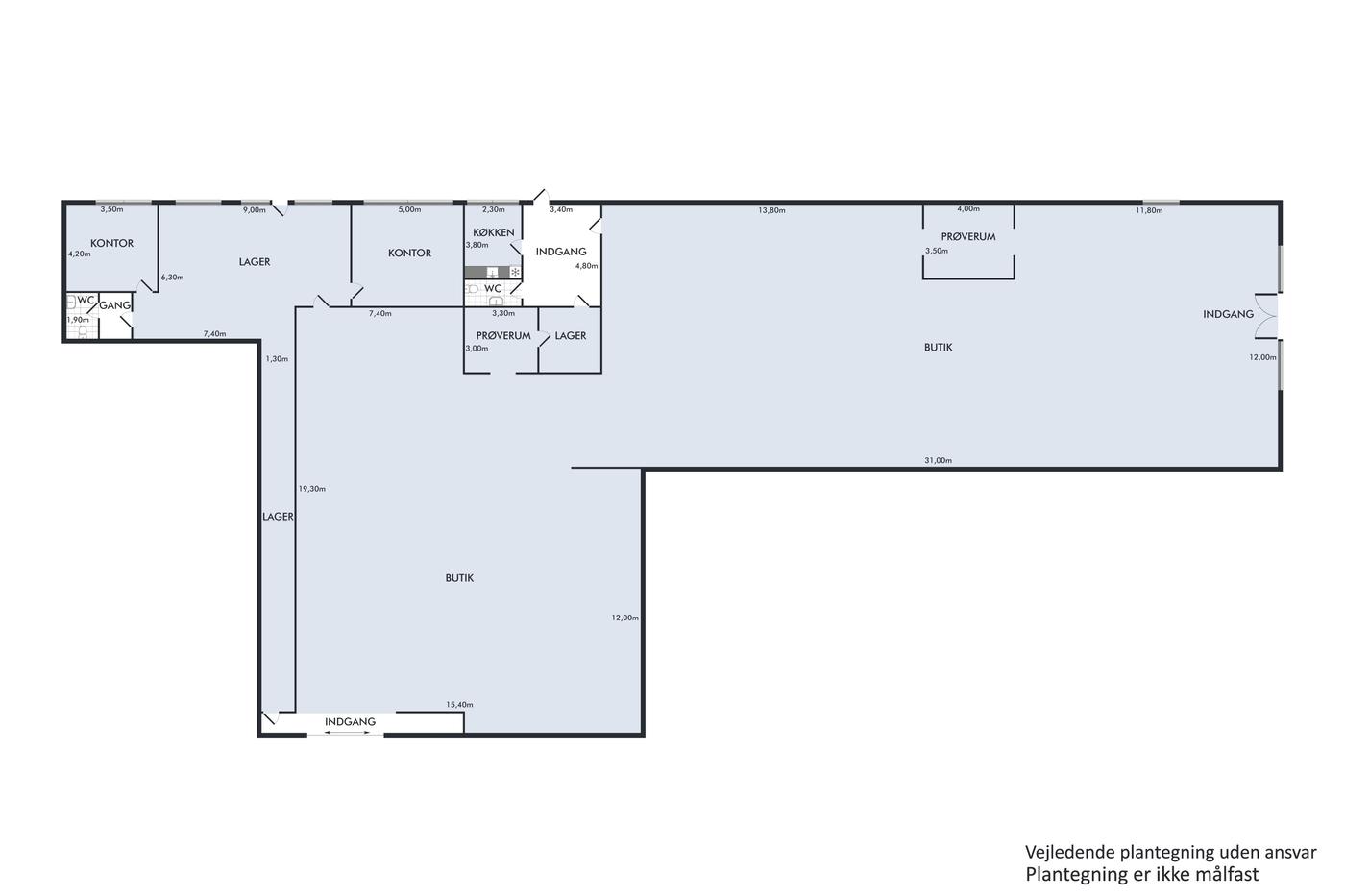
Oprindeligt er det 2 butikker som er blevet lagt sammen, på hhv. 557 m² og 283 m², og som relativt nemt vil kunne opdeles igen, hvis formålet hertil nogensinde skulle opstå.

Butikken er indrettet i en bred vinkelform, med stort overskueligt salgslokale, god lofthøjde og i øvrigt af en god standard. Herudover er der baglokaler bestående af lagerrum, kontor, personalerum m.v.

Butikken har 2 publikumsorienterede facader - én fra Elmegade/Nygade, der har stor eksponering mod trafikken og én fra Nytorvs gode parkeringsplads.

Salget omfatter et sale and lease back, hvor den solide lejer, tilbyder køber en 10 årig lejekontrakt på markedsvilkår. De nærmere kontraktsforhold aftales endeligt i forbindelse med handelen.

Læs mere

Vil du vide mere?

Henrik Nikolajsen

hkn@nordicals.dk

+45 4034 4292

Sorøvej 9A, 4200 Slagelse

+45 5850 1212

4200@nordicals.dk

Besøg vores mæglerside

Lignende ejendomme

Til top