Saltbækvej 114
4400 Kalundborg

Sagsnr. 1119103

Ejendomstype

Etageareal

Grund

Energiklasse

2.529 m²

21.434 m²

E

Kontantpris

Købspris pr. m²

Årlig driftsudgift

Årlig driftsudgift pr. m²

5.750.000 kr.

2.274 kr.

24.578 kr.

10 kr.

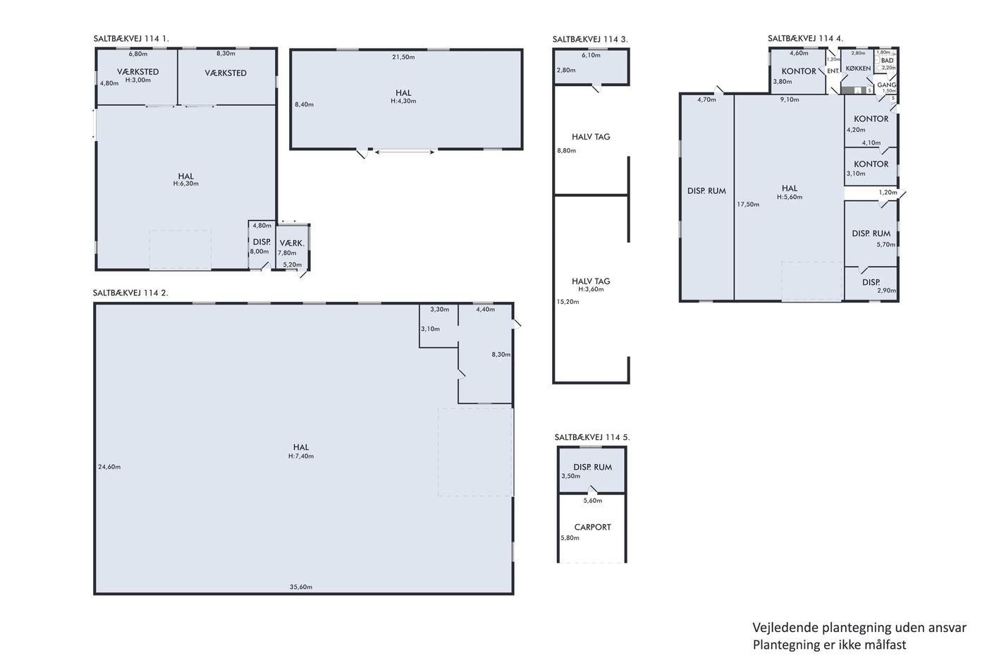
Unik erhvervsejendom med stort udviklingspotentiale

Ejendommen på Saltbækvej 114 udgør en alsidig og velbeliggende erhvervsejendom med et samlet grundareal på ca. 21.000 m², bestående af både bebygget areal og åbne arealer med udviklingspotentiale. Den eksisterende bebyggelse omfatter en kombineret bolig- og erhvervsbygning med mulighed for flerfunktionel anvendelse, herunder velegnet til entreprenørvirksomhed, værkstedsdrift, lager, udlejning og beboelse.

Bygningen fremstår i solid stand og er indrettet med faciliteter, der understøtter både privat beboelse og erhvervsmæssig aktivitet. Ejendommen vurderes at have et attraktivt investeringspotentiale, både som driftsenhed og som udlejningsobjekt, og henvender sig til aktører med behov for fleksible rammer og mulighed for tilpasning af ejendommens anvendelse.

Ejendommen er beliggende i et naturskønt område med kort afstand til Kalundborg bymidte og havn, hvilket sikrer god tilgængelighed for både personale, kunder og leverandører. Den store grund giver mulighed for yderligere bebyggelse, udvidelse af eksisterende faciliteter eller etablering af udendørs lager- og parkeringsarealer.

Læs mere

Vil du vide mere?

Mariella Søndergaard

msd@nordicals.dk

+45 2434 2456

Sorøvej 9A, 4200 Slagelse

+45 5850 1212

4200@nordicals.dk

Besøg vores mæglerside

Lignende ejendomme

Til top