Annebergparken 22, Lærkehus
4500 Nykøbing Sj

Sagsnr. 11821054

Ejendomstype

Etageareal

Grund

Energiklasse

1.624 m²

5.946 m²

F

Lærkehus - Annebergparken

Spændende mulighed i det fantastiske område Annebergparken i Nykøbing Sj. Området er oprindeligt i 1915-23 opført som sindssygehospital, og med arkitektonisk flotte bygninger efter Bedre Byggeskik stilen, tegnet af Kristoffer Varming, og er i dag et virkelig attraktivt og levende område ved fjord og skov, med et helt særligt miljø, og stadig tæt ved byens gågade med cafe- og handelsliv, der bla. kan nås via en charmerende og oplyst sti gennem skoven.

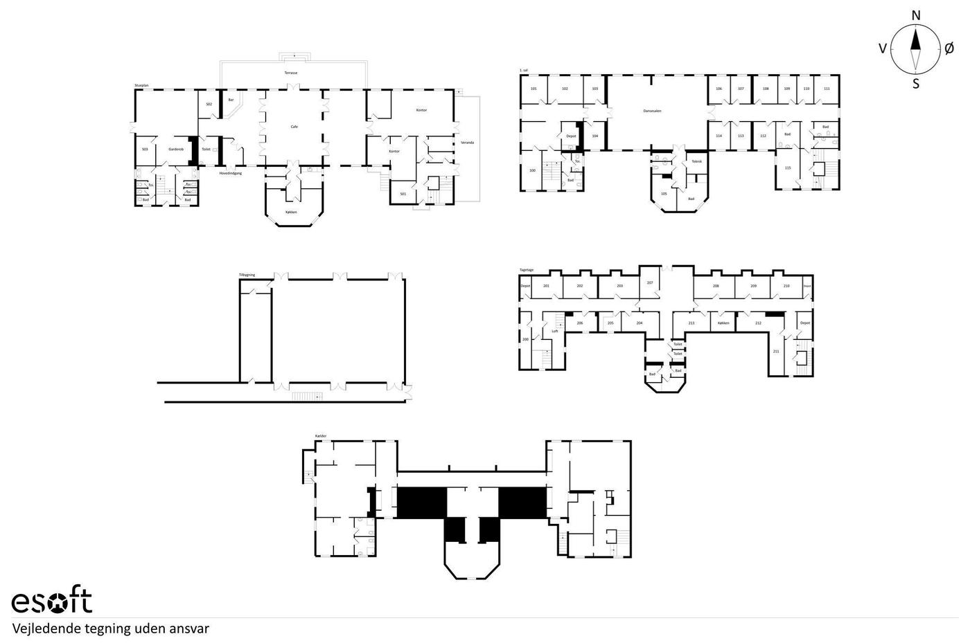
Den velproportionerede, trefløjede ejendom fremstår i dag i den oprindelige arkitektur og er en vigtig del af parkområdet i den østlige del af Annebergparken. Bygningen har et samlet bolig- og erhvervsareal på 1.624 m2 og ligger på en grund der udgør knap 6.000 m².

Ejendommen fremstår mere eller mindre helt nyistandsat både inde og ude. Vinduerne er primært de originale palævinduer, der er nyt tag inkl. nyt undertag og nye tagvinduer samt nye gulvbelægninger.

Stueetagen er udlagt som en række kontorer, møderum og større og mindre sale, samt stort køkken. 1. sal er udlagt med møblerede beboelsesværelser, samt undervisningslokaler. 1. sal og tagetagen består af godt 30 beboelsesværelser samlet. Der er desuden en nyere tilbygning der i dag fungerer som teater/auditorium.

Området og dets mange lignende bygninger har tidligere været et institutionsområde for psykiatriske patienter, men er i dag omdannet til et fantastisk miljø med blandede boliger, små iværksættervirksomheder, heraf mange indenfor fødevarebranchen, ligesom her er mange kreative beboere og virksomheder.

Denne markante og flot placerede ejendom kunne være oplagt til eksempelvis efterskole, hotel, pensionat, behandlingscenter, konferencecenter eller vandrehjem mv.

Hvis anvendelse af ejendommen i forbindelse med købers overtagelse bliver ændret, må køber påregne diverse krav i forhold til påtænkt anvendelse. Nuværende anvendelse er ifølge lokalplanen undervisning og forskning.

Ejendommen udbydes i samarbejde med Freja Ejendomme, der overtog ejendommen fra Bygningsstyrelsen.

Læs mere

Denne ejendom er solgt

Vil du vide mere?

Søren Mosbæk

smk@nordicals.dk

+45 2033 7733

Allehelgensgade 8 , 4000 Roskilde

+45 4635 2292

4000@nordicals.dk

Besøg vores mæglerside

Lignende ejendomme

Til top