Gasværksvej 6
4500 Nykøbing Sj

Sagsnr. 20825138

Ejendomstype

Etageareal

Grund

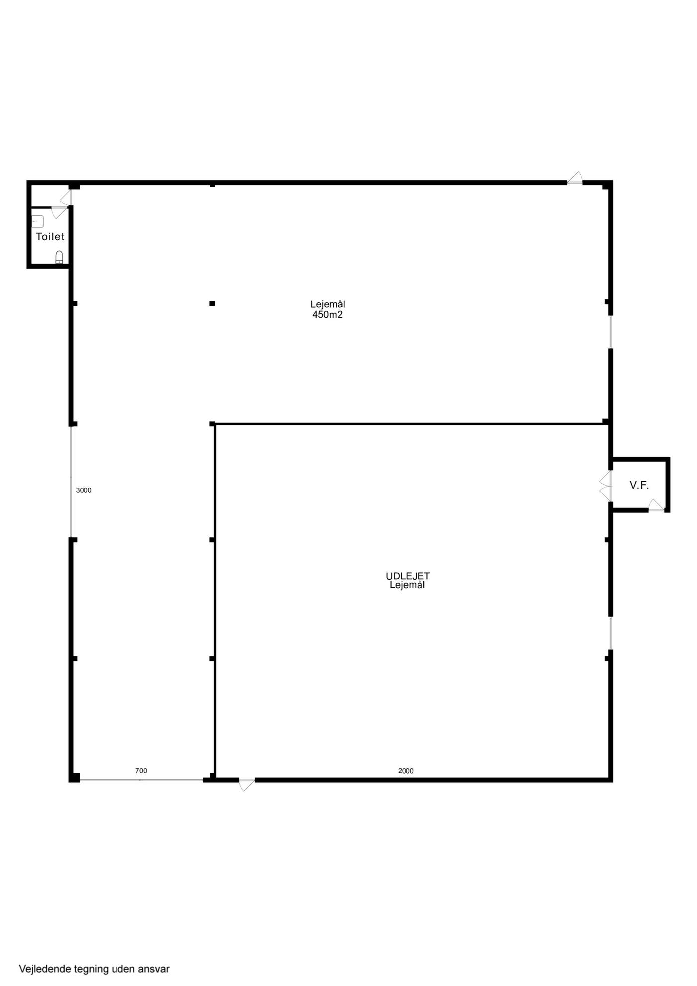
450 m²

2.400 m²

Årlig leje

Leje pr. m²

Depositum

111.600 kr.

248 kr.

55.800 kr.

Multihal med facade til Havnevej

Meget velbeliggende koldhal i Nykøbing Sj. med facade til Havnevej, hvor der er trafik til/fra havneområdet med hyggelig lystbådehavn, husbåde, kunsthåndværkere og restaurant m.v. og lige overfor dagligvareforretning.

Nykøbing er områdets hyggelige købstad, og specielt om sommeren er her virkelig mange turister fra de mange sommerhuse fra Odden til Rørvig.

Hallen har tidligere været anvendt til "Havnens Stormarked" - et sæsonåbent Outlet-marked - og vil kunne anvendes til samme formål igen, ligesom hallen er velegnet til mange andre formål lige fra kulturelle aktiviteter, over fritidsaktiviteter til indendørs Streetfood marked, kræmmerhal og naturligvis også til formål som lager og industri m.v.

Adgang dels fra vindfang mod Havnevej og dels fra port i befæstet udeareal.

En spændende mulighed med en god beliggenhed.

Kontakt medvirkende mægler for yderligere oplysninger, og for aftale om fremvisning.

Læs mere

Vil du vide mere?

Søren Mosbæk

smk@nordicals.dk

+45 2033 7733

Allehelgensgade 8 , 4000 Roskilde

+45 4635 2292

4000@nordicals.dk

Besøg vores mæglerside

Lignende ejendomme

Til top