Grønnehavestræde 1
4500 Nykøbing Sj

Sagsnr. 11824237

Ejendomstype

Etageareal

Grund

Energiklasse

348 m²

827 m²

C, E

Kontantpris

Købspris pr. m²

Årlig driftsudgift

Årlig driftsudgift pr. m²

1.995.000 kr.

5.733 kr.

28.333 kr.

81 kr.

Ejendom med mange muligheder

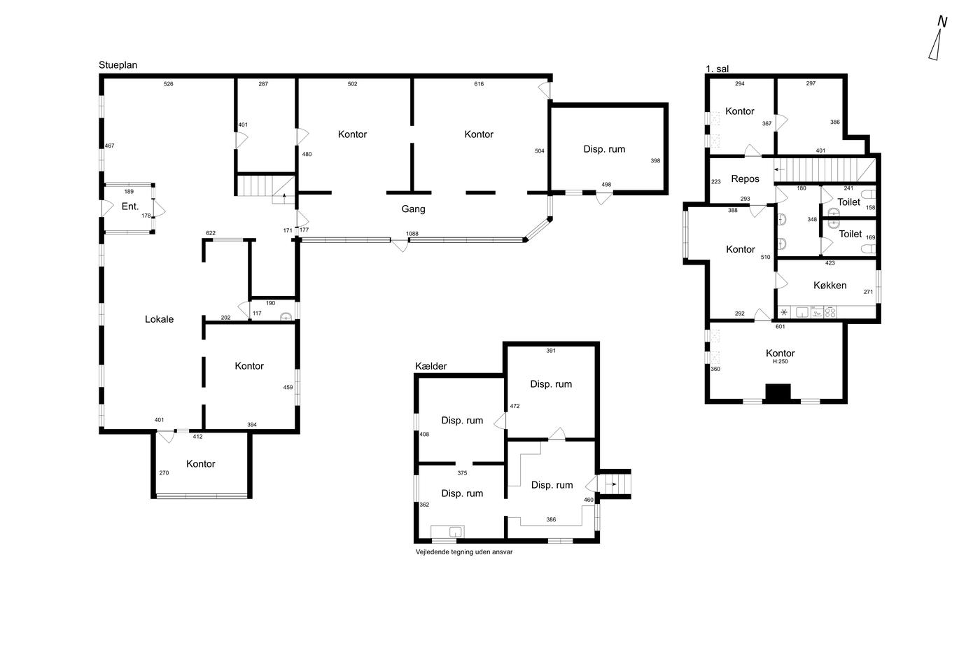
Erhvervsejendom bestående af to sammenbyggede bygninger, med forhuset mod Grønnehavestræde med indgangsparti m.v., og i vinkel sidebygning med glasfacade i gården, hvor der er yderligere en indgang, samt god parkering m.v.

Beliggende yderst centralt i Nykøbing Sj. bymidte, lige bag byens pulserende gågade Algade med butikker, cafeer, teater m.v.

Ejendommen fremtræder i pænt vedligeholdt stand, og med pudsede lyse facader, hvide dannebrogsvinduer, samt tag i eternit-skifer.

Indrettet med åbent kontormiljø i f.m. indgangspartiet, mindre kontor, toilet, depotrum, teknikrum, samt yderligere kontorer i sidebygningen. 1. Salen med mødelokale, frokoststue, køkken, og yderligere toiletfaciliteter. Herudover kælder, med diverse disponible rum.

Grunden er med anlagt til parkering m.v. i gårdarealet. I gården er der desuden et uisoleret udhus.

Ejendommen er pt. registreret til erhverv/kontor, men vil også kunne anvendes til fx klinik o.l., ligesom der er mulighed for konvertering til boligformål. Jf. rammebetingelser er bebyggelsesprocenten 100%, og der kan bygges i op til 2½ etage.

Kontakt medvirkende mægler for yderligere oplysninger, og aftale om fremvisning.

Læs mere

Vil du vide mere?

Søren Mosbæk

smk@nordicals.dk

+45 2033 7733

Allehelgensgade 8 , 4000 Roskilde

+45 4635 2292

4000@nordicals.dk

Besøg vores mæglerside

Lignende ejendomme

Til top