Rørvigvej 225 / Hjortevænget 10
4500 Nykøbing Sj

Sagsnr. 16825008

Ejendomstype

Etageareal

Grund

Energiklasse

227 m²

4.478 m²

G

Cafe / restaurant / butik

Ejendom bestående af to matrikler, hvoraf den ene er en ubebygget sommerhusgrund, mens hovedmatriklen er bebygget med en ca. 20 år gammel erhvervsbygning, velegnet til restaurant- og cafeformål, men også til butik m.v.

Beliggende i stort sommerhusområde og direkte til Rørvigvej, der er hovedlandevej mellem Nykøbing Sj. og Rørvig, og således med stor synlighed og nem adgang, hvilket til den erhvervsmæssige anvendelse er en fordel. Der er tillige etableret god kundeparkering.

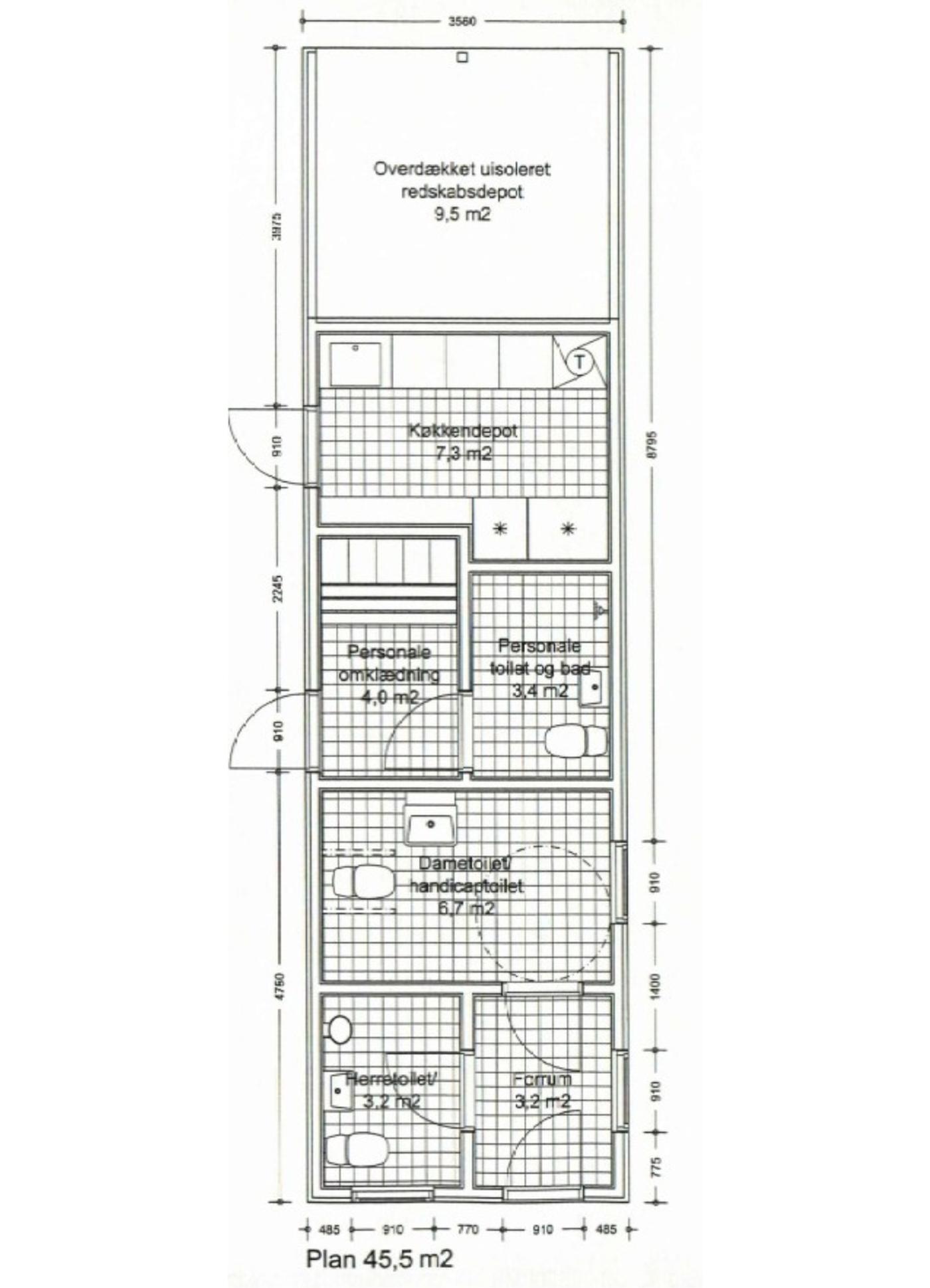
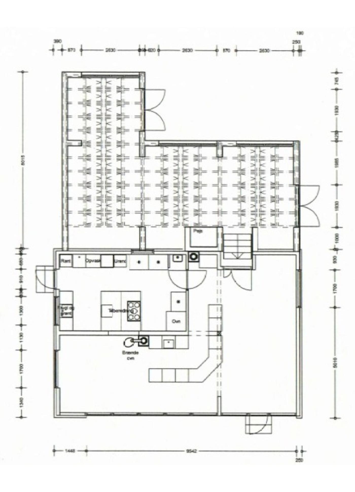
Hovedbygningen er opført i 2005 på grunden fra en tidligere bygning, og er derfor BBR-mæssigt registreret som oprindeligt opført i 1966. Opført i en rigtig "Rørvig-sommerhus-stil". Indeholder stort butikslokale med bar, industrikøkken, samt et virkelig hyggeligt orangeri med pejs, og udgang til en spændende grund med gamle træer og gode opholdsområder.

Herudover en bygning opført i 2005 med toiletter til både kunder og personale, depotrum m.v., samt et mindre sommerhus uden vand/afløb.

Den tomme grund ligger i forlængelse, og tilsammen giver det yderligere muligheder for bebyggelse til erhvervsmæssig brug, eller evt. salg af grunden til sommerhusbebyggelse.

Kontakt medvirkende erhvervsmægler for yderligere oplysninger, og aftale om fremvisning.

Læs mere

Denne ejendom er solgt

Vil du vide mere?

Søren Mosbæk

smk@nordicals.dk

+45 2033 7733

Allehelgensgade 8 , 4000 Roskilde

+45 4635 2292

4000@nordicals.dk

Besøg vores mæglerside

Lignende ejendomme

Til top