Ny Hagestedvej 34, Ny Hagested
4532 Gislinge

Sagsnr. 20826033

Ejendomstype

Etageareal

Grund

445 m²

195.811 m²

Årlig leje

Leje pr. m²

Depositum

84.000 kr.

189 kr.

42.000 kr.

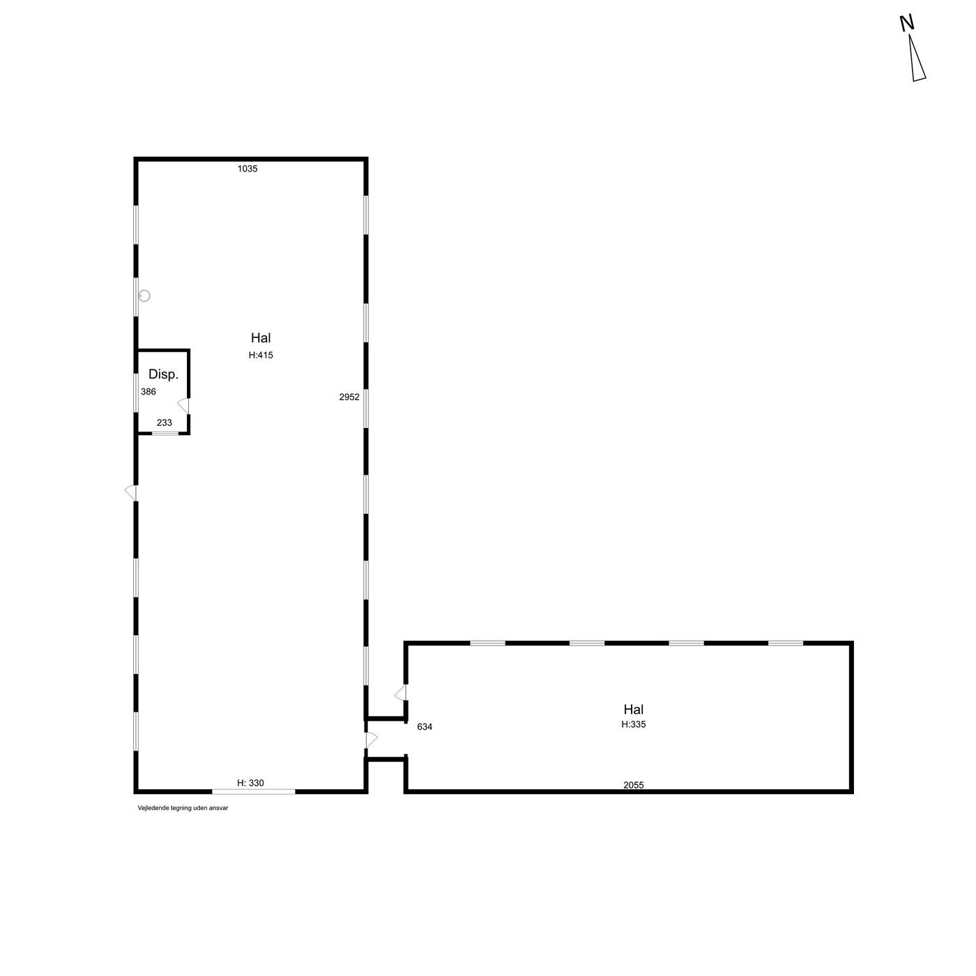
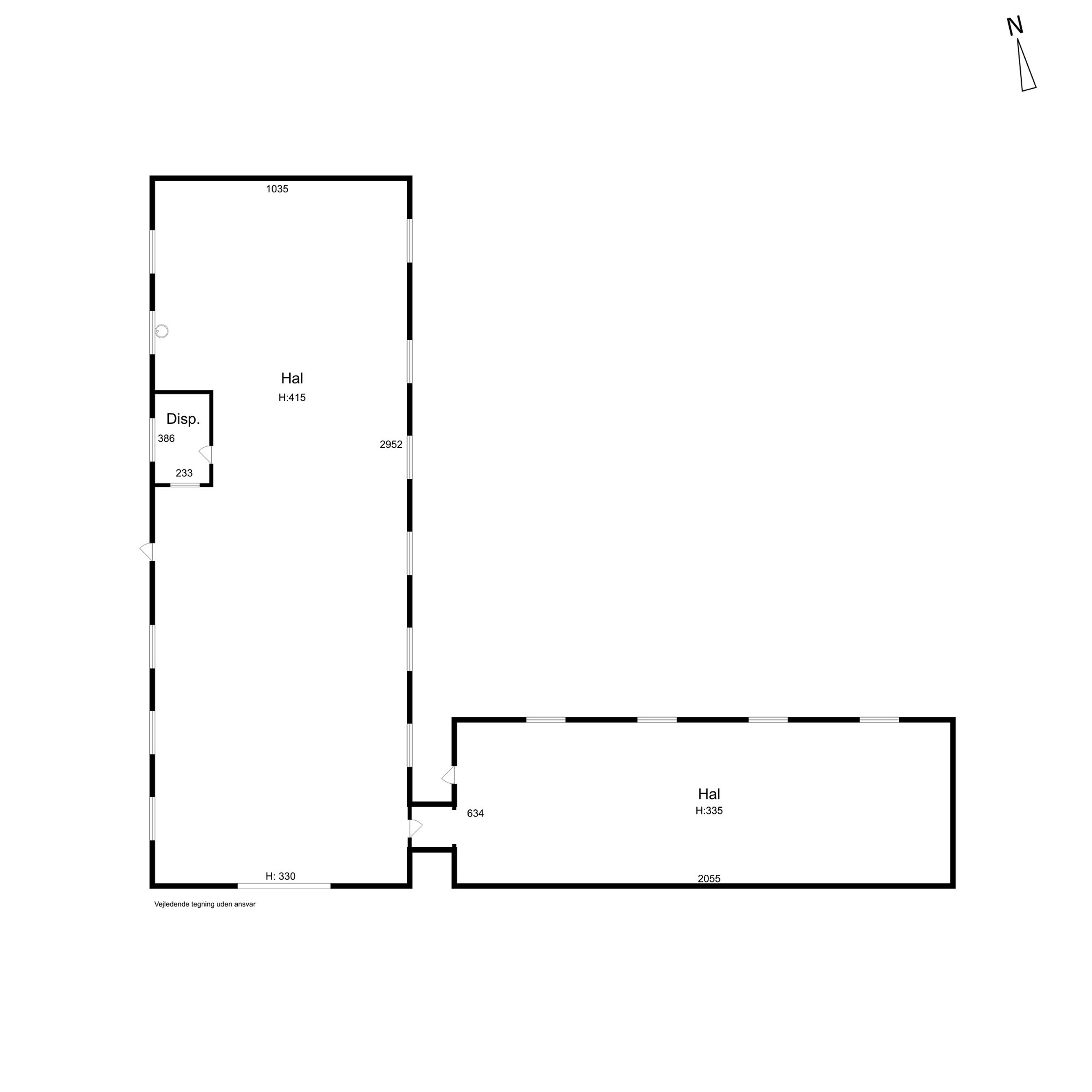
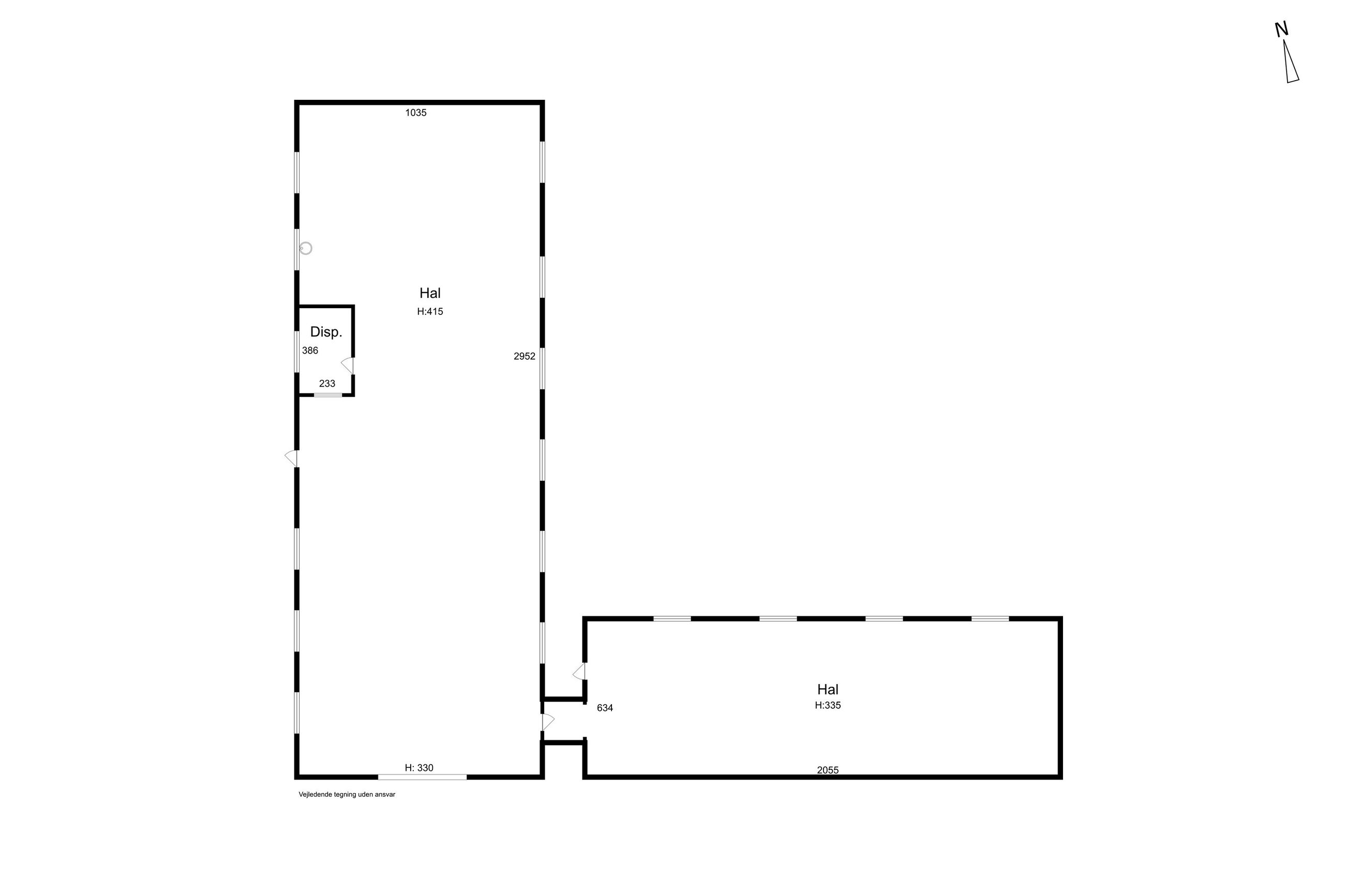
Lager i landlige omgivelser tæt ved Holbækmotorvejen

Nu er det muligt at leje dette nyrenoverede isolerede lager. Der har en lofthøjde på 3½ - 4 meter og egen port i gavlen.
Opvarmning sker med oliefyr og kalorifere.
Hertil en tilstødende koldhal.

Beliggende i landlige omgivelser med stor grund, tæt på flyveplads, Ny Hagested station og 3 km fra Holbækmotorvejen.

Oplagt til lager for handelsvirksomhed eller mindre produktionsvirksomhed.

Der er indlagt vand men ingen toilet.

Læs mere

Vil du vide mere?

Tonny Olsen

ton@nordicals.dk

+45 2020 7268

Allehelgensgade 8 , 4000 Roskilde

+45 4635 2292

4000@nordicals.dk

Besøg vores mæglerside

Lignende ejendomme

Til top