Industrivangen 6
4550 Asnæs

Sagsnr. 10824324

Ejendomstype

Etageareal

Grund

Energiklasse

693 m²

2.500 m²

D

Kontantpris

Købspris pr. m²

Afkast

Årlig lejeindtægt

Årlig lejeindtægt pr. m²

Årlig driftsudgift

Årlig driftsudgift pr. m²

3.150.000 kr.

4.545 kr.

7,27 %

268.791 kr.

388 kr.

46.280 kr.

67 kr.

Attraktiv investeringsejendom med moderne faciliteter

Attraktiv erhvervsejendom med moderne faciliteter og udviklingsmuligheder.

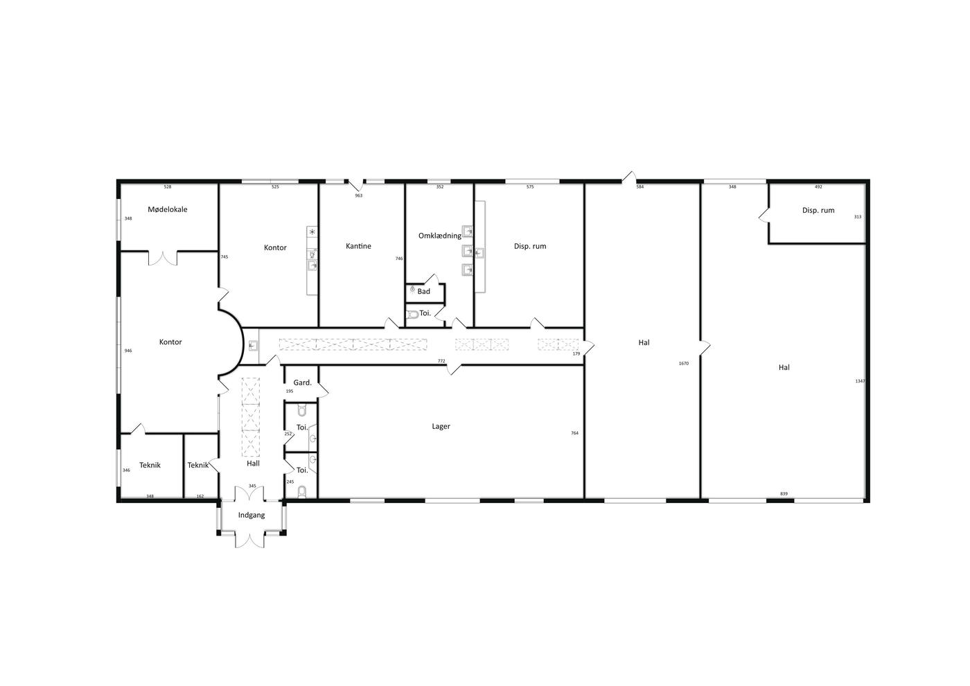
Denne velholdte erhvervsejendom på 693 m² fra 1989 har en ideel beliggenhed og byder på et bredt udvalg af faciliteter, som en moderne domicilejendom skal have. Ejendommen er placeret på hjørnet af Industrivangen og Håndværkervangen og gør et indtryk med sit elegante indgangsparti i glas og stål. Størstedelen af bygningen er indrettet som lager med en loftshøjde på ca. 3 meter ved spærene og 5 meter til kip. Ejendommen er udstyret med flere porte på både syd- og nordsiden, og lagerhallerne har gode faciliteter som isolering, ventilation, ovenlysvinduer og indskudt dæk for at optimere pladsen.
Kontorafsnittet byder på rummelige arbejdsområder, køkken med kantine, mødelokaler samt toilet- og badefaciliteter. Omkring ejendommen er der en tæt hæk, der indrammer ejendommen, og der er rigeligt med parkeringspladser til både medarbejdere og besøgende. Ejendommen er pt. udlejet med binding indtil 2024, hvorefter den nye ejer kan vælge at fortsætte med lejeren eller tage ejendommen i brug selv. Med en udnyttelse på 28% er der mulighed for at udvide bygningen med yderligere 125 m², inden for lokalplanens rammer.

Ejendommen er centralt beliggende med nem adgang til Rute 21 og bycentrum.

Ejendommen på Industrivangen 6 ligger i et synligt og attraktivt erhvervsområde i Asnæs, hvor flere andre virksomheder som Flux A/S og DPA Microphones A/S også har base. Asnæs centrum er kun 750 meter væk, hvilket giver nem adgang til butikker og dagligvareindkøb i Asnæs Centret, hvor Superbrugsen er den nærmeste dagligvarebutik. Holbækmotorvejen, som er det nærmeste motorvejstilkørselssted, ligger omkring 15,3 km væk, og det tager ca. 13 minutter at nå den, hvilket gør ejendommen let tilgængelig for både kunder og leverandører. Desuden ligger Asnæs Station blot 1 km fra ejendommen, en kort cykeltur på omkring fem minutter.

Læs mere

Vil du vide mere?

Søren Mosbæk

smk@nordicals.dk

+45 2033 7733

Allehelgensgade 8 , 4000 Roskilde

+45 4635 2292

4000@nordicals.dk

Besøg vores mæglerside

Lignende ejendomme

Til top