Vestergade 30B
4600 Køge

Sagsnr. 20821020

Ejendomstype

Etageareal

Grund

Energiklasse

108 m²

5.427 m²

C

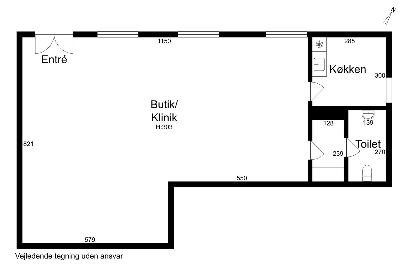
Lejemål til butik/klinik/liberalt erhverv

Erhvervsejerlejlighed fra 1992 beliggende på Vestergade i Køge Centrum.

Mange anvendelsesformål vil være oplagte, hvad enten det er til klinikformål, butik eller liberalt erhverv. I dag bruges lokaler til klinik og er opdelt med "lette" rum, der nemt kan nedtages såfremt der ønskes et mere regulært og åbent rum.

Facaden er i røde mursten og der er store vinduespartier i hele ejendommen højde.

I tilknytning til ejendommen er der stor parkeringsplads.

Læs mere

Denne ejendom er udlejet

Vil du vide mere?

Tonny Olsen

ton@nordicals.dk

+45 2020 7268

Allehelgensgade 8 , 4000 Roskilde

+45 4635 2292

4000@nordicals.dk

Besøg vores mæglerside

Lignende ejendomme

Til top