Elverhøjsvej 16
4700 Næstved

Sagsnr. 20526030

Ejendomstype

Etageareal

68 m²

Årlig leje

Leje pr. m²

Depositum

96.000 kr.

1.412 kr.

24.000 kr.

Indbydende kontorlejemål på 40 m² med god synlighed fra Køgevej i Næsted

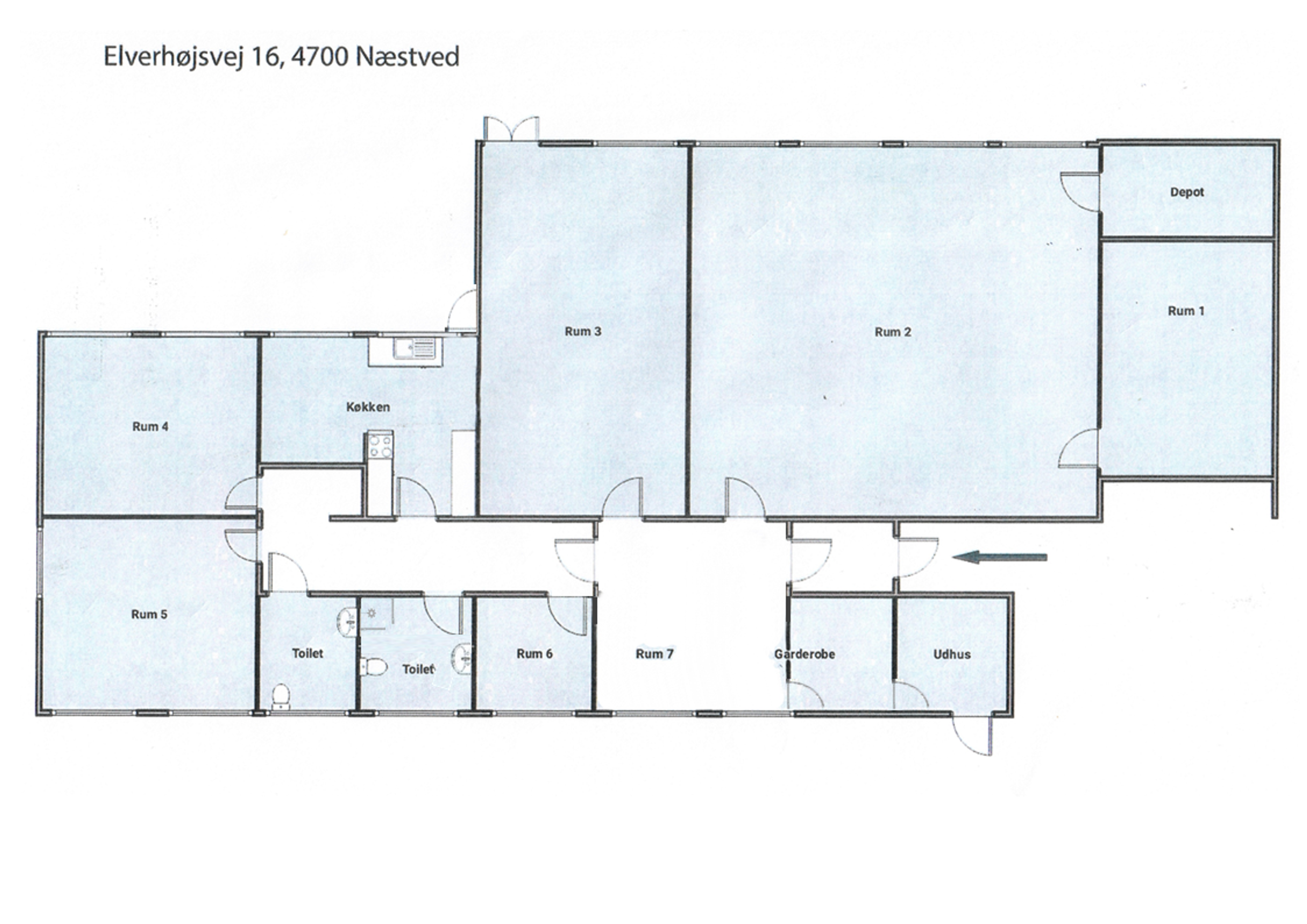
Dette attraktive lejemål på Elverhøjsvej 16 fremstår i flot og indbydende stand, og er klar til indflytning. Lejemålet byder på 40 m² regulært rum med højt til loftet og et behageligt lysindfald fra store vinduer.

Lejemålet er særdeles velegnet til kontorformål og kan nemt indrettes efter behov.

Der er mulighed for leje af flere eller færre kvadratmeter i ejendommen. Kontakt Nordicals for en dialog herom.

Indeholdt i lejen er både forbrug af el, vand og varme, rengøring samt evt. indretning. Ejendommens køkken samt toiletter fungerer som fællesareal, som deles med ejendommens øvrige lejere. Ligeså gælder det for parkeringspladsen, indgang/entré og gangarealer.

Ejendommen er beliggende i et roligt og velfungerende erhvervsområde i Næstved med gode tilkørselsforhold og nem adgang til både bymidten og det overordnede vejnet. Området er præget af erhverv og servicevirksomheder og tilbyder en praktisk og professionel ramme for daglig drift. Samtidig er der kort afstand til offentlig transport samt indkøb og øvrige faciliteter.

Et særdeles præsentabelt lejemål, der danner gode rammer for en moderne og effektiv arbejdsplads. Med placering ved krydset ved Køgevej opnås den helt ideelle synlighed og eksponering.

Læs mere

Vil du vide mere?

Maja Jarnved

mha@nordicals.dk

+45 5121 0079

Præstøvej 111, 4700 Næstved

+45 5950 1212

4700@nordicals.dk

Besøg vores mæglerside

Lignende ejendomme

Til top