Messebuen 1C. st.
4700 Næstved

Sagsnr. 20521179

Ejendomstype

Etageareal

Grund

Energiklasse

475 m²

9.678 m²

C

Årlig leje

Leje pr. m²

Depositum

Årlig driftsudgift

Årlig driftsudgift pr. m²

350.000 kr.

737 kr.

207.812 kr.

35.131 kr.

74 kr.

Attraktiv placering i Næstved Nord

Rabat på huslejen de første par år.

Trappeleje:
- år 1. kr. 350.000,-
- år 2. kr. 375.000,-
- år 3. kr. 415.625,- (basislejen).

Lejemålet er beliggende i det mest attraktive område i Næstved, nemlig lige overfor Næstved Storcenter.

Lejemålet har en stor synlighed fra Køgevej, som er en af de mest trafikerede indfaldsvej til Næstved.

Lejemålet, som er en tidligere HTH butik, fremstår vel vedligeholdt men bliver istandsat efter nærmere aftale med udlejer inden overtagelsen.

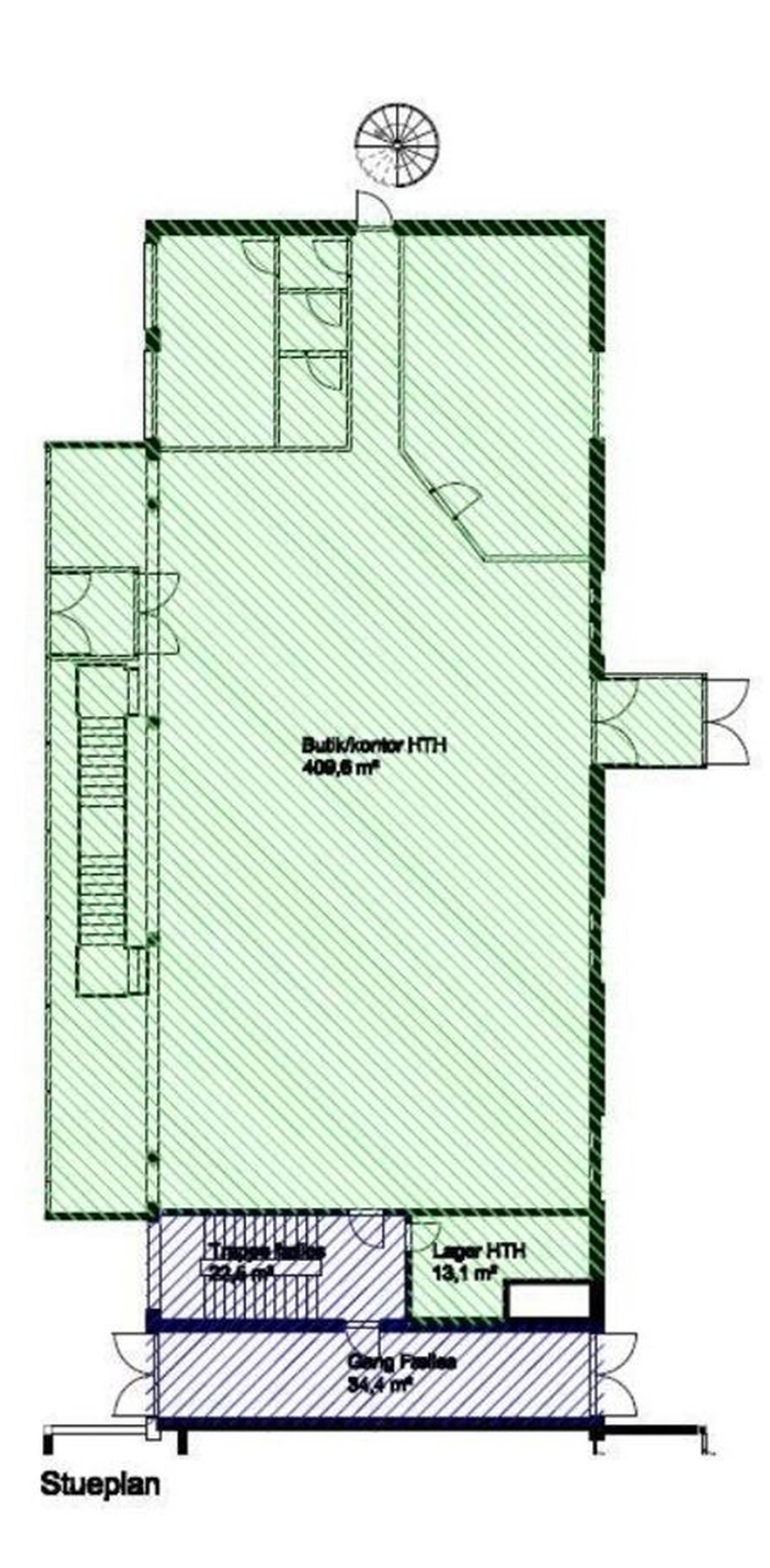
Lejemålet, som er i stueplan, rummer butik på 410 m², lager på 13 m² og en mindre kælder på 52 m². Lejemålet er indrettet med pænt toilet og tekøkken samt det store butikslokale. Der er store vinduespartier, som giver gode udstillingsmuligheder og et fantastisk lysindfald i lokalet.

Der er gode parkeringsmuligheder ved butikken.

Der er også mulighed for at indrette lejemålet til kontor.

Læs mere

Vil du vide mere?

Mads Hess Jensen

mhj@nordicals.dk

+45 5950 1212

Præstøvej 111, 4700 Næstved

+45 5950 1212

4700@nordicals.dk

Besøg vores mæglerside

Lignende ejendomme

Til top