Toldbuen 1
4700 Næstved

Sagsnr. 11525137

Ejendomstype

Etageareal

Grund

Energiklasse

2.782 m²

10.870 m²

A2010, C

Kontantpris

Købspris pr. m²

Årlig driftsudgift

Årlig driftsudgift pr. m²

22.000.000 kr.

7.908 kr.

120.852 kr.

43 kr.

Kontordomicil i høj kvalitet

Attraktiv og fleksibel kontorejendom med moderne faciliteter.

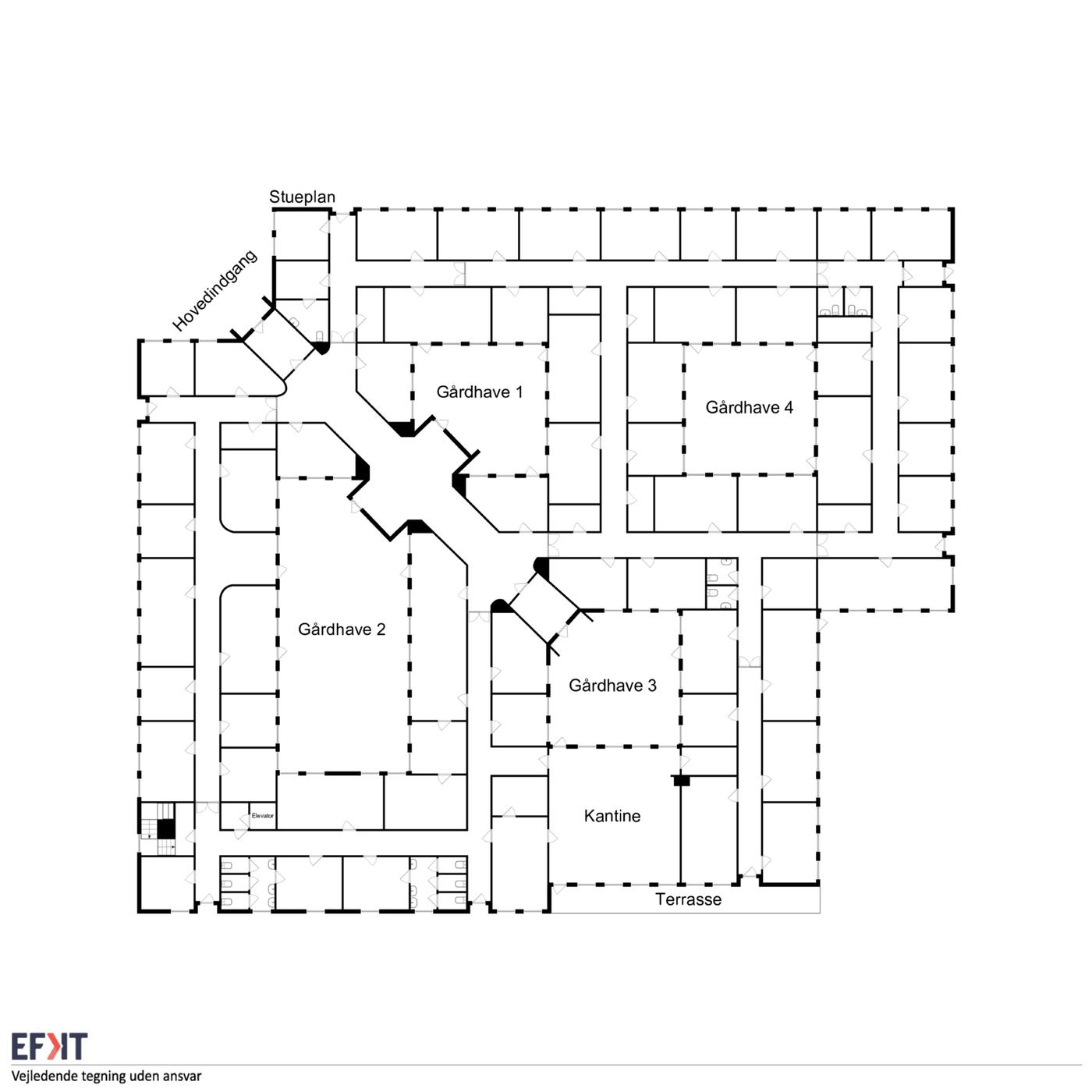
Ejendommen består af to sammenbyggede bygninger, som tilsammen udgør en alsidig og funktionel kontorløsning med mulighed for såvel domicilejendom som flerbrugerejendom.

Den ene bygning er opført i 2010 og fremstår moderne og indflytningsklar. Bygningen er opført i tre etager med tilhørende kælder, og er indrettet med mødelokaler og cellekontorer.

Rummene er opdelt med glasvægge og fleksible rumløsninger, som nemt kan tilpasses forskellige behov. Bygningen har et lyst og indbydende udtryk, og er udstyret med elevator, eget ventilationsanlæg, hvilket understøtter en komfortabel og effektiv daglig drift.

Den anden bygning er opført i 1992 i ét plan, hvilket giver niveaufri adgang og nem tilgængelighed. Den er indrettet med en central fordelingsgang, hvorfra der er adgang til kontorer og mødelokaler, primært i cellekontorstruktur. Der er etableret en stor kantine samt flere toiletkerner, og bygningen har direkte adgang til grønne arealer og flere atriumgårde, som skaber et behageligt og inspirerende arbejdsmiljø. Der er pæne trægulve i kontorerne og klinker i fordelingsgangene, der er hvide vægge og lofter, hvilket giver et godt indtryk. Der er ligeledes ventilationsanlæg i denne del af bygningen.

Ejendommen rummer gode muligheder for opdeling i mindre enheder, herunder er der flere adgange til bygningen, hvilket gør den velegnet til flerbrugerejendom.

Der er et større parkeringsareal tilhørende bygningen. Der er parkering stort set hele vejen rundt om bygningen samt et større areal ved siden af ejendommen mod Toldbuen.

Samlet set tilbyder Toldbuen 1 en moderne og fleksibel ramme for virksomheder, der ønsker en professionel og attraktiv base i Næstved.

Ejendommen sælges for Freja Ejendomme, statens ejendomsselskab.

Læs mere

Vil du vide mere?

Jesper Jensen

jje@nordicals.dk

+45 4055 1880

Præstøvej 111, 4700 Næstved

+45 5950 1212

4700@nordicals.dk

Besøg vores mæglerside

Lignende ejendomme

Til top