Havnegade 61
4900 Nakskov

Sagsnr. 12-8129

Ejendomstype

Etageareal

Grund

Energiklasse

1.081 m²

650 m²

E

Investeringsejendom i Nakskov med udsigt til havnen

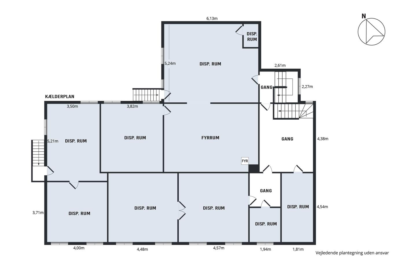
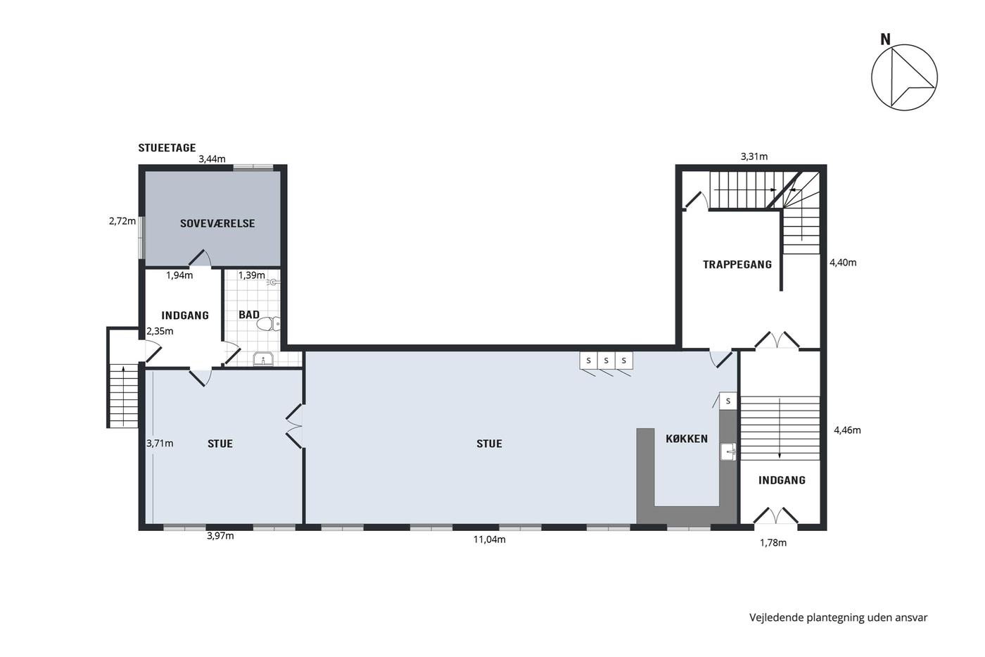
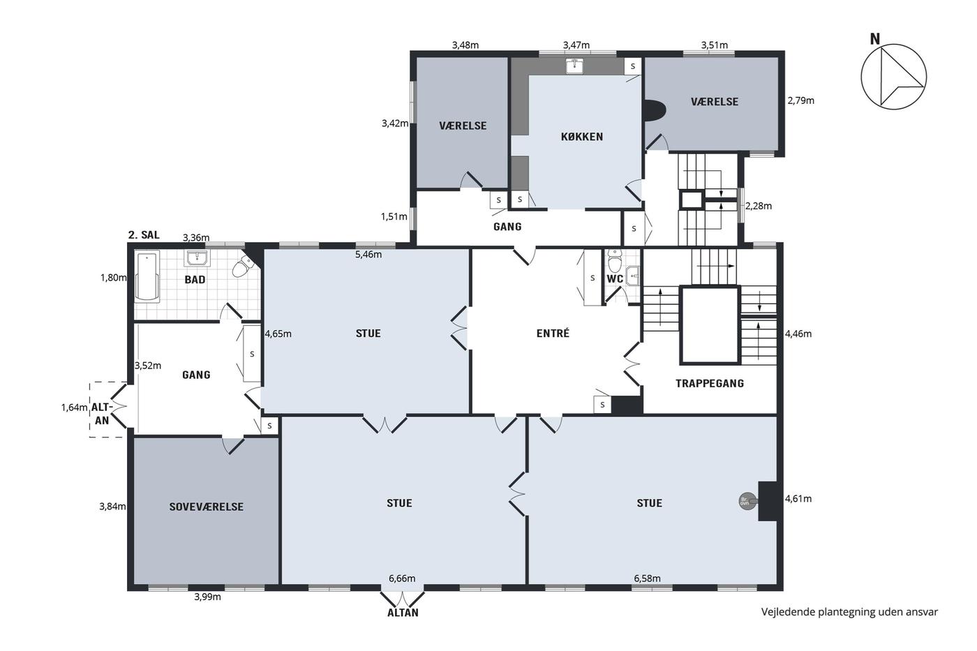
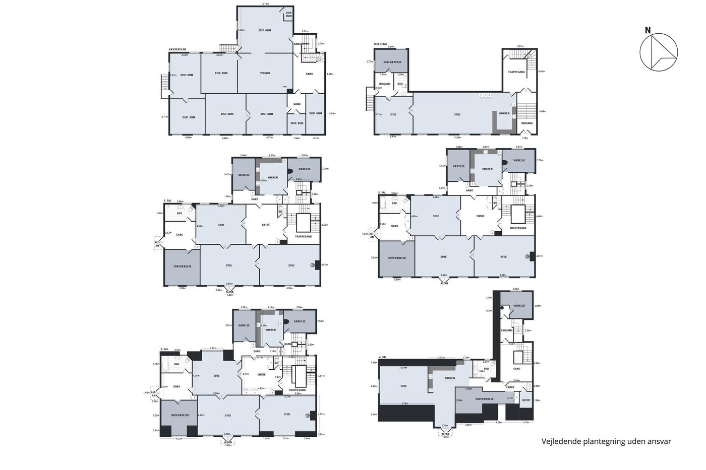
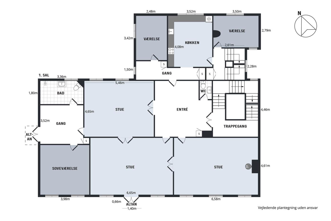
Hvis du tænker på eller ligefrem drømmer om at investere i en flot ejendom bestående af lejligheder, som du kan leje ud, og erhverv i stueetagen, så er du nu faldet over det helt rette til lige netop det formål. Her får du nemlig en nydelig ejendom, som rummer fem gode og store lejligheder alle sammen helt perfekte til udlejning. Foruden de fem lejligheder er der også erhverv i stuen. Til ejendommen hører derudover også en stor kælder, som man eventuelt kan tilbyde lejerne af lejlighederne som en ekstra gode. Der er pt. udlejet 103 m² i stueetagen, som anvendes til lager, kølerum, opbevaring og indlevering af varer.

Køber du denne ejendom, kommer du til at eje en bygning med en af de mest centrale beliggenheder i Nakskov. Desuden er der fra ejendommen også en smuk udsigt til havnen, og denne vil uden tvivl tiltrække en del lejere.

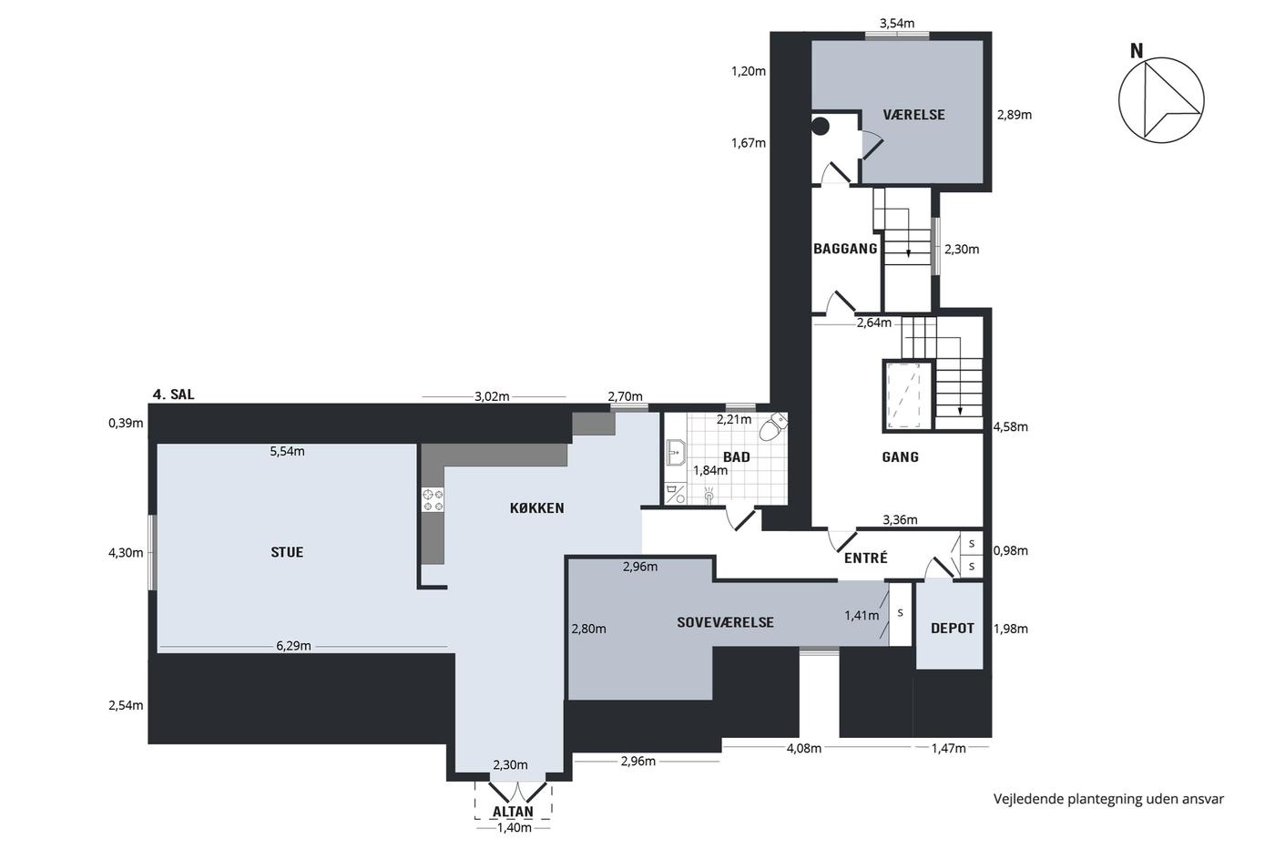
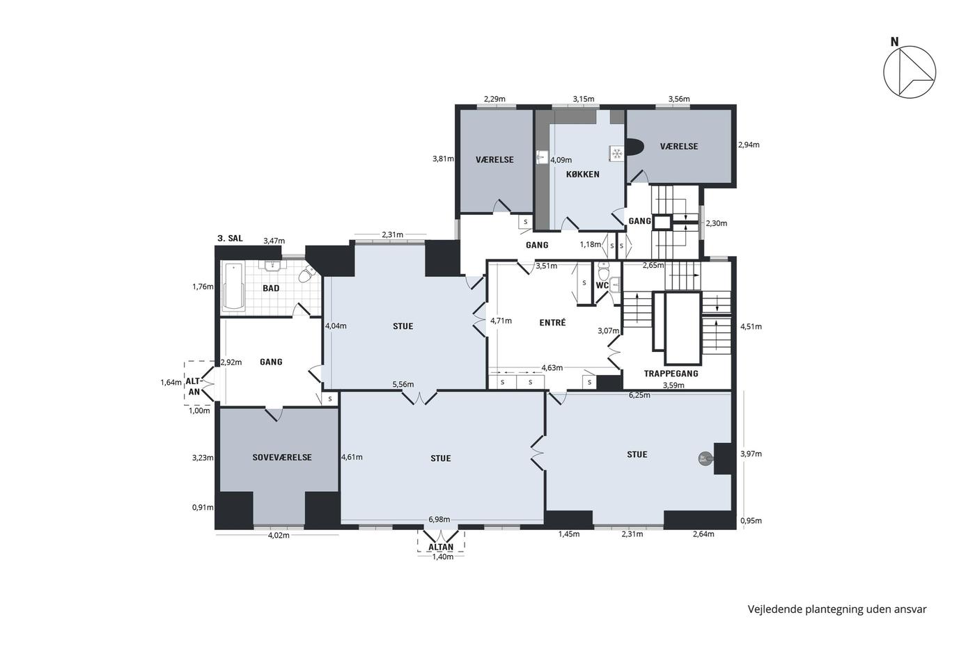
Ejendommen blev opført i 1945 og fremstår både flot og velholdt. Indvendigt trænger ejendommen til en renovering, således at hver lejlighed står indflytningsklar til eventuelle lejere. Mange elementer i de forskellige lejligheder er dog uden tvivl værd at bevare. Her kan især nævnes det smukke sildebensparket i den ene lejlighed samt de franske dobbeltdøre, som går igen i alle lejlighederne.

Med den centrale beliggenhed er ejendommen tæt på alt det, man kunne tænkes at have brug for. Gågaden i Nakskov er befinder sig nemlig lige bag ejendommen og er spækket med spændende butikker og forskellige spisesteder, og som derfor også vil være med til at tiltrække fremtidige lejere. Fra Nakskov Station kan man komme med lokalbanen og ind til både Maribo og Nykøbing Falster, skulle man en dag have brug for det.

Slå til i dag og gør en god investering!

Læs mere

Denne ejendom er solgt

Vil du vide mere?

Jakob Mygind

jmy@nordicals.dk

+4541400030

Askvang 4, st., 3400 Hillerød

+4570230047

3400@nordicals.dk

Besøg vores mæglerside

Lignende ejendomme

Til top