Østerbro 6
5000 Odense C

Sagsnr. 28557

Ejendomstype

Etageareal

Grund

Energiklasse

1.112 m²

1.993 m²

F

Erhvervsejendom

Erhvervsejendom beliggende på Østerbro, tæt på Odense centrum. Jernbanen kører lige bag ejendommen.

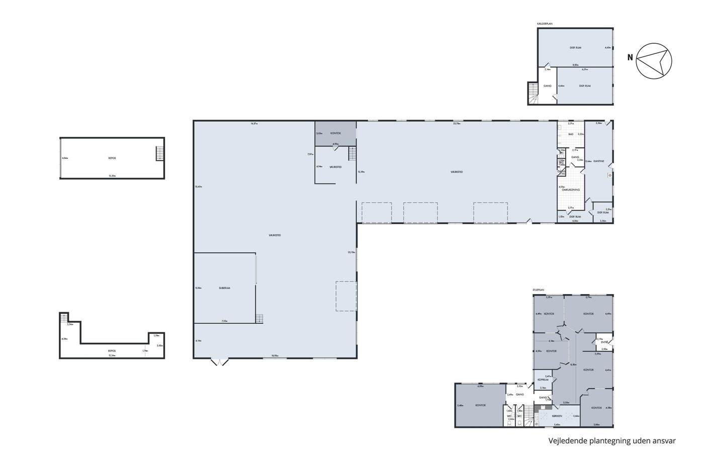
Bygningsmassen består af:

Bygning 1 udgør 403 m² og er opført i 1958. Tag i eternit og muret i røde sten og med nyere vinduer. Ejendommen er forrest mod gaden indrettet med frokoststue og mandskabsrum - ca. 150 m2. Bagved er der almindeligt lavloftet produktion/værksted.

Bygning 2 udgør 518 m² i 1 plan og er fra år 1958 og 1989. Det er opført af 2 omgange, hvor den bagerste del mod jernbanen, som udgør ca. 158 m², som er lavloftet, mens den forreste del er en regulær højloftet (ca. 5,5 m) produktionshal på ca. 360 m². Bygningen er opført i stålplader med tag i tagpap. Sammenbygget med bygning 1. Der er et mindre indskudt dæk, som ikke er på BBR og ej heller medtaget i nævnte arealer.

Bygning 3 udgør 191 m² og er indrettet til nydeligt kontor - moderniseret for ca. 13 år siden og fremstår i fin stand. Hertil fin kælder på 89 m² med mødelokale og arkiv. Sidst en lille tilbygning på 36 m², som ligeledes er kontor/toilet.

Grunden er fuldt bebygget. Låsbar gitterport ud til Østerbro.

Området hvor ejendommen ligger er et ældre erhvervsområde i Odense C. Det ligger meget bynært, hvorfor ejendommen vil være særdeles velegnet til f.eks. en lokal forankret håndværksvirksomhed eller lettere industri.

Læs mere

Denne ejendom er solgt

Vil du vide mere?

Niels Jørgensen

nij@nordicals.dk

+4551252825

Kongensgade 27, 1. sal, 5000 Odense C

+4566138060

5000@nordicals.dk

Besøg vores mæglerside

Lignende ejendomme

Til top