Albani Torv 5, st.
5000 Odense C

Sagsnr. 31066

Ejendomstype

Etageareal

Energiklasse

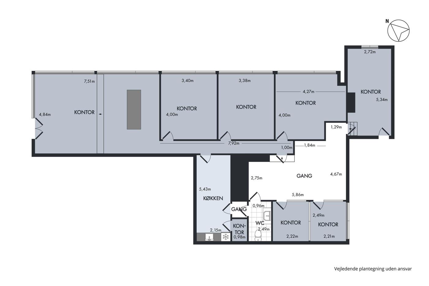
201 m²

D

Årlig leje

Leje pr. m²

Depositum

Årlig driftsudgift

Årlig driftsudgift pr. m²

261.300 kr.

1.300 kr.

130.650 kr.

21.105 kr.

105 kr.

Klinik/kontorlejemål centralt i Odense

Lejemålet fremtræder i sin helhed pænt og indbydende med store vinduer, som er med til at sikre et godt lysindfald i lokalerne. Ydermere er den centrale placering på hjørnet af Albani Torv, medvirkende til at lejemålet er meget synligt for forbipasserende.

Lejemålet er indrettet med indgang til stort og åbent kontor/modtagelsesområde, 5 kontorer/mødelokaler i varierende størrelser, toilet, tekøkken med adgang til et mindre depot samt 1 større lokale med nedgang fra lille trappe.

Lejemålet vil være særdeles velegnet til fortsat anvendelse som klinik, men vil også være velegnet til kontor, da lejemålets eksisterende indretning passer godt her til.

Lejemålet er velbeliggende centralt i Odense, med meget kort gåafstand til off. transport samt Odense Letbane og busstoppested. Det er med andre ord nemt for medarbejdere såvel som kunder at komme til og fra lejemålet.

Desuden er der fine parkeringsmuligheder nær lejemålet.

Læs mere

Vil du vide mere?

Simon Vinther Blach

svb@nordicals.dk

+4523111988

Kongensgade 27, 1. sal, 5000 Odense C

+4566138060

5000@nordicals.dk

Besøg vores mæglerside

Lignende ejendomme

Til top