Havnegade 100D
5000 Odense C

Sagsnr. 27698

Ejendomstype

Etageareal

Grund

Energiklasse

2.361 m²

3.914 m²

B

Kontorejendom ved Odense kanal

Markant kontorejendom beliggende på Havnegade med facade mod Odense Kanal.

Ejendommen er opført i pudsede facader og tagbeklædningen er tagpap.

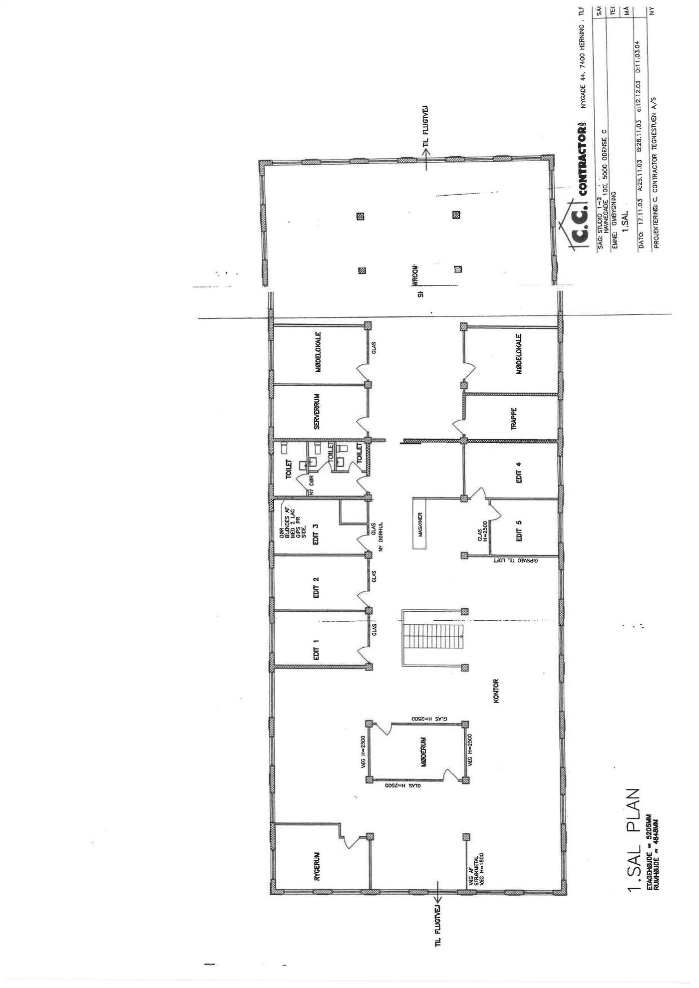
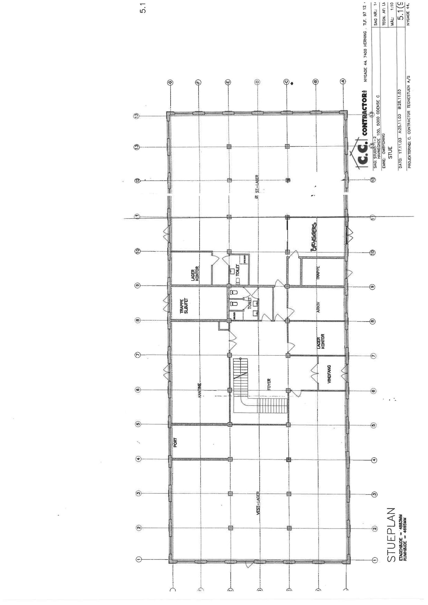
Den samlede ejendom består af 3 fulde etager.

Stueplan er indrettet med receptionsområde og trappe til 1. sal, åbent og lyst storrumskontor, kantinefaciliteter, toiletkerne, mødelokale samt stort showroom og/eller konferencelokale.

1. sal er ligeledes indrettet med stort præsentabelt og åbent kontorlandskab, separate kontorlokaler, mødelokale samt yderligere større åbent kontorlandskab.

2. sal består af fordelingsgang, stort mødelokale, mindre køkken samt flere regulære og pæne mødelokaler.

Udenomsarealerne er asfalterede og udlagt til parkeringsfaciliteter.

Læs mere

Denne ejendom er solgt

Vil du vide mere?

Niels Jørgensen

nij@nordicals.dk

+4551252825

Kongensgade 27, 1. sal, 5000 Odense C

+4566138060

5000@nordicals.dk

Besøg vores mæglerside

Lignende ejendomme

Til top