Klosterbakken 12, 3. tv.
5000 Odense C

Sagsnr. 29750-1

Ejendomstype

Etageareal

Energiklasse

483 m²

C

Årlig leje

Leje pr. m²

Depositum

Årlig driftsudgift

Årlig driftsudgift pr. m²

531.410 kr.

1.100 kr.

265.705 kr.

56.746 kr.

117 kr.

Flotte nyistandsatte lokaler - elevatorbetjent

Indbydende kontorlejemål med moderne faciliteter midt i byen.

Lejemålet er beliggende på øverste etage i markant rødstensejendom lige ved Eventyrhaven og Odense Å. Lejemålet ligger nær gågademiljø, 300 m til letbanestation og i gåafstand til Odense Banegård.

Ejendommen er indrettet som fællesdomicil og huser i dag, Vita Ingeniører, Nordicals Erhvervsmæglere og Mazanti-Andersen Advokater. Domicilet råder over egen stor parkeringsplads og flot kantine som drives i forening med ejendommens øvrige lejere.

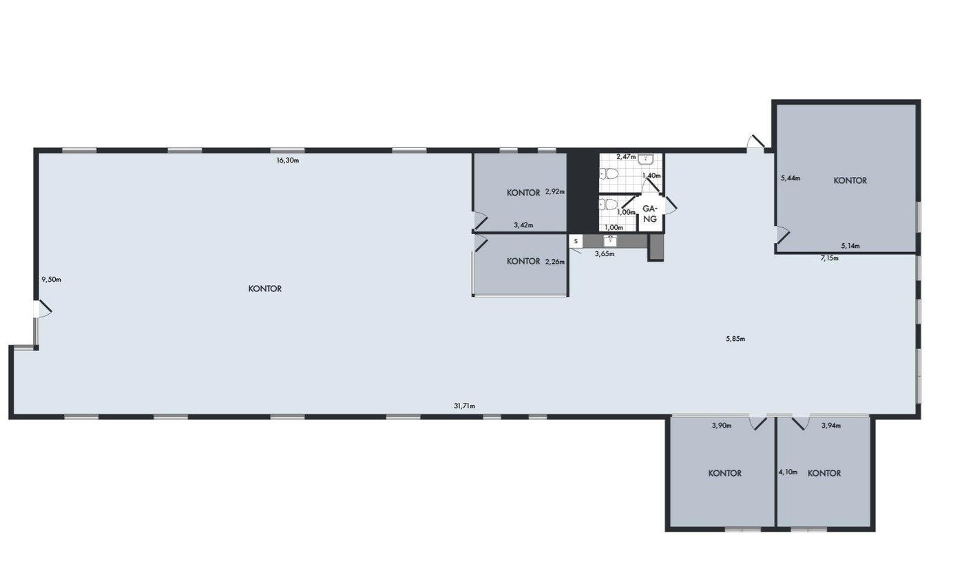
Lejemålet er indrettet moderne, med kontorvægge af glas, blotlagte bjælker og grundbelysning. Gangarealer er belagt med tæppefliser, hvor arbejdspladserne er med massive trægulve. Lejemålet består af storrumskontor, 4 kontorer, thekøkken og personaletoiletter.

I ejendommens stueplan er der mulighed for at benytte fælles mødefaciliteter med AV-udstyr, bad og omklædning samt den store kantine.

Der er mulighed for leje af parkeringspladser til kr. 1.200 pr. måned pr. plads.

Lejer har pligt til at være medlem af lejerforeningen som i fællesskab står for kantinedrift, ligesom man som lejer har pligt til at deltage i kantineordningen. Lejer skal påregne en investering i niveau kr. 32.000 for "medlemskab" af lejerforeningen, idet lejerforeningen selv har indkøbt inventar m.m. Nærmere oplysninger forelægges.

Læs mere

Vil du vide mere?

Peter Aagaard Nielsen

pan@nordicals.dk

+45 2347 4476

Kongensgade 27, 1. sal, 5000 Odense C

+4566138060

5000@nordicals.dk

Besøg vores mæglerside

Lignende ejendomme

Til top