Kongensgade 15, st.
5000 Odense C

Sagsnr. 29168

Ejendomstype

Etageareal

Grund

Energiklasse

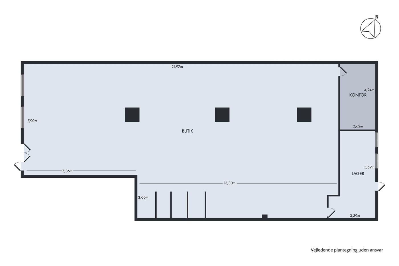
350 m²

306 m²

F

Årlig leje

Leje pr. m²

Depositum

Årlig driftsudgift

Årlig driftsudgift pr. m²

800.000 kr.

2.286 kr.

400.000 kr.

28.800 kr.

82 kr.

Butikslejemål

Butikslokale med AAA beliggenhed i den mest trafikerede del af Kongensgade udbydes til leje.

Nærmeste naboer er Matas og Tryde Andrés.

Lejemålet har tidligere været anvendt til herretøjsbutik, og er indrettet med 275 m² butikslokale, personalefaciliteter samt lager. Lejemålet er smagfuldt indrettet med trægulve, sort loft med store træflader samt AC-anlæg.

Butikken har ca. 7 m butiksfacade. Lejemålet vil være anvendeligt til alle former for retail.

Kontakt Nordicals Odense for at høre mere om mulighederne for at leje en af byens bedste butikker.

Læs mere

Vil du vide mere?

Christopher Bøje

cbo@nordicals.dk

+4551271918

Kongensgade 27, 1. sal, 5000 Odense C

+4566138060

5000@nordicals.dk

Besøg vores mæglerside

Lignende ejendomme

Til top