Mageløs 2
5000 Odense C

Sagsnr. 28088-1

Ejendomstype

Etageareal

Grund

Energiklasse

253 m²

1.526 m²

F

Årlig leje

Leje pr. m²

Depositum

Årlig driftsudgift

Årlig driftsudgift pr. m²

379.500 kr.

1.500 kr.

189.750 kr.

33.395 kr.

132 kr.

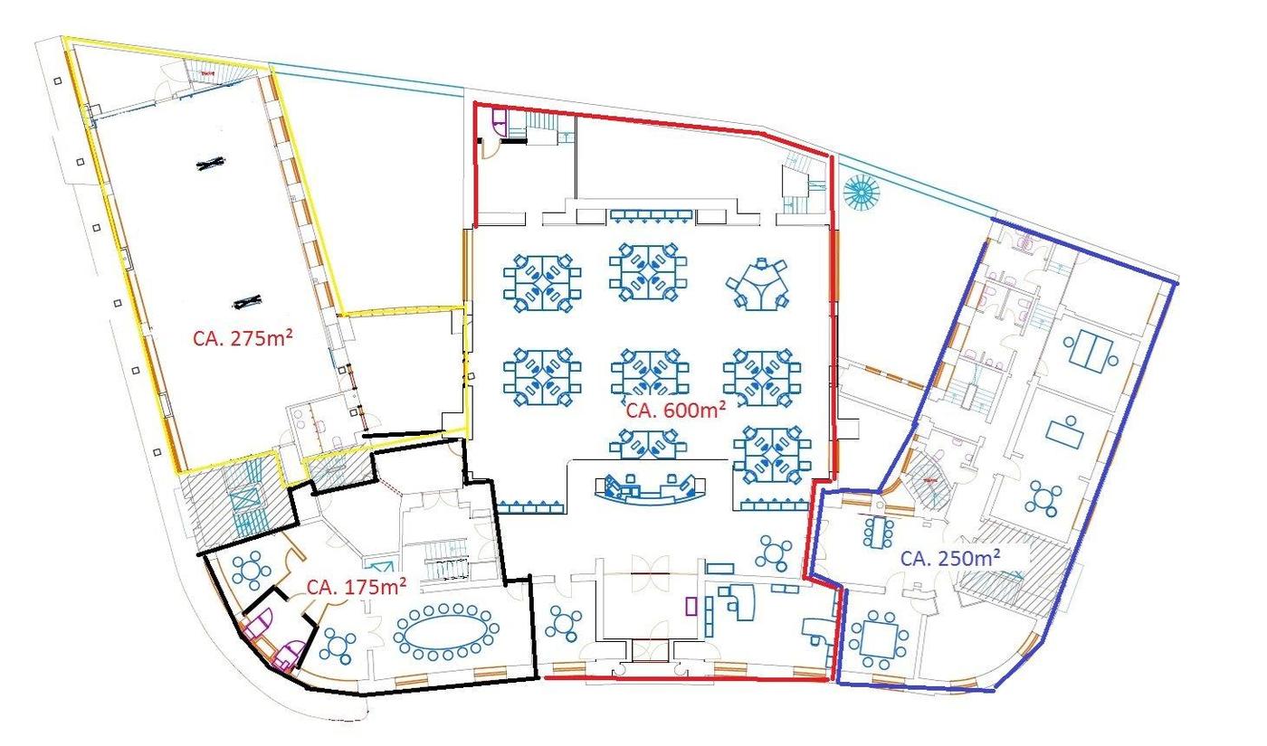
Kontorlejemål

På unik beliggenhed på Mageløs 2 udbydes denne markante ejendom nu til leje.

Ejendommen har siden 1936 fungeret som bankforretning, senest for Nykredit, er yderst velkendt i gadebilledet og vil være et tilløbsstykke for din virksomhed.

Ideen er at skabe en nutidig bygning, indrettet med mindre forskellige forretninger, indrettet specielt til lejers behov. Der er mulighed for at opdele ejendommen i mindre enheder i de historiske rammer.

Med andre ord sætter kun fantasien grænser for, hvordan denne historiske ejendom kan genanvendes. Ombygningen vil naturligvis blive foretaget med respekt og hensyn til de historiske rammer.

Denne del af ejendommen er oplagt til kontorbrug. Der er adgang til lejemålet fra Holsedore.

Der er mulighed for at tilleje arkiv i ejendommens kælder.

Læs mere

Vil du vide mere?

Christopher Bøje

cbo@nordicals.dk

+4551271918

Kongensgade 27, 1. sal, 5000 Odense C

+4566138060

5000@nordicals.dk

Besøg vores mæglerside

Lignende ejendomme

Til top