Nørregade 65, st.
5000 Odense C

Sagsnr. 30753

Ejendomstype

Etageareal

Energiklasse

175 m²

F

Årlig leje

Leje pr. m²

Depositum

180.000 kr.

1.029 kr.

45.000 kr.

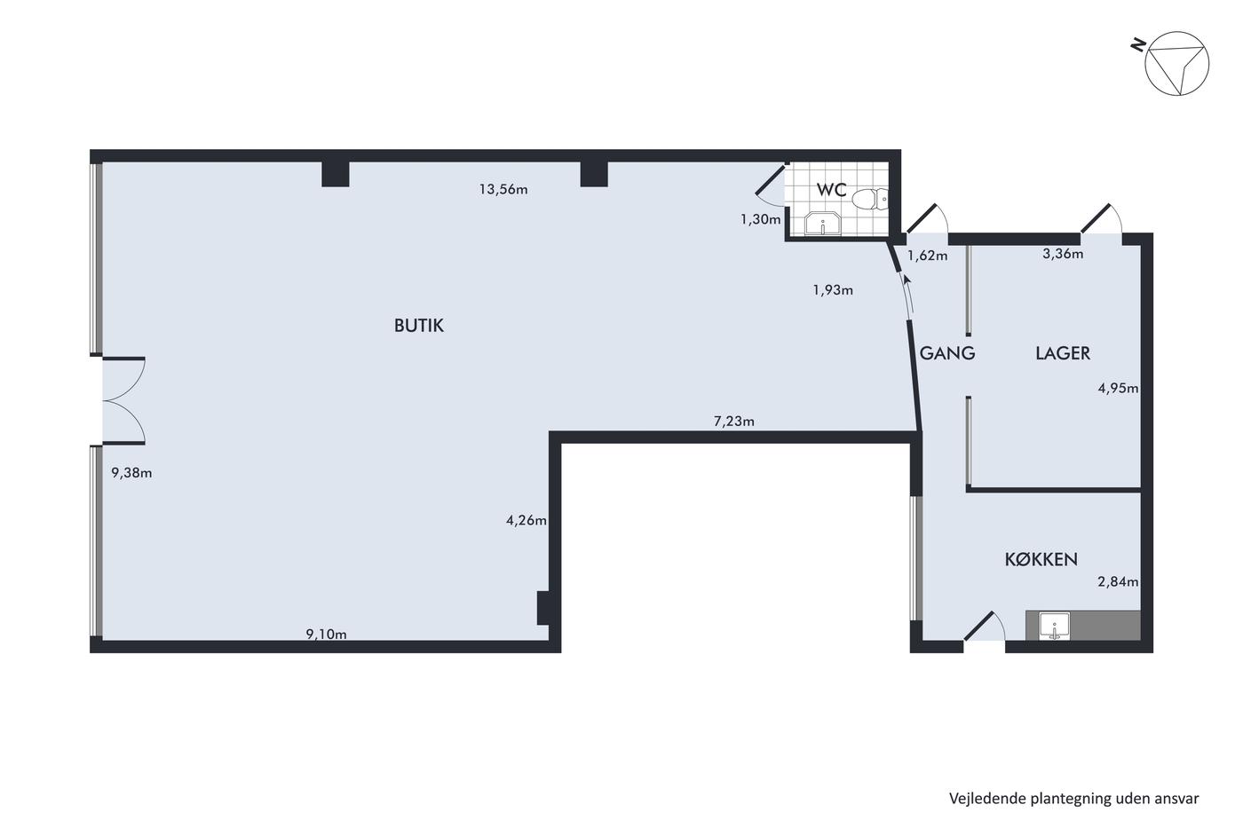
Velbeliggende og regulært butikslejemål

Nu udbydes regulært butikslokale med stor facade ud til den trafikerede Nørregade.


Lejemålet er beliggende med kort afstand til Odense Banegård og gågadenettet.


Lejemålet består af butikslokale med prøverum samt kundetoilet. Fra butikslokalet er der adgang til lagerlokale, hvor der endvidere er personalefaciliteter.

Læs mere

Vil du vide mere?

Christopher Bøje

cbo@nordicals.dk

+4551271918

Kongensgade 27, 1. sal, 5000 Odense C

+4566138060

5000@nordicals.dk

Besøg vores mæglerside

Lignende ejendomme

Til top