Nørregade 71, 3. tv.
5000 Odense C

Sagsnr. 31083

Ejendomstype

Etageareal

Energiklasse

255 m²

B

Årlig leje

Leje pr. m²

Depositum

Årlig driftsudgift

Årlig driftsudgift pr. m²

191.250 kr.

750 kr.

47.813 kr.

43.477 kr.

170 kr.

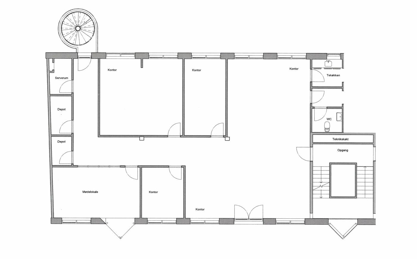
Centralt beliggende kontorlejemål i præsentabel ejendom

Lokalerne som udgør 255 m² er beliggende centralt i Odense C, i en moderne ejendom med elevator, dørtelefon og direkte adgang til ejendommens parkeringskælder.

Ejendommen er opført i 1991 og anvendes alene til liberale erhverv. Ejendommen er yderst velbeliggende og fremstår i god stand.


Lejemålet er oplagt til en bred vifte af liberale erhverv - herunder:


- Administration og kontor
- Rådgivnings- og konsulentvirksomhed
- Tandlæge, speciallæge eller praktiserende læge
- Revisor- eller advokatkontor
- Klinik for skønhed, velvære eller terapi


Der er mulighed for at leje parkeringspladser med direkte adgang til ejendommen.

Læs mere

Vil du vide mere?

Peter Aagaard Nielsen

pan@nordicals.dk

+45 2347 4476

Kongensgade 27, 1. sal, 5000 Odense C

+4566138060

5000@nordicals.dk

Besøg vores mæglerside

Lignende ejendomme

Til top