Odense Banegård Østre Stationsvej 27, 2.
5000 Odense C

Sagsnr. 28205

Ejendomstype

Etageareal

Grund

Energiklasse

471 m²

18.819 m²

B

Årlig leje

Leje pr. m²

Depositum

Årlig driftsudgift

Årlig driftsudgift pr. m²

766.000 kr.

1.626 kr.

383.000 kr.

215.247 kr.

457 kr.

Butikslejemål

Bliv en del af Odenses travleste trafikknudepunkt med mere end 25.000 besøgende hver dag.

Lejemålet er beliggende på 2. sal med eksponering direkte ud til rulletrapperne med garanti for stor kundestrøm, da trafikken fra gadeplan til togperron hovedsageligt går via denne.

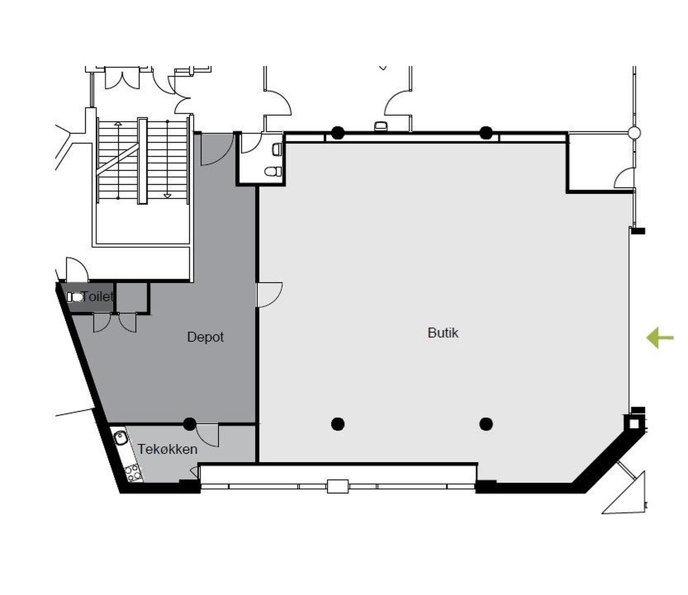
Lejemålet rummer 304 m² og fordeler sig på et butikslokale, et bagvedliggende depot og personalefaciliteter i form af køkken og toilet. Til lejemålet hører også to separate depoter på hhv. 92 m² og 75 m². Disse er beliggende i ejendommens kælder samt på 1. sal.

Selve lejemålet er udstyret med en stor bred vinduesfacade fra gulv til loft og er nabo ti Nordisk Film Biografer. Indretningen er særdeles regulær med optimale muligheder for ny lejer, hvad enten det fortsat er til detailanvendelse eller alternativt café/restauration.

Placeringen på banegården gør Odense Banegård Center til et oplagt center for de mindre butikker, som kan servicere de ventende passagerer, som skal videre, men også de kunder, som færdes i centrum af Odense, som gerne vil have en eksklusiv og personlig oplevelse.

Odense Banegård Center ligger på Østre Stationsvej i centrum af byen og rummer et 36.000 m² stort center med mange forskelligartede lejere.

Odense Banegård Center har i omegnen af 25.000 besøgende hver eneste dag og gør centret til et yderst attraktivt trafikknudepunkt for erhvervsdrivende.

Til Odense Banegård Center er der tilknyttet et parkeringshus, som gør det nemt for de besøgende at parkere bilen, selvom centret er placeret midt i byen.

Læs mere

Vil du vide mere?

Christopher Bøje

cbo@nordicals.dk

+4551271918

Kongensgade 27, 1. sal, 5000 Odense C

+4566138060

5000@nordicals.dk

Besøg vores mæglerside

Lignende ejendomme

Til top