Overgade 5, 1.
5000 Odense C

Sagsnr. 30319

Ejendomstype

Etageareal

Energiklasse

734 m²

A2015

Årlig leje

Leje pr. m²

Årlig driftsudgift

Årlig driftsudgift pr. m²

880.800 kr.

1.200 kr.

124.780 kr.

170 kr.

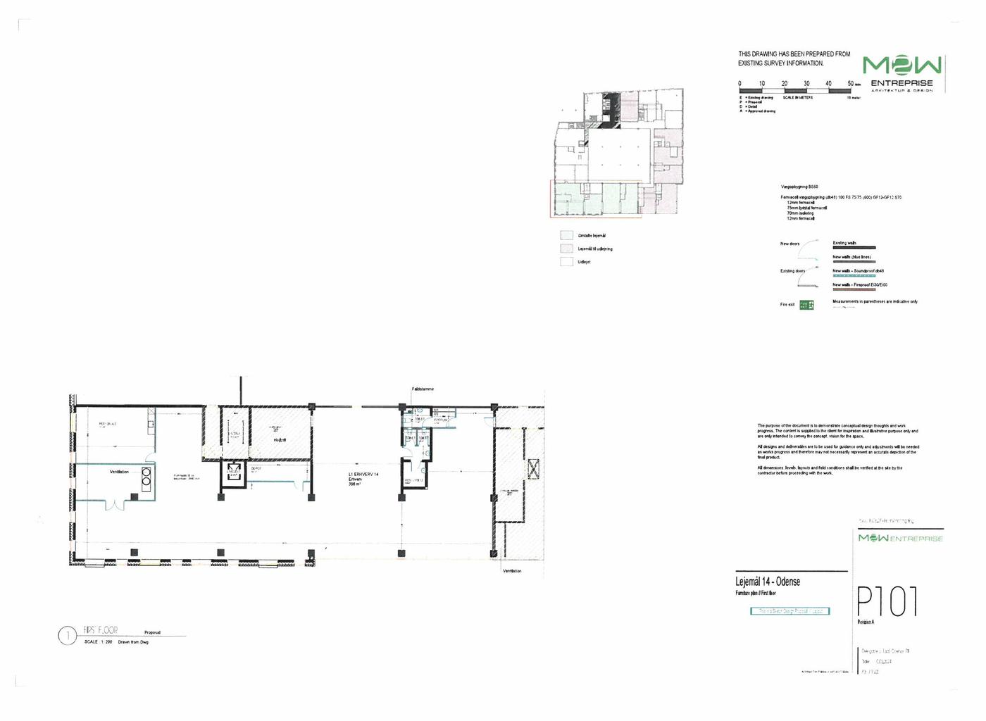
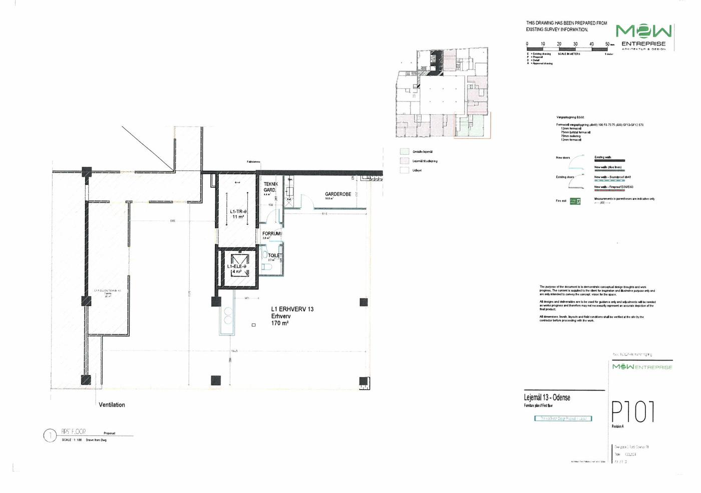
Større kontor-/kliniklejemål med mulighed for opdeling

På yderst central placering i Odense C udbydes hermed større kontor-/kliniklejemål med mulighed for indflydelse på indretningen.

Lejemålet består af 734 m² med mulighed for opdeling eller leje af yderligere areal.

I ejendommen er flere lokaler allerede udlejet til sundhedsrelaterede erhverv, og giver derfor ideelle rammer til et kommende behandlerhus på central placering i Odenses nye bydel.

Lejemålene afleveres som whitebox og klar til lejers særindretning.

Adgang til lejemålet sker via fælles indgangsparti til ejendommens 1. sal, hvor der også er adgang med elevator.

Byfornyelsen med omdannelsen af området omkring Thomas B. Thriges Gade har medført en enormt vellykket transformation, hvor sammensmeltning af byen er nøgleordet. For beliggenheden af netop dette lejemål er fordelen, at området nyder godt af at være beliggende tæt på Odense Letbane og det nye H.C. Andersens Hus - der tiltrækker rigtig mange besøgende og turister til området.

Under ejendommen er stor offentlig parkeringskælder, som gør det nemt for personale og kunder at parkere tæt på lejemålet.

Læs mere

Vil du vide mere?

Simon Vinther Blach

svb@nordicals.dk

+4523111988

Kongensgade 27, 1. sal, 5000 Odense C

+4566138060

5000@nordicals.dk

Besøg vores mæglerside

Lignende ejendomme

Til top