Rødegårdsvej 95
5000 Odense C

Sagsnr. 30686

Ejendomstype

Etageareal

Grund

Energiklasse

340 m²

2.365 m²

E

Investeringsejendom med projekt mulighed på sigt

Velholdt og attraktivt beliggende ejendom, som i dag i sin helhed er indrettet til tandlægeklinik.

Ejendommen har built-up tag, med nyt tagpap, nyere vinduer og pænt malede mursten.

Der er meget fine parkeringspladser på granitskærver på grunden og friarealer udlagt med græs. Mulighed for bygningsmæssige udvidelser.

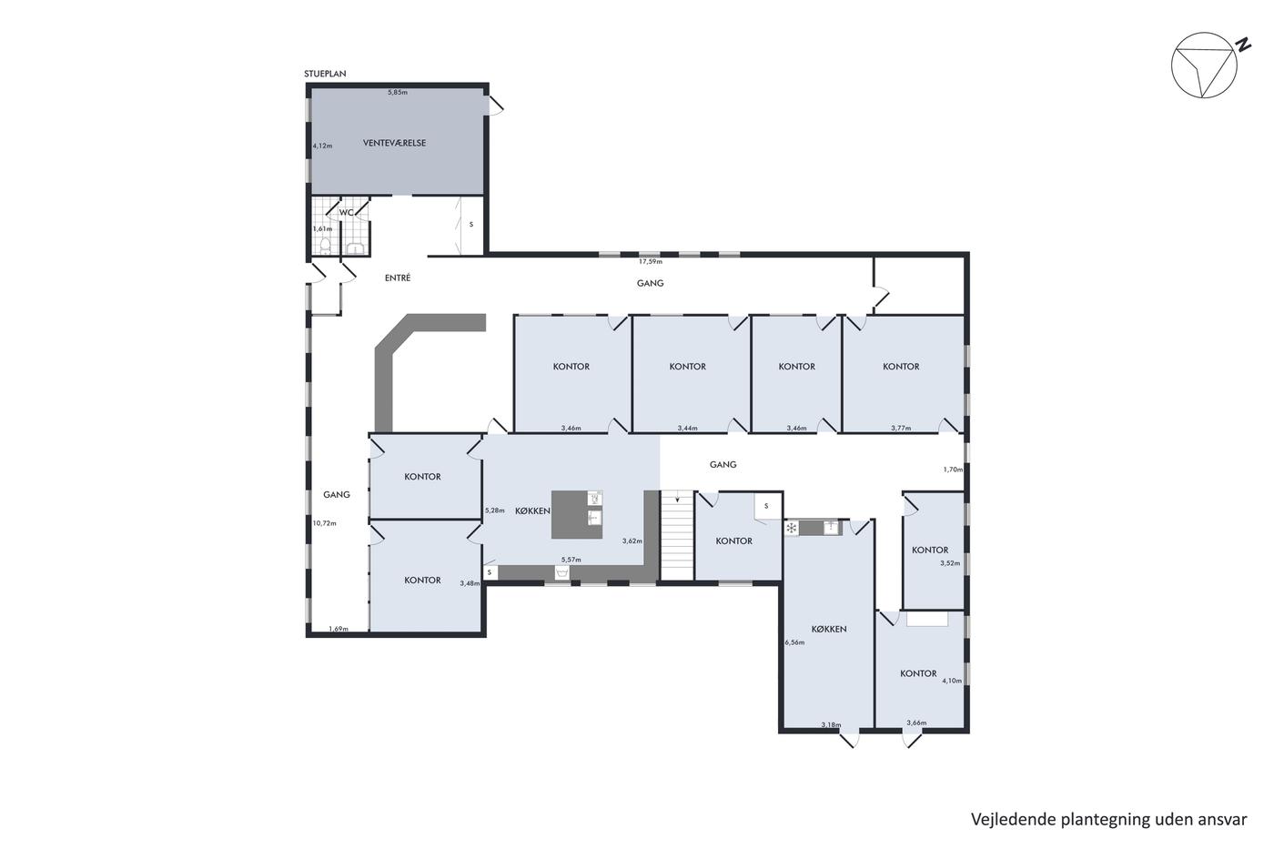
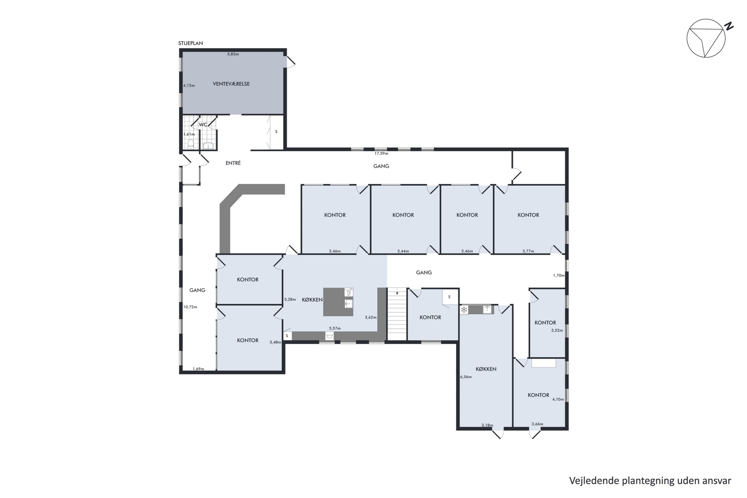
Ejendommen er i dag indrettet til tandlægeklinik med modtagelsesområde, venterum, 8 klinikrum, sterilisationsrum, frokoststue og toiletter i stueplan. Kælderen er indrettet med teknik, arkiv, omklædning/bad, toilet. Der er ikke fuld kælder under hele ejendommen, men tillige krybekælder, hvilket netop er praktisk til tandlæger/læger og lign., som har behov for at trække vand, afløb med mere rundt i lokalerne.

Det bemærkes, at der kun er 6 måneders opsigelsesvarsel på lejekontrakten. Hertil bemærkes, at det er temmelig dyrt for en sådan lejer at flytte pga. krav til indretning herunder vand/afløb m.m. Såfremt dette måtte ske på et tidspunkt, skal det bemærkes, at ejendommen jf. kommuneplanen ligger i et område. som er udlagt til boligbebyggelse. Området er meget attraktivt til bolig formål.

Bebyggelsesprocenten er ikke fastlagt p.t. men på ejendommene på den modsatte side af gaden er der bebygget ca. 150% og naboen er bebygget ca. 61%. Et kvalificeret bud kunne være 100%, hvorved der vil kunne opføres ca. 2.365 m² boligudlejningsejendom på grunden, hvilket vil have en betragtelig værdi.

Ejendommen er beliggende centralt i eftertragtet boligområde i Odense, med optimal infrastrukturel tilgængelighed.

Der er fra ejendommen kort afstand til Odense Centrum samt Odense Banegård, bus- og letbaneforbindelser, hvilket sikrer gode offentlige transportmuligheder. Ringvej 2 (Østre Ringvej) ligger få hundrede meter væk, og motorvejstilkørsel til E20 kan nås på under 10 minutter.

Den attraktive placering betyder umiddelbar nærhed til rigtig gode indkøbsmuligheder herunder Rosengårdcentret, Bilkabyen og Ikea.

Fra ejendommen er der let adgang til et bredt udvalg af alt fra skoler, institutioner og uddannelsesinstitutioner.

Beliggenheden er ideel for virksomheder, der værdsætter tilgængelighed og et dynamisk nærmiljø med rigtig mange beboere.

- Odense Banegård Center | 2 km
- Odense Letbane | 0,5 km
- Bybus | 0,4 km
- Indkøbsmuligheder | 0,2 km
- Rosengårdscenteret | 1,5 km
- Ringvej 02 | 0,8 km
- Motorvej E20 | 5,2 km

Læs mere

Denne ejendom er solgt

Vil du vide mere?

Niels Jørgensen

nij@nordicals.dk

+4551252825

Kongensgade 27, 1. sal, 5000 Odense C

+4566138060

5000@nordicals.dk

Besøg vores mæglerside

Lignende ejendomme

Til top