Rytterkasernen 21
5000 Odense C

Sagsnr. 29695

Ejendomstype

Etageareal

Energiklasse

850 m²

B

Flot og præsentabel kontorejendom

Ejendommen på Rytterkasernen er en flot og præsentabel kontorejendom, som er beliggende centralt i Odense med kun ca. 700 meter til Odense Banegård eller Odense centrum samt ca. 500 meter til letbanestop.

Ejendommen er fra 1877, men blev kraftigt renoveret og moderniseret i 1996, hvor blandt andet udskiftning af vinduer har bevirket at ejendommen har opnået energimærke B.

Ejendommen har senest været udlejet til PWC.

Den er indrettet med et præsentabelt indgangsparti midt i bygningen og trappeopgange i hver sin ende af ejendommen.

Ejendommens 1. sal er udlejet til Hejmdal Privathospital.

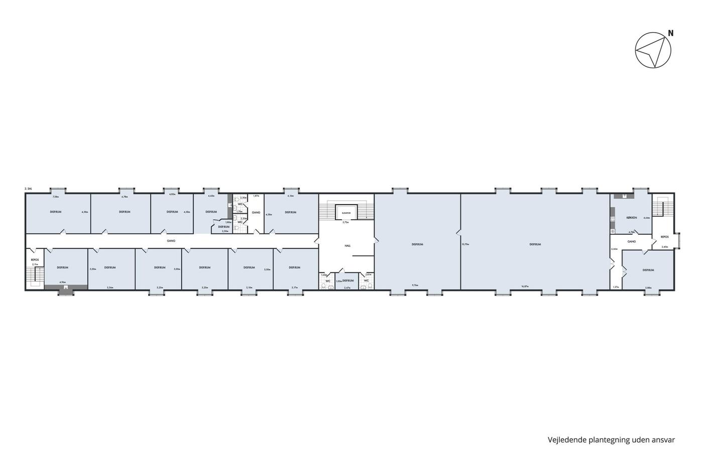
I ejendommens stue og 2. sal er der indrettet kontorer og mødelokaler i varierende størrelser, som er elevatorbetjent. Arealet i stueplan udgør 850 kvm og 2. sal 814 kvm. Der er på hver etage tekøkken samt toiletter, mens der på 2. sal er stor konferencesal eller storrumskontor til ca. 140 personer.

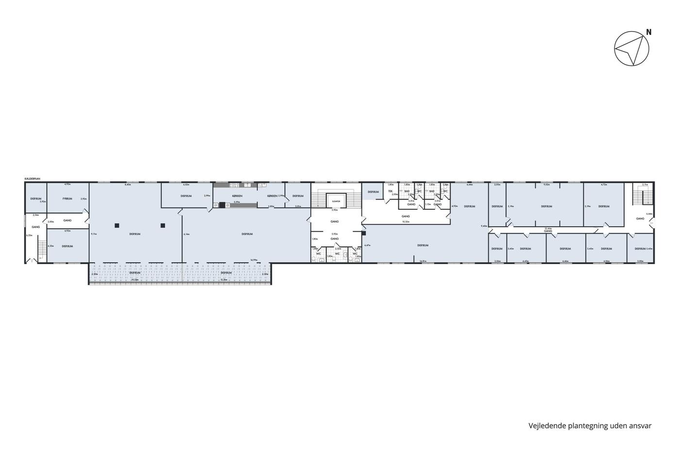
I kælderen, som udgør 870 kvm, er der indrettet et nydeligt kantineområde med industrikøkken, herudover er der et fitnesslokale samt naturligvis toiletter og badefaciliteter. Dernæst lidt arkiv og depotrum.

Kælderen med kantine, fitnesslokale og arkiv kan lejes delvist efter nærmere aftale.

Til ejendommen er der endvidere tilknyttet 44 p-pladser.

Ejendommen har nogle flotte proportioner og er yderst velegnet til kontordomicil for et eller flere firmaer.

Kontakt os gerne for en fremvisning af denne spændende ejendom.

Ejendommen har nogle flotte proportioner og er yderst velegnet til kontordomicil for et eller flere firmaer.

Kontakt os gerne for en fremvisning af denne spændende ejendom.

Læs mere

Denne ejendom er udlejet

Vil du vide mere?

Niels Jørgensen

nij@nordicals.dk

+4551252825

Kongensgade 27, 1. sal, 5000 Odense C

+4566138060

5000@nordicals.dk

Besøg vores mæglerside

Lignende ejendomme

Til top