Skibhusvej 83
5000 Odense C

Sagsnr. 27778

Ejendomstype

Etageareal

Grund

Energiklasse

829 m²

753 m²

D

Attraktiv investeringsejendom

Med absolut god beliggenhed på hjørnet af Skibhusvej / Sophie Breums Vej udbydes investeringsejendom med 3 gode lejere.

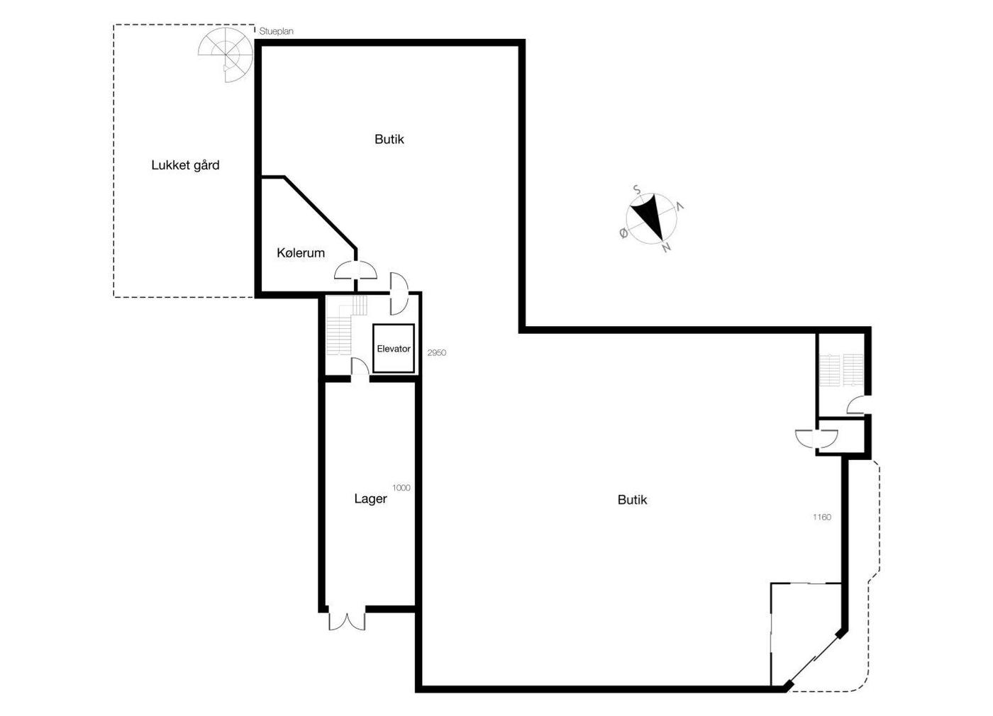
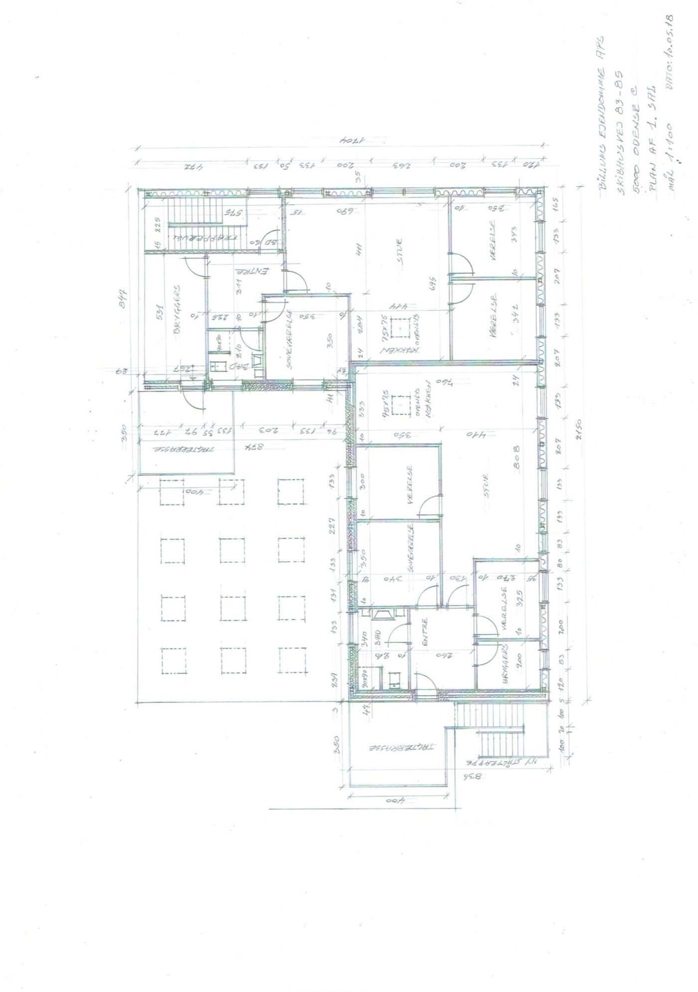
Ejendommen er udlejet til Rema1000 (tidligere Løvbjerg fra år 1991) i stueplan med 565 m² og kælder 185 m², som er indrettet til kølerum, kontor, toilet og lager. Udover dette råder Rema1000 over lukket varegård. Dernæst er der boliglejere i nye lejligheder på 1 sal. 1. salen brændte for et par år siden og er derfor helt nyopført og nyindrettet til 2 lækre boliger. Boligerne er begge 4 værelses med åbent køkken/alrum, trægulve med mere. De har ligeledes egne indgange samt store tagterrasser. Boligen mod Skibhusvej disponerer over nogle af lokalerne i kælderen. Ejendommen er i år 2018 opmålt af Geopartner Landinspektører A/S i forbindelse opdeling i 2 ejerlejligheder med selvstændig afregning af forbrug.

Meget nem ejendom at vedligeholde pga. fibercementplader på væggene og ingen grønne arealer at vedligeholde. Varegården disponeres af Rema1000.

Der er stor offentlig p-plads på modsatte side af Sophie Brems Vej, som kunderne benytter.

Ejendommen fremstår i god stand - der er blandt andet renoveret facade med vedligeholdelsesfrie paneler, nye vinduer med mere. Såvel ejendommen som lejemålene fremstår tidssvarende og i god stand.

Læs mere

Denne ejendom er solgt

Vil du vide mere?

Niels Jørgensen

nij@nordicals.dk

+4551252825

Kongensgade 27, 1. sal, 5000 Odense C

+4566138060

5000@nordicals.dk

Besøg vores mæglerside

Lignende ejendomme

Til top