Store Gråbrødrestræde 6
5000 Odense C

Sagsnr. 28160

Ejendomstype

Etageareal

Grund

Energiklasse

269 m²

3.827 m²

C

Årlig leje

Leje pr. m²

Depositum

Årlig driftsudgift

Årlig driftsudgift pr. m²

322.900 kr.

1.200 kr.

161.450 kr.

28.514 kr.

106 kr.

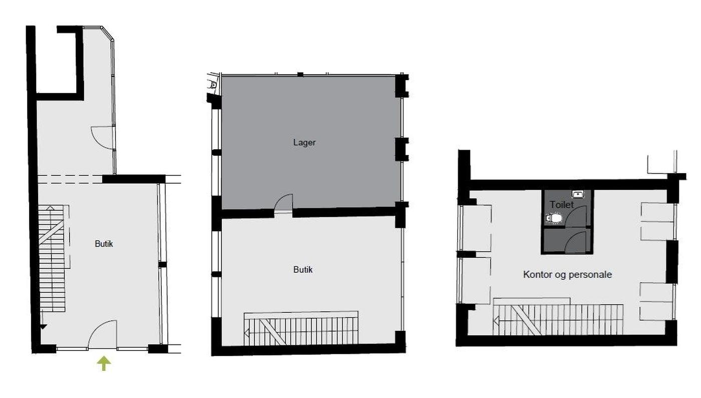
Butikslejemål

Velbeliggende lejemål med attraktiv indretning i 3 etager.

Som nabo til Odenses bedste gågadestrækning er Store Gråbrødrestræde en yderst velbeliggende og velbesøgt gade.

Butikken er indrettet med flot stort facadeparti, som strækker sig hele vejen rundt om den tilstødende passage ind mod Vintapperstræde, som giver et godt lysindfald og gode eksponeringsmuligheder. Selve salgslokalet i stueetagen er indrettet med højt til loftet og trægulvbelægning samt en trappeopgang til yderligere salgsareal på 1. sal. I tilknytning til 1. salen er der direkte adgang til pænt og regulært lager, ligesom der via åben trappe er adgang til personaleafdeling på 2. sal med kontor, køkken og toiletfaciliteter.

Nærmeste naboer er særdeles attraktive lejere som Design Cykler og H&M. Nær lejemålet findes Odenses absolut mest attraktive restaurationsmiljø med velkendte lejere som Gertrud's, Amy's Winehouse samt Café Kræz.

Kunder og medarbejdere kan parkere bilen i naboejendommens parkeringshus.

Læs mere

Vil du vide mere?

Christopher Bøje

cbo@nordicals.dk

+4551271918

Kongensgade 27, 1. sal, 5000 Odense C

+4566138060

5000@nordicals.dk

Besøg vores mæglerside

Lignende ejendomme

Til top