Store Gråbrødrestræde 7B, st.
5000 Odense C

Sagsnr. 31154

Ejendomstype

Etageareal

Energiklasse

150 m²

F

Årlig leje

Leje pr. m²

Depositum

Årlig driftsudgift

Årlig driftsudgift pr. m²

247.386 kr.

1.649 kr.

61.847 kr.

23.971 kr.

160 kr.

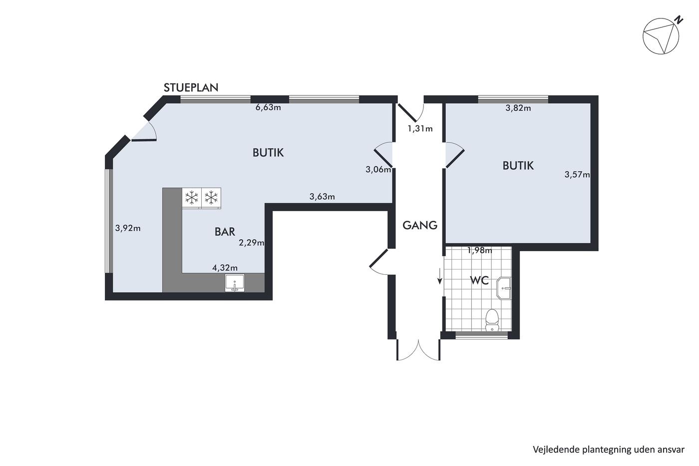
Afståelse - Smagfuldt indrettet bar

AFSTÅELSESSUM KR. 355.000
På bedste beliggenhed i Odenses gå-i-byen miljø har du nu muligheden for at købe din egen bar med tilhørende lager.

Baren der i dag drives som vinbar, er smagfuldt indrettet med mindre bar område, serveringsområde med plads til 20-30 siddende gæster, tilhørende selskabslokale som kan indrettes til private arrangementer, kundetoilet samt kælder med rigtige gode opbevaringsforhold.

Inventaret er i høj kvalitet og medfølger som en del af afståelsen.

Lejemålet har gode muligheder for udeservering.

Kontakt Nordicals Odense for inventarliste samt yderligere oplysninger.

Læs mere

Vil du vide mere?

Christopher Bøje

cbo@nordicals.dk

+4551271918

Kongensgade 27, 1. sal, 5000 Odense C

+4566138060

5000@nordicals.dk

Besøg vores mæglerside

Lignende ejendomme

Til top