Tolderlundsvej 115
5000 Odense C

Sagsnr. 30854

Ejendomstype

Etageareal

Grund

Energiklasse

10.510 m²

25.980 m²

D

Lagerejendom på attraktiv beliggenhed ved Odense Havn

Hermed udbydes 10.510 m² lagerejendom med tilhørende administration Til Salg på Odense Havn. Ejendommen er beliggende på en 25.980 m² stor grund, som er lejet af Odense Havn frem til 2045.


- Grundleje kr. 1.010.500,- + moms


Ud af ejendommens 10.510 m² er størstedelen udlejet til JMS Danmark ApS. Deres lejemål udgør i alt 6.014 m² og består af uopvarmet/højloftet lager med tilhørende administration og mandskabsfaciliteter. Jf. det angivne areal i lejekontrakten og det markerede areal i bilag 1 til lejekontrakten, er der en divergens på ca. 1.000 m² som lejer råder over, og som ikke er lejebærende.

- - Lejeindtægt kr. 1.653.850,- + moms

- - Uopsigeligt fra lejers side frem til 01.04.2029

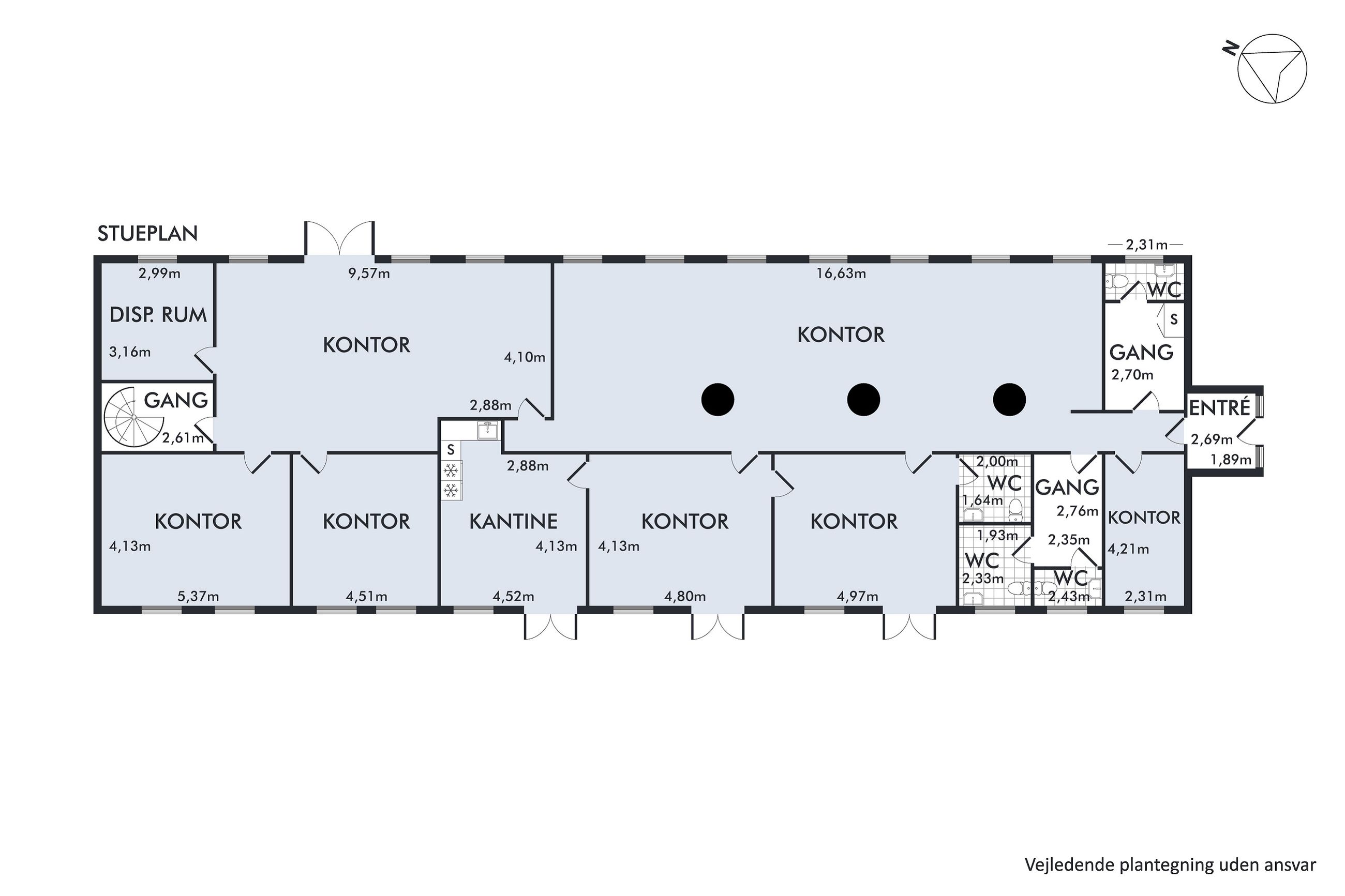
Ejendommens resterende areal vil være ledigt til købers disposition og udgør i alt 3.467 m² fordelt på 1.039 m² isoleret lager, 2.078 m² uisoleret lager samt 350 m² administrationsbygning.

Grunden er fuldt indhegnet og anvendt til kørevej samt parkering og udendørs oplag.

Ejendommen er beliggende i industriområdet ved Odense Havn, som i dag indeholder en bred variation af virksomheder indenfor produktion, lager og distribution, maritime virksomheder m.fl.

Med sin centrale placering tæt på bymidten og korte afstand til Ring 2 og Odins Bro sikrer man en fornuftig logistik til og fra ejendommen.

Læs mere

Denne ejendom er solgt

Vil du vide mere?

Simon Vinther Blach

svb@nordicals.dk

+4523111988

Kongensgade 27, 1. sal, 5000 Odense C

+4566138060

5000@nordicals.dk

Besøg vores mæglerside

Lignende ejendomme

Til top