Tolderlundsvej 115
5000 Odense C

Sagsnr. 30854-3

Ejendomstype

Etageareal

Energiklasse

3.467 m²

E

Årlig leje

Leje pr. m²

Depositum

947.305 kr.

273 kr.

473.653 kr.

Lager/værksted med tilhørende administration på Odense Havn

Centralt på Odense Havn udbydes her større erhvervslejemål på samlet 3.467 m², som fordeler sig med 350 m² administration, 1.039 m² isoleret lager samt 2.078 m² uisoleret lager.

Administrationsdelen er en selvstændig bygning på ejendommen som er placeret med facade ud mod Tolderlundsvej, som dermed giver kommende lejer god synlighed samt skiltningsmuligheder.

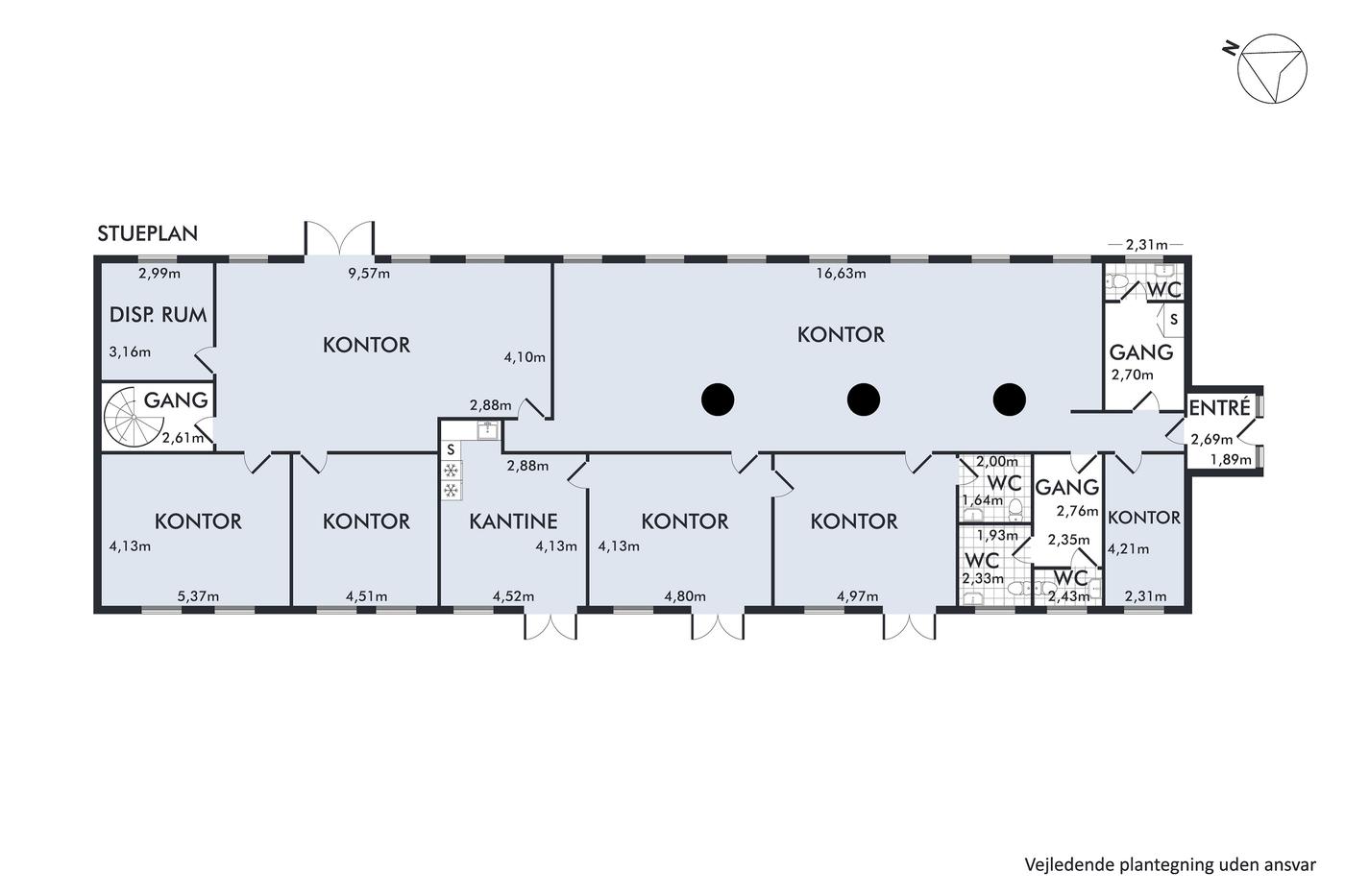
Indretningen i administrationen består af to storrumskontorer, flere kontorer/mødelokaler i varierende størrelser, frokoststue, toiletfaciliteter samt enkelte depotrum.

Lagerdelen udgør samlet 3.117 m² som er fordelt med en isoleret hal på 1.039 m² samt en uisoleret hal på 2.078 m², begge fremstår med god loftshøjde. De to lagerafsnit ligger i forlængelse af hinanden og er begge udstyret med store porte i niveau for optimal varelevering og gennemkørsel af lageret.

Lejemålet er en del af en større ejendommen beliggende på en 25.890 m² stor indhegnet grund, hvor størstedelen er befæstet, som sikrer god plads til manøvrering samt kørsel rundt om ejendommen.

For yderligere information eller dialog om mulighederne for ejendommen, kontakt Nordicals Odense.

Læs mere

Vil du vide mere?

Simon Vinther Blach

svb@nordicals.dk

+4523111988

Kongensgade 27, 1. sal, 5000 Odense C

+4566138060

5000@nordicals.dk

Besøg vores mæglerside

Lignende ejendomme

Til top