Trælaststræde 1
5000 Odense C

Sagsnr. 30765

Ejendomstype

Etageareal

Energiklasse

69 m²

F

Årlig leje

Leje pr. m²

Depositum

Årlig driftsudgift

Årlig driftsudgift pr. m²

86.250 kr.

1.250 kr.

43.125 kr.

22.494 kr.

326 kr.

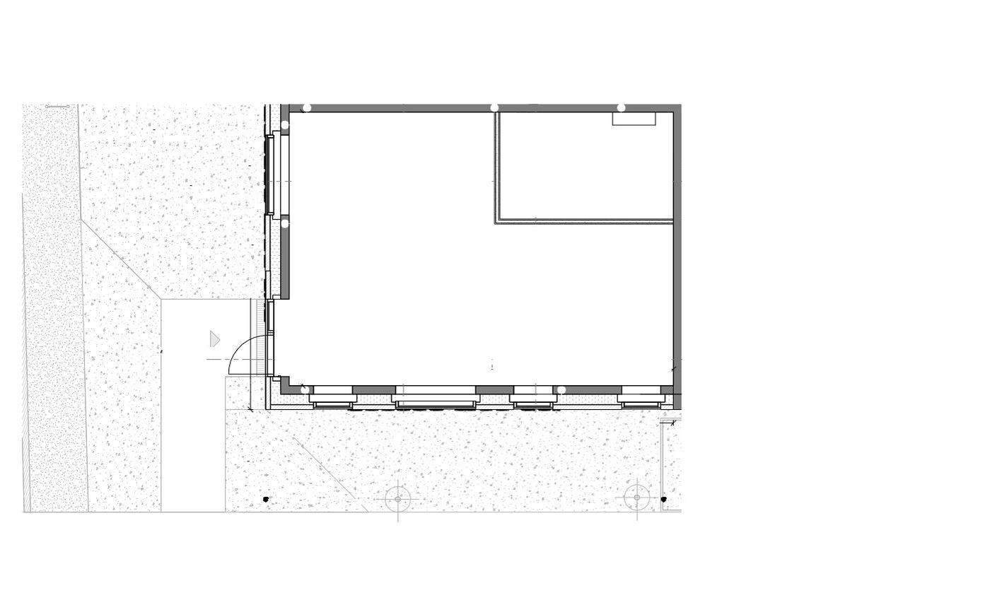
Erhvervslejemål på synlig placering

Erhvervslejemål på 69 m² med flere anvendelsesmuligheder med stor synlighed ud til Havnegade.


Lejemålet er særdeles velegnet til publikumsorienteret erhverv og erhverv, som kan se sig selv være en del af den nye grønne bydel, som skal være med til at forbinde havnen og midtbyen.


Af anvendelsesmuligheder for lejemålet kan bl.a. nævnes café, delikatesseforretning, butik eller f.eks. showroom eller kunstværksted.


Lejemålet afleveres som whitebox hvor udlejer i hovedtræk afleverer lejemålet med følgende indretning:


I salgsarealet udføres indvendige vægge i gasbeton eller gipsvægge som spartles og males. Gulvbelægning såsom klinker, vinyl el.lign. leveres og monteres inden for nærmere aftalt beløbsgrænse.


Specialbelægning kan udføres mod lejers egenbetaling.


I toiletrum og forgang leveres træbetonlofter og i toiletrum monteres hvide vægfliser bag vask og der leveres og monteres klinker på gulve inkl. sokkelklinke.


Specifik lejemålsindretning kan rekvireres hos Nordicals Odense.


Ønsker du yderligere informationer om hele projektet og mulighederne for erhvervslejemålene kontakt da Nordicals Odense eller besøg pakhuskajen.dk

Læs mere

Vil du vide mere?

Simon Vinther Blach

svb@nordicals.dk

+4523111988

Kongensgade 27, 1. sal, 5000 Odense C

+4566138060

5000@nordicals.dk

Besøg vores mæglerside

Lignende ejendomme

Til top