Vesterbro 108
5000 Odense C

Sagsnr. 28398

Ejendomstype

Etageareal

Grund

Energiklasse

405 m²

324 m²

D

Boligudlejningsejendom

Centralt beliggende boligudlejningsejendom med 5 lejligheder.

Ejendommen er beliggende på Vesterbro, og er opført i røde mursten. Tagbeklædningen på bygningen mod Vesterbro er Decra ståltag og baghusets tagbeklædning er bølgeeternit.

Den forreste bygning rummer 4 lejemål og baghuset indeholder én lejlighed i 3 plan med udgang til egen have.

I stueplan er der gennemgående passage til baggården.

Alle 4 lejligheder i forreste bygning er generelt i god stand, og alle har adgang til eget køkken og badeværelse. Badeværelserne er beliggende på repos på bagtrappen. Modernisering af køkken og badeværelser er foretaget i starten af 00'erne.

Stuelejlighed, der jf. BBR er på 72 m² indeholder vindfang, to sammenhængende stuer, soveværelse og pænt køkken. Derudover adgang til eget badeværelse med udgang fra køkken.

Lejlighederne på 1. og 2. sal er jf. BBR på 82 m² og har samme indretning som lejligheden i stueplan. Dog er den ene stue større, idet denne har arealet fra gennemgående passage fra stueplan med i arealet.

Lejligheden på 3. sal har et boligareal jf. BBR på 71 m² og indeholder stor stue, soveværelse, køkken og værelse/kammer. Adgang til eget badeværelse på samme måde som de øvrige lejemål.

Kælderen er indrettet med depotrum til hver lejlighed samt fælles vaskekælder/tørrerum.

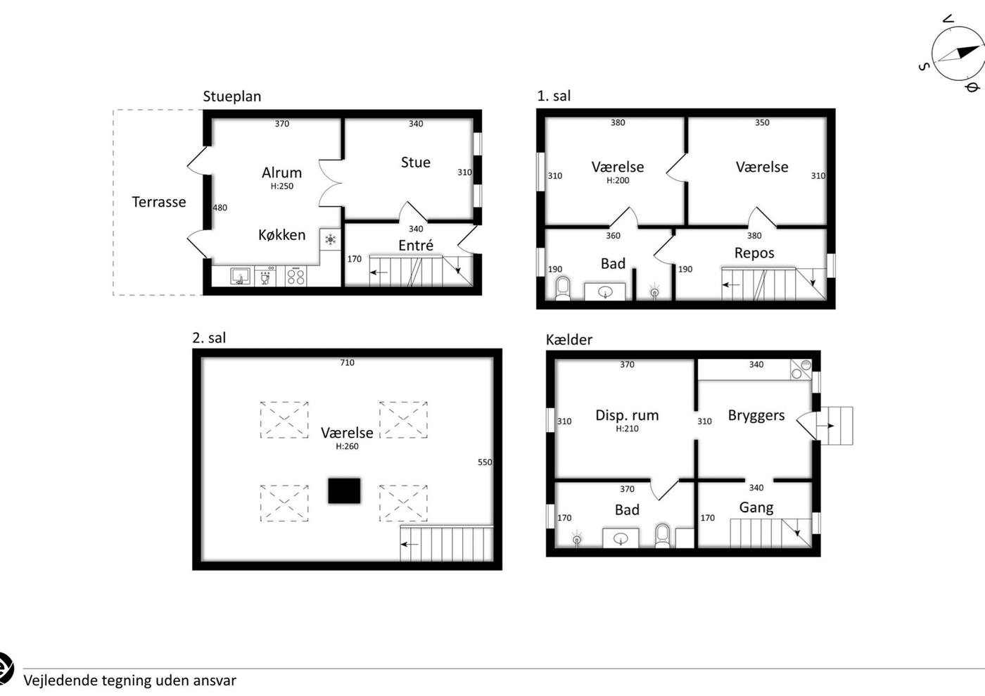
Lejligheden i baghuset er moderniseret og indeholder i stueplan entré, to sammenhængende stuer og åbent køkken. Fra køkkenet er der udgang til en dejlig terrasse og egen lukket have. 1. salen er indrettet med 2 soveværelser samt større badeværelse.

2.salen er indrettet til stue/opholdsrum, er dejlig lys og til kip med synlige bjælker.

Kælderen er indrettet med mindre badeværelse, depotrum samt egen vaskekælder.

Læs mere

Denne ejendom er solgt

Vil du vide mere?

Jens H. Mårtensen

jhm@nordicals.dk

+4529176886

Kongensgade 27, 1. sal, 5000 Odense C

+4566138060

5000@nordicals.dk

Besøg vores mæglerside

Lignende ejendomme

Til top