Vestergade 71, 1.
5000 Odense C

Sagsnr. 29386

Ejendomstype

Etageareal

Grund

Energiklasse

222 m²

2.334 m²

F

Årlig leje

Leje pr. m²

Depositum

Årlig driftsudgift

Årlig driftsudgift pr. m²

176.490 kr.

795 kr.

88.245 kr.

19.536 kr.

88 kr.

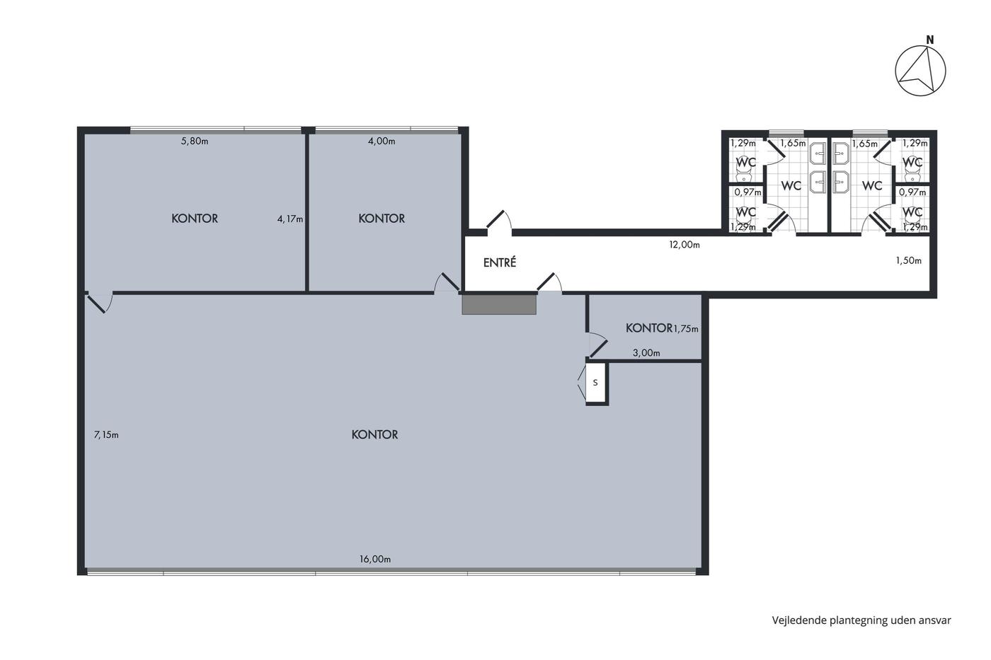
Kontor/klinik med central beliggenhed og elevatorbetjent

På yderst central beliggenhed i meget markant ejendom, udlejes 222 m² kontor.

Lokalerne overtages med indretning efter nærmere aftale og står i dag uden aptering.

Adgang til lejemålet sker via indgangsparti v/Intersport og er med elevator. Kontor/kliniklejemålet udgør 222 m² og er beliggende på 1. sal.

Der er udvendig solafskærmning ved vinduer og ventilationsanlæg.

Lejemålet er anvendeligt til alle former for kontor/liberalt erhverv, herunder klinik.

Der er mulighed for leje af p-pladser bag ejendommen.

Læs mere

Vil du vide mere?

Christopher Bøje

cbo@nordicals.dk

+4551271918

Kongensgade 27, 1. sal, 5000 Odense C

+4566138060

5000@nordicals.dk

Besøg vores mæglerside

Lignende ejendomme

Til top