Vestergade 38, st.
5000 Odense C

Sagsnr. 30887

Ejendomstype

Etageareal

Energiklasse

312 m²

F

Årlig leje

Leje pr. m²

Depositum

Årlig driftsudgift

Årlig driftsudgift pr. m²

996.000 kr.

3.192 kr.

498.000 kr.

50.780 kr.

163 kr.

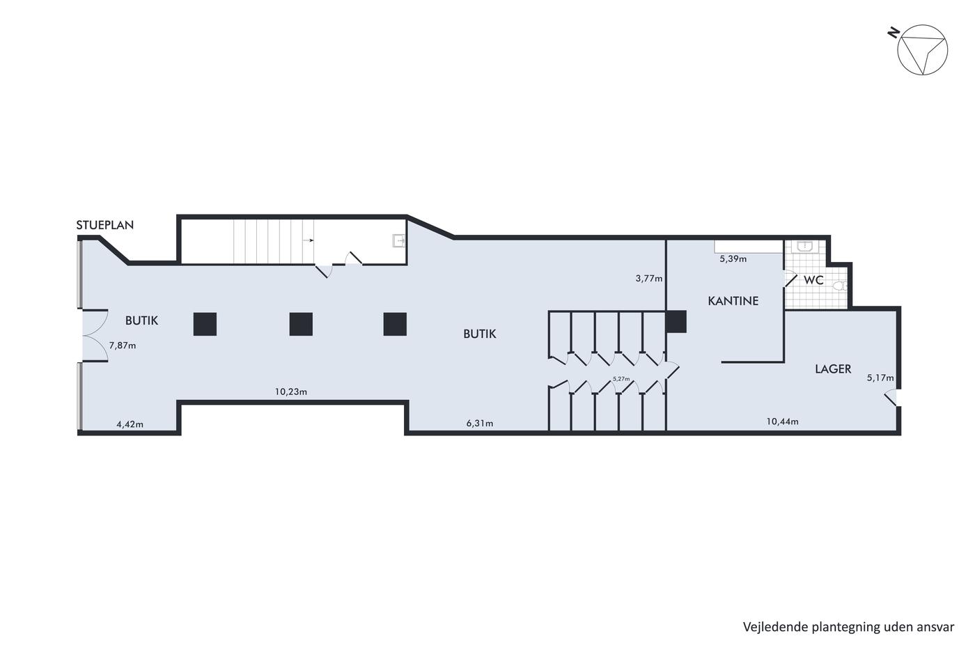
Attraktiv beliggende butik midt på Odense gågade

Her udbydes dette butikslejemål på 282 m², en ideel mulighed for at placere sig i et af byens mest besøgte og pulserende handelsområder.

Lejemålet er placeret på et af Vestergades mest befærdede områder med mange forbipasserende.

Lejemålet består af et regulært butikslokale i stueplan med store facadevinduer ud mod gågaden, hvilket giver optimal eksponering og synlighed. De store vinduespartier bidrager samtidig til et lyst og åbent butiksmiljø, der let kan indrettes efter behov - uanset om det er detailhandel, livsstilsprodukter, specialvarer eller noget helt fjerde. Lokalet fremstår velholdt og i en neutral stand, der gør det enkelt at tilpasse indretningen til kommende lejers brand og koncept.

Beliggenheden på Vestergade er kendetegnet ved et bredt udvalg af butikker, spisesteder, caféer og oplevelser. Naboer er bl.a. Shaping New Tomorrow, Café Vivaldi, H&M og Magasin.

Læs mere

Vil du vide mere?

Christopher Bøje

cbo@nordicals.dk

+4551271918

Kongensgade 27, 1. sal, 5000 Odense C

+4566138060

5000@nordicals.dk

Besøg vores mæglerside

Lignende ejendomme

Til top