Vestergade 61, st. tv.
5000 Odense C

Sagsnr. 31228

Ejendomstype

Etageareal

Energiklasse

103 m²

C

Årlig leje

Leje pr. m²

Depositum

Årlig driftsudgift

Årlig driftsudgift pr. m²

216.000 kr.

2.097 kr.

108.000 kr.

15.450 kr.

150 kr.

Flot og nyistandsat butikslejemål

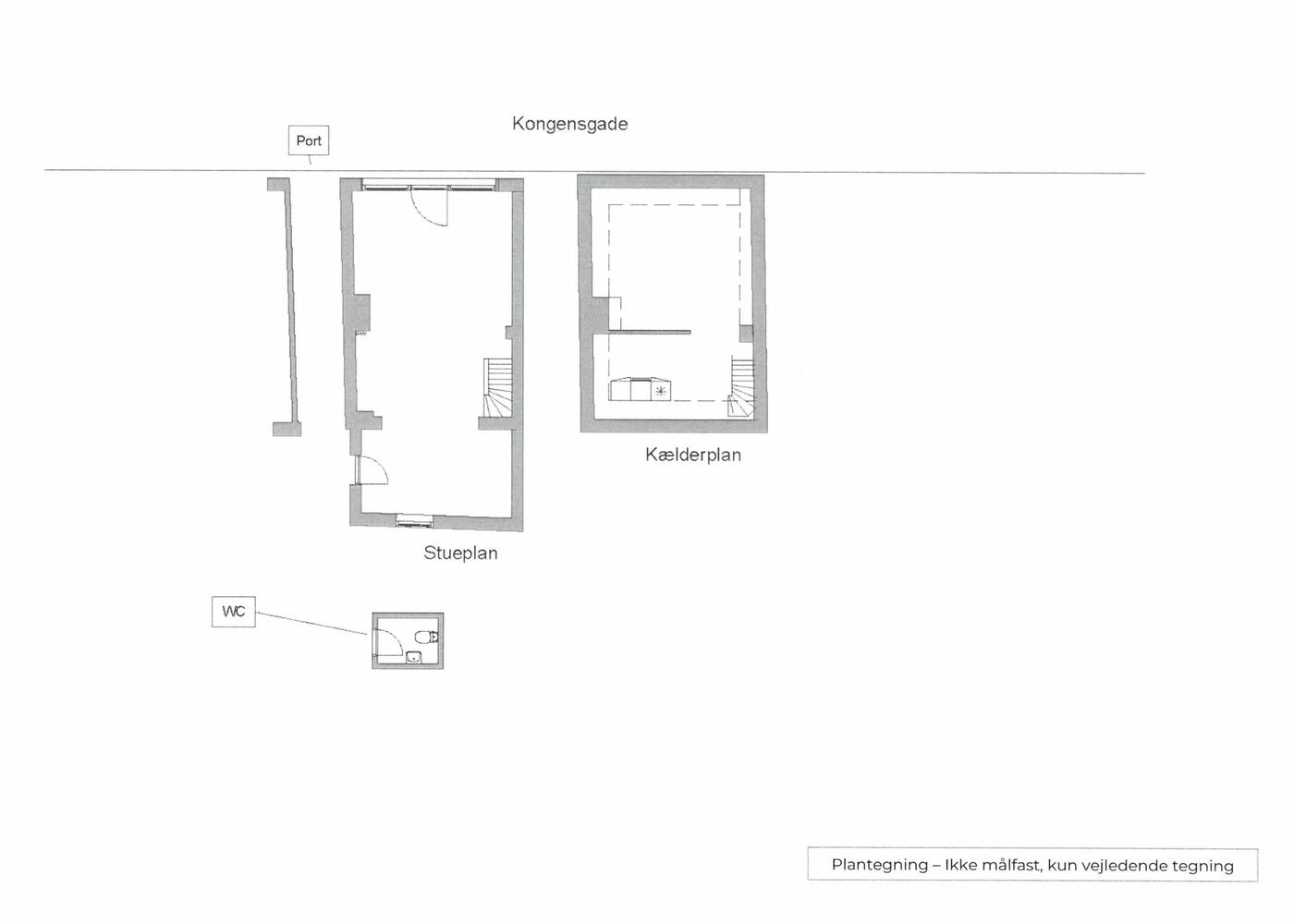
Udlejer har i 2025 udviklet og istandsat denne smukke ejendom, som ligger markant på hjørnet af Vestergade og Kongensgade.

Denne butik ligger med flot, nyistandsat facade mod Kongensgade, og butikken har en stærk eksponering mod netop Kongensgade, men har også en vigtig nærhed til Vestergade, som er lige rundt om hjørnet.

I nærområdet findes stærke detailkoncepter som f.eks. Magasin, H&M, Normal, Profil Optik og mange flere, samt kulturelle destinationer som Brandts Klædefabrik.

Butikken, som er klar til indflytning, er netop blevet sat flot i stand, herunder blandt andet med ny facade, trægulve, lampespots m.m.

Der er trappe fra butikken ned til kælderen, hvor der er toilet, tekøkken og lager.

Senest har butikken været anvendt til salg af dametøj, hvilket den også i fremtiden vil egne sig godt til, men også til salg af smykker, accessories, sko, tasker, optik, brugskunst, kosmetik og meget mere.

Ønsker du en flot og hyggelig lille butik, som er travlt beliggende lige der, hvor der er mange handlende kunder på gaden, så bør du se nærmere på dette gode lejemål.

Læs mere

Vil du vide mere?

Peter Aagaard Nielsen

pan@nordicals.dk

+45 2347 4476

Kongensgade 27, 1. sal, 5000 Odense C

+4566138060

5000@nordicals.dk

Besøg vores mæglerside

Lignende ejendomme

Til top