Vindegade 75
5000 Odense C

Sagsnr. 29602

Ejendomstype

Etageareal

Grund

Energiklasse

63 m²

1.375 m²

F

Årlig leje

Leje pr. m²

Depositum

94.500 kr.

1.500 kr.

47.250 kr.

Butik/klinik med central beliggenhed - tæt på gågaden

Lejemålet er beliggende meget tæt på gågadenettet i Odense C og lige overfor et stort offentligt parkeringsområde/kælder, hvorfor der er god kundestrøm og parkeringsmuligheder ved lejemålet.

Lejemålet er beliggende i nyopført ejendom fra år 2022 og bliver færdigapteret med sænkede lofter, gulvbelægning og maling efter nærmere aftale med ny lejer.

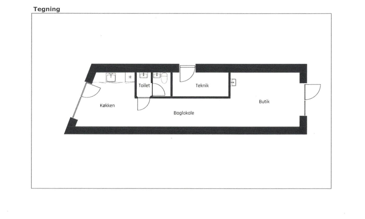
Lejemålet har dobbelt dør ud til Vindegade og personaleindgang fra bagsiden.

Selve lejemålet udgør 63 m² og omfatter et mindre butiks-/kliniklokale, mellemgang/baglokale, toilet med forrum samt køkken/personalerum.

Læs mere

Vil du vide mere?

Oliver Rasmussen

olr@nordicals.dk

+4520402090

Kongensgade 27, 1. sal, 5000 Odense C

+4566138060

5000@nordicals.dk

Besøg vores mæglerside

Lignende ejendomme

Til top