Agerhatten 27B, indgang 2 og 3
5220 Odense SØ

Sagsnr. 30943

Ejendomstype

Etageareal

Energiklasse

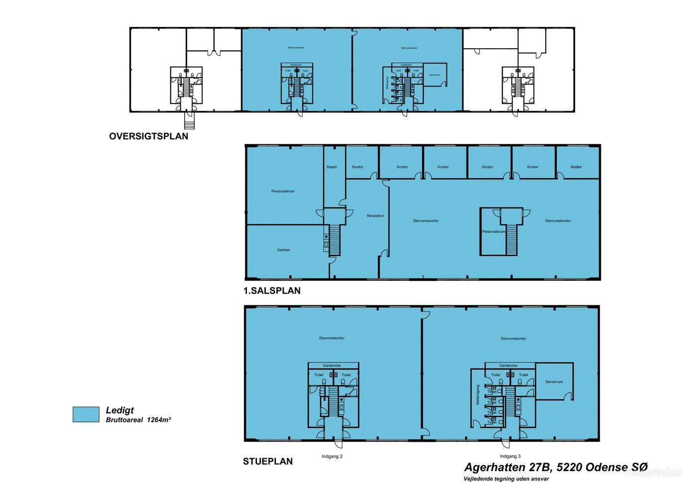
1.264 m²

A2010

Årlig leje

Leje pr. m²

Depositum

Årlig driftsudgift

Årlig driftsudgift pr. m²

916.400 kr.

725 kr.

458.200 kr.

48.180 kr.

38 kr.

Rummeligt og fleksibelt kontorlejemål

Lejemålet ligger på Agerhatten 27B i den sydøstlige del af Odense, tæt på det fynske motorvejsnet.

Lejemålet andrager 1.264 m² kontor fordelt på stue og 1. sal, og som primært består af storrumskontorer, og med 6 separate kontorer/mindre mødelokaler. Derudover er der et køkken/kantineområde, toiletfaciliteter, depotrum, personalerum samt serverrum.

Lejemålet har en rummelig og fleksibel planløsning, der kan tilpasses forskellige forretningsbehov.

I lejemålet er der et skønt naturligt lysindfald, qua gennemlysningen fra de store vinduespartier på begge sider.

- Akustikdæmpende Troldtekt-lofter
- Tæppebelagte gulve
- Ventilation

Ejendommens udenomsarealer er primært udlagt til parkering, til rådighed for ejendommens brugere.

Læs mere

Vil du vide mere?

Christopher Bøje

cbo@nordicals.dk

+4551271918

Kongensgade 27, 1. sal, 5000 Odense C

+4566138060

5000@nordicals.dk

Besøg vores mæglerside

Lignende ejendomme

Til top