Agerhatten 27B, indgang 1, 1. tv., 1. th., st. tv.
5220 Odense SØ

Sagsnr. 30944

Ejendomstype

Etageareal

Energiklasse

490 m²

A2010

Årlig leje

Leje pr. m²

Depositum

Årlig driftsudgift

Årlig driftsudgift pr. m²

340.550 kr.

695 kr.

170.275 kr.

17.988 kr.

37 kr.

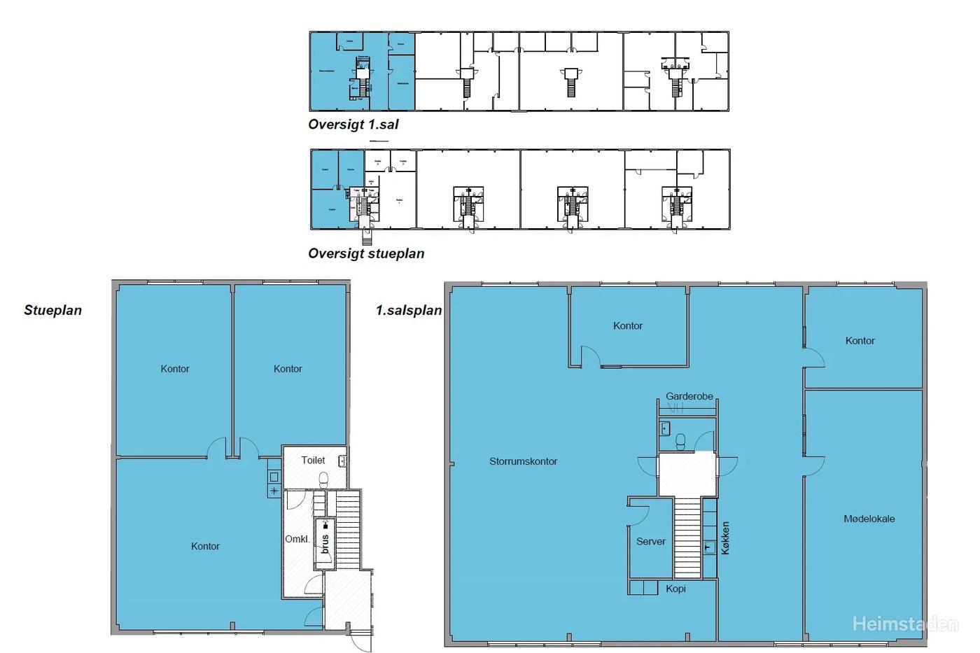
Rummeligt og fleksibelt kontorlejemål - tæt på motorvej

Lejemålet ligger Agerhatten 27B i den sydøstlige del af Odense, tæt på det fynske motorvejsnet.

Lejemålet andrager 490 m² kontor fordelt på stue og 1. sal, og som primært består af åbent kontorlandskab, med flere separate kontorer/mødelokaler. Derudover er der et køkken/kantineområde og toiletfaciliteter på hver etage.

Lejemålet har en rummelig og fleksibel planløsning, der kan tilpasses forskellige forretningsbehov. I lejemålet er der et skønt naturligt lysindfald, qua gennemlysningen fra de store vinduespartier på begge sider.

Ejendommens udenomsarealer er primært udlagt til parkering, til rådighed for ejendommens brugere.

Lejemålets nærmeste naboer er blandt andet Enabled Robotics, Printmarketing, agroled.dk m.fl.

Læs mere

Vil du vide mere?

Christopher Bøje

cbo@nordicals.dk

+4551271918

Kongensgade 27, 1. sal, 5000 Odense C

+4566138060

5000@nordicals.dk

Besøg vores mæglerside

Lignende ejendomme

Til top