Agerhatten 5H, Tornbjerg
5220 Odense SØ

Sagsnr. 30949

Ejendomstype

Etageareal

Energiklasse

267 m²

B

Årlig leje

Leje pr. m²

Depositum

Årlig driftsudgift

Årlig driftsudgift pr. m²

166.875 kr.

625 kr.

83.438 kr.

12.804 kr.

48 kr.

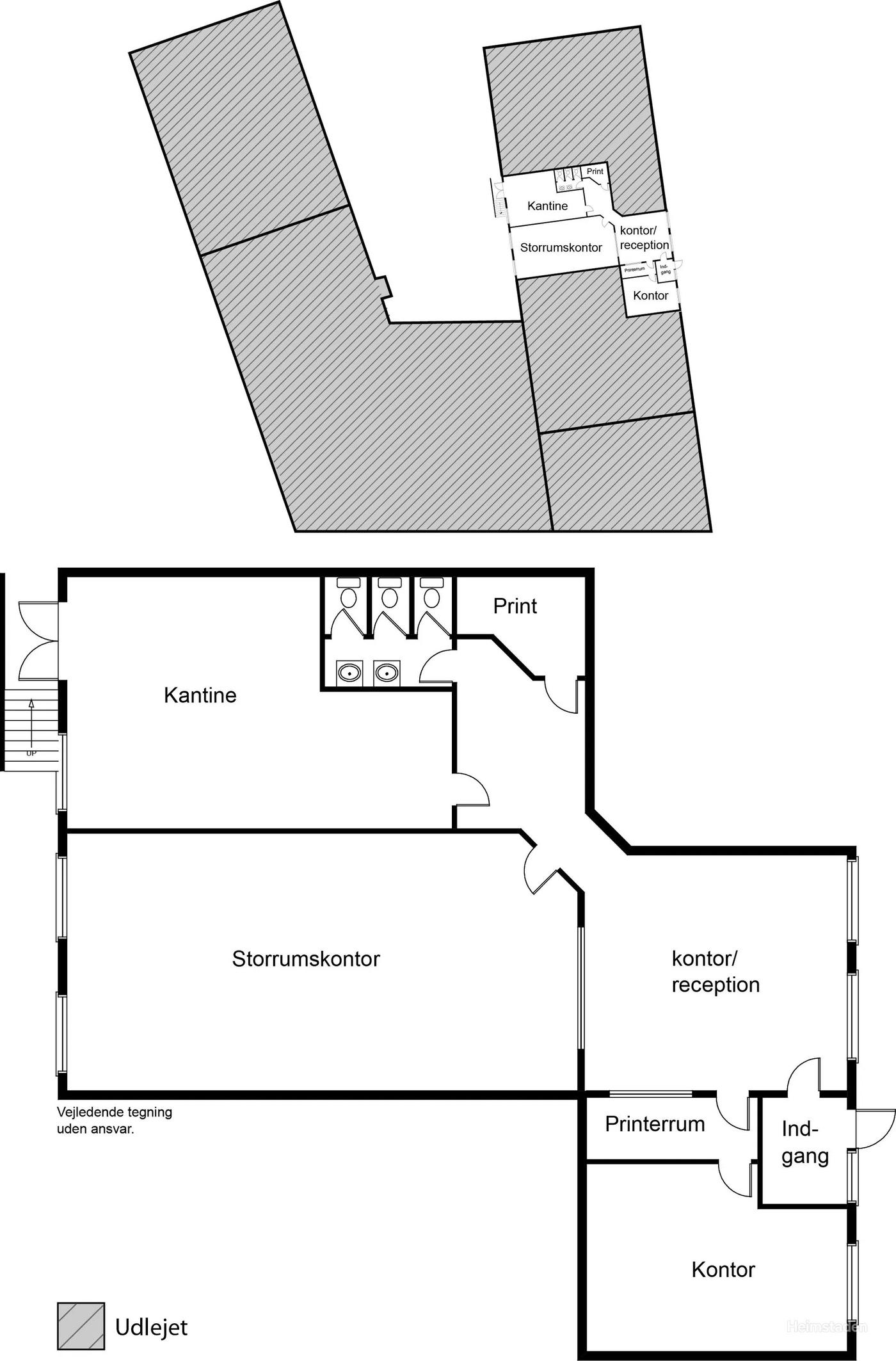
Lyst kontorlejemål beliggende tæt på motorvej

På Agerhatten 5H får du et moderne kontorlejemål med stort receptionsområde og lyse

kontorlokaler med god plads til dine medarbejdere.



Lejemålet indeholder:



- Stort indgangsområde, som kan benyttes som reception med 3-4 arbejdspladser

- Storrumskontor, som kan opdeles efter behov

- Kantine/møderum med tekøkken

- Moderne troldtektlofter og god grundbelysning

Læs mere

Vil du vide mere?

Christopher Bøje

cbo@nordicals.dk

+4551271918

Kongensgade 27, 1. sal, 5000 Odense C

+4566138060

5000@nordicals.dk

Besøg vores mæglerside

Lignende ejendomme

Til top